人与空间
还原初心,重塑价值。
让房子回归居住的本质,对所有向阳生长的人,
讲述美好居所应有的模样。
— 天工 —
解读获第13届金盘奖,华北赛区年度最佳预售楼盘奖项目——万科 · 观承大家
一条贯穿空间的玻璃长廊;一抹悬在半空的绿色植被;一柱自天井洒下的自然光。这个空间不拘泥任何一种风格,却与自然形成和谐的关系。
垂直的园林,把自然蔓延到屋内,院子环抱着房子的合院产品,从来都是久经市场考验,被消费者认可的产品。市面上不乏很多类似的雷同设计,却很少有像万科观承大家一样从生活品质出发,对这个原型进行改良和提升。
万科观承别墅在一期、二期到三期产品的迭代中,将合院的花园洋房设计不断地改良。而三期观承大家的垂直园林,正是让人眼前一亮的设计。

无柱设计与透明推拉门
从初进院落的鹅卵石小径,到首层的幽静院落,再到各层裸露在外的交错露台,绿色植被弥漫在观承大家这幢别墅的每层每个角落。

立式园林跨跃层高
院门,一排青竹将主人的私密空间与外界隔开。阳光打在摇曳的竹叶上,在院子里映出绚烂的光影。顺着鹅卵石的小巷曲折前行,首层院落静谧雅致,竹藤坐塌则成为夏季纳凉的不二之选。

景观小品丰富园趣
观承大家的建筑师将室外采光井高度拉低,与庭院持平,形成户内户外地面15公分的落差。将首层庭院面积扩充到45平米,也利于排水及日后打扫。

自然光纳入通透空间
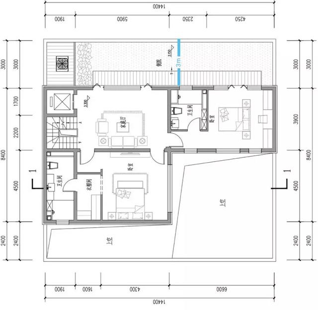
二层北面探出进深3米的侧院,三层东南侧立面内缩30公分,形成高度上的落差。植被顺着裸露在室外的楼梯爬到各高度空间,自然的融合在阳台、露台,形成环绕的立体园林,观承大家把绿色带入主人的卧室和起居室。

室外楼梯直通露台

三层与二层错落,形成立体花园
别墅产品迭代,用巧思筑阳光大宅,在采光方面,观承大家首层设计面宽11.35米Z形长廊,承重墙偷梁换柱变成透明的玻璃推拉门,将院内景色一览无余。当门完全打开的时候,院子与一层的客厅内外呼应,自然光与新鲜空气在室内外交互;当门关上的时候,细节处的保温隔热层,将温暖锁在室内,同时透明的推拉门巧妙地实现厅院共生。

庭园豁然开朗

一层无柱设计
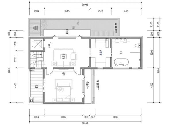
二层北侧伸出一条进深3米的侧院,为住户争取出一个露台,作为赠送面积给到住户。北面侧院与南面卧室窗对应,让自然光洒到室内的每个房间,让室内空气南北流通。

二层进深3m侧院
万科观承大家地下空间的采光更为巧思,顺着一层院落的透明天井引入天光,照进挑高7.2米的地下空间里,通透明亮。白天坐在这里读书写字,感受阳光角度的变化;夜晚凝望深邃星空,看月光洒下,再与家人亲朋吟诗对酒,悠哉乐哉。

自然光纳入通透空间
从地下到地上,从室内到室外,万科观承大家在容积率1.01的要求下做到了室内宽敞,院落和谐的水准。在逐层退台的现代花园洋房别墅基础上实现了空间的高效利用。