阳台是生活的浪漫,没有远离“柴米油盐”的繁琐,却又无限接近阳光、星辰、清风、白云。所以很多在城市里不能拥有院子的人,就把目标转向了阳台:
没有院子,有一个大阳台也是美好的。
大阳台,可以用来做阳光书房,可以用来种花种草……
除此之外,一些优秀的设计师还赋予了阳台更多功能,比如宜昌这些户型。
01 挑高6.4米的阳台
虽然楼层高度有限制,但阳台的高度可以更高。
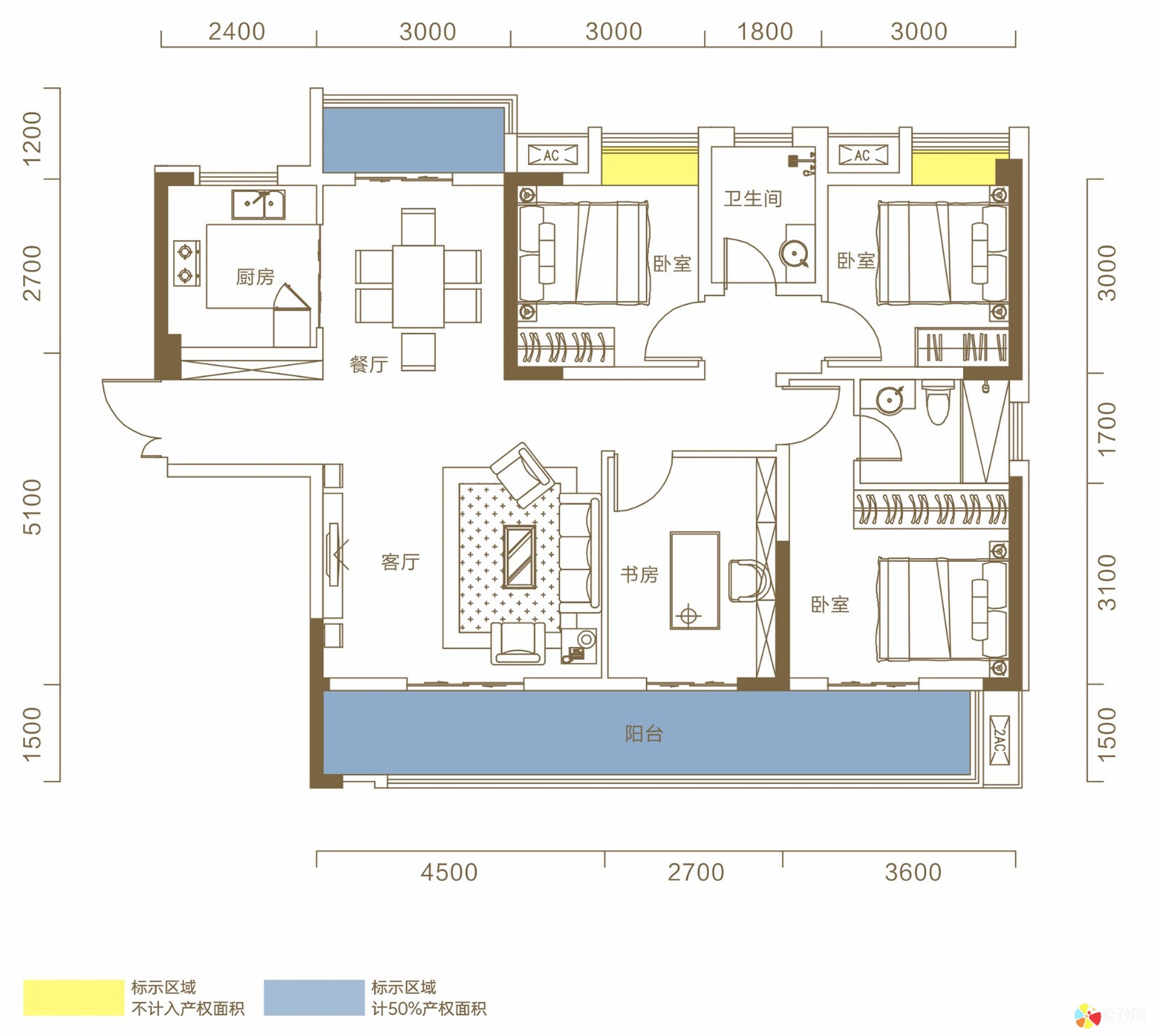
五龙源著洋房F户型,4房2厅2卫,建筑面积约146-153㎡。户型分奇数层和偶数层进行阳台错位设计,除了 11.5米+6.3米的超大L形阳台 非常吸睛之外,阳台中大概16平米的空间为 6.4米挑高空中庭院 ,种颗树都不是问题。


样板间实景图

样板间实景图
阳台宽敞,能容纳各种精神向往。户型各个功能空间也非常宽敞,舒适度和实用度都很高,装得下生活的琐碎和柴米油盐。

样板间实景图

样板间实景图
除了项目本身之外,项目附近的公园颜值也超高。

02带泳池的阳台
这是一个刚刚进入规划批前公示的项目,但是户型光芒太过耀眼,令人不能忽视其存在。
这个户型就是运河名都三期7#的大平层户型。
四房,4个卫生间。
双阳台,观景阳台配备泳池。
大横厅,客厅开间达到6.9米。
4开间朝南,面宽17.7米。
房间使用面积约167平方米
……
光是这组数据就让人觉得足够惊艳!
(不过这组数据是批前公示文件里的,最终的实际尺寸还要以项目公开的为准。)

运河名都三期户型
4个房间,主卧位于整个户型的西南角,带主卫和衣帽间;旁边的次卧(以下称次卧1)开门即可跨入阳台泳池,次卧1对门是客卫,起居便利度很高;对门的次卧(以下称次卧2)带飘窗,旁边是客卫及无障碍卫生间,次卧2和2个卫生间与南向的房间之间的公共空间比较开阔,装修的时候也可以根据需要,改装成套房;玄关旁的客卧带卫生间,是一个私密的套房设计。稍微动一动,就是3套房设计,私密性非常好。

运河名都三期“神户型”,改造三套房示意
双阳台设计,南北通透。这一次的方案改动,便是将原本进深2.5米的阳台改到了进深3米,将阳台的使用面积增加到21.02平方米。但众所周知,增加进深的同时也会对房间的采光有一定程度的减弱。好在户型本身的南向面宽达到17.7米,进深增加以后,开间和进深比仍能达到1.4:1,可以满足整个室内的充足采光。
3米宽的阳台,设计了阳台泳池,生生的拉满了户型的豪宅属性。这也就意味着,私家泳池不再是别墅拥有者的专利。

示意图(来自网络)
即使没有泳池的设计,阔绰的使用空间、阳台下即运河公园美景也不禁让人脑补惬意生活画面。

楼上可以俯瞰运河公园
03 跑道式阳台
如果前面2个楼盘的户型是以巧思和创意赢得关注,那么这个楼盘的“跑道式阳台”则更贴近生活,延长了阳台长度的同时,价格也非常亲民,是伸手可得的幸福。
中铁龙盘湖世纪山水F户型,建面约147.45㎡,南向阳台长约10.8米,宽约1.5米,完全可以为孩子建一个「mini跑道」。除了南向阳台具有超大采光面之外,这个户型还有约3米的北向阳台,南北通透。稍微有点遗憾的是,北向卧室的门的朝向,空气对流性差了一些。不过在新风系统等科技设备的加持下,这些问题能轻松解决。整个户型为4房2厅2卫,功能齐全。户型的厨房、餐厅、客厅等公共活动区域靠西分布,卧室、书房等私密空间则靠东分布。

中铁龙盘湖世纪山水F户型
如果觉得“一”字形阳台观景角度不够大,还有另一款“L”形阳台可以供选择。
中铁龙盘湖世纪山水E户型整体面积约146.02㎡。户型同样十分有看点,或者说更有看点。拐角阳台约8.55米长,转角范围超3米,总长度同样超10米。拐角阳台利用建筑特点,成功将视野从180度升级到270度,观景的范围也大大扩大了。

中铁龙盘湖世纪山水222#E户型
同样是3房朝南,F户型只有1间卧室朝南,E户型2间卧室朝南。而且,主卧超过3米的大飘窗相当诱人,睡觉、看书、打滚、前滚翻,怎么都行。要是当婚房的话,这一个飘窗可以坐下10个伴娘。除了主卧有大飘窗,餐厅也有同款大飘窗,全房采光得到充足保障。
门口的书房,远离其他卧室区,可以打造成麻将房,彻夜奋战不影响家人休息。也可以打掉非承重墙,做个吧台,偶尔和朋友喝点小酒、深聊半宿。靠客厅的卧室可以和客厅打通,做开阔会客室。厨房外的小阳台,打通到厨房,就是明厨,增加采光和存储空间;如果打通到卫生间,可用玻璃材料保证厨房采光的同时,增加公卫尺度。
除了这两个大户型之外,项目另一栋楼的建面约99㎡的小户型,也做到了约9.5米的跑道式阳台。

中铁龙盘湖世纪山水A1户型
此外,户型里面还有一些迷人的小细节,比如入户玄关处的小凹槽,正好可以打造一个不占公共空间的玄关柜;U型厨房正对餐厅,既便利又 利于多人同时下厨;卫生间做了干湿分离设计,更好的保证公共空间的卫生状态。