
| 每天5分钟,学习最新设计知识 |

最近新出台的“最严消防新规”真的是传得沸沸扬扬。原本消防验收就是所有建设项目的噩梦,90%以上的项目无法一次通过。现在还搞了这么一出,建筑师到底何以生存?

文末附2020年最新住宅户型图库CAD

其实建筑消防新规,去年就出台了
就在去年5月10日,司法部网站发布《建设工程消防设计审查和验收管理规定(征求意见稿)》,虽说事征求意见稿,其实很多都已经尘埃落定了。

(向上滑动启阅)
《建设工程消防设计审查和验收管理规定》
(征求意见稿)
第一章 总则
第一条 为加强建设工程消防设计审查验收管理,落实建设工程消防设计、施工质量和安全责任,依据《中华人民共和国建筑法》《中华人民共和国消防法》《建设工程质量管理条例》等法律行政法规,制定本规定。
第二条 本规定适用于新建、扩建、改建(含室内外装修、建筑保温、用途变更)等建设工程的消防设计审查、验收、备案以及备案抽查管理。
本规定不适用住宅室内装修、村民自建住宅、救灾和其他非人员密集场所的临时性建筑的建设活动。
第三条 建设、设计、施工、工程监理、技术服务机构等单位及其从业人员应当遵守建设工程质量、消防法律法规和国家工程建设消防技术标准,对建设工程消防设计、施工质量和安全负责。
第四条 县级以上地方人民政府住房和城乡建设主管部门承担本行政区域内建设工程的消防设计审查、验收、备案以及备案抽查工作。具体分工由省、自治区、直辖市住房和城乡建设主管部门确定,并报国务院住房和城乡建设主管部门备案。
跨行政区域的建设工程,由其共同的上一级住房和城乡建设主管部门指定的住房和城乡建设主管部门负责消防设计审查、验收、备案以及备案抽查工作。
第五条 实施建设工程消防设计审查验收管理,应当遵循公正、严格、文明、高效的原则。
第六条 建设工程的消防设计、施工必须符合国家工程建设消防技术标准。
新颁布的国家工程建设消防技术标准实施之前,建设工程的消防设计已经依法审查合格的,按原审查意见的标准执行。
第七条 县级以上地方人民政府住房和城乡建设主管部门应当积极运用信息化手段开展消防设计审查、验收、备案以及备案抽查工作,提升政务服务水平。
第二章 有关单位的质量责任
第八条 建设单位不得要求设计、施工、工程监理、技术服务机构等单位及其从业人员违反建设工程质量、消防法律法规和国家工程建设消防技术标准,降低建设工程消防设计、施工质量,并承担下列消防设计、施工的质量责任:
(一)依法申请建设工程消防设计审查、消防验收,依法办理消防验收备案手续并接受抽查;
(二)实行工程监理的建设工程,应当将消防施工质量一并委托监理;
(三)选用满足工程安全需要的消防设计、施工单位;
(四)选用合格的消防产品和满足防火性能要求的建筑构件、建筑材料及装修材料;
(五)依法应当经消防设计审查的建设工程,未经审查或者审查不合格的,不得组织施工;
(六)依法应当经消防验收的建设工程,未经验收或者验收不合格的,不得交付使用。
第九条 设计单位应当承担 下列消防设计的质量责任:
(一)根据建设工程质量、消防法律法规和国家工程建设消防技术标准进行消防设计,编制符合要求的消防设计文件,不得违反国家工程建设消防技术标准强制性要求;
(二)在设计中选用的消防产品和具有防火性能要求的建筑构件、建筑材料、装修材料,应当注明规格、性能等技术指标,其质量要求必须符合国家标准或者行业标准;
(三)参加建设单位组织的建设工程竣工验收,对建设工程消防设计实施情况签字确认。
第十条 施工单位应当承担 下列消防施工的质量和安全责任:
(一)按照建设工程质量、消防法律法规,国家工程建设消防技术标准以及经消防设计审查合格或者满足工程需要的消防设计文件组织施工,不得擅自改变消防设计进行施工,降低消防施工质量;
(二)查验消防产品和具有防火性能要求的建筑构件、建筑材料及装修材料的质量,使用合格产品,保证消防施工质量;
(三)建立施工现场消防安全责任制度,确定消防安全负责人。加强对施工人员的消防教育培训,落实动火、用电、易燃可燃材料等消防管理制度和操作规程。保证在建工程竣工验收前消防通道、消防水源、消防设施和器材、消防安全标志等完好有效。
第十一条 工程监理单位应当承担下列消防施工的质量责任:
(一)按照建设工程质量、消防法律法规,国家工程建设消防技术标准以及经消防设计审查合格或者满足工程需要的消防设计文件实施工程监理;
(二)在消防产品和具有防火性能要求的建筑构件、建筑材料、装修材料施工、安装前,核查产品质量证明文件,不得同意使用或者安装不合格的消防产品和防火性能不符合要求的建筑构件、建筑材料、装修材料;
(三)参加建设单位组织的建设工程竣工验收,对建设工程消防施工质量签字确认。
第十二条 为建设工程消防设计、消防验收提供图纸审查、检测等技术服务的机构和人员,应当依法取得相应的资格,按照法律、行政法规、国家标准、行业标准和执业准则提供技术服务,并对出具的审查、检测意见负责。
第三章 消防设计审查验收
第十三条 依法应当申领建设工程规划许可的建设工程的设计方案,应当满足建设工程消防设计要求。
第十四条 对具有下列情形之一的特殊建设工程,建设单位应当向县级以上地方人民政府住房和城乡建设主管部门(以下简称消防设计审查机关)申请消防设计审查:
(一)建筑总面积大于二万平方米的体育场馆、会堂,公共展览馆、博物馆的展示厅;
(二)建筑总面积大于一万五千平方米的民用机场航站楼、客运车站候车室、客运码头候船厅;
(三)建筑总面积大于一万平方米的宾馆、饭店、商场、市场;
(四)建筑总面积大于二千五百平方米的影剧院,公共图书馆的阅览室,营业性室内健身、休闲场馆,医院的门诊楼,大学的教学楼、图书馆、食堂,劳动密集型企业的生产加工车间,寺庙、教堂;
(五)建筑总面积大于一千平方米的托儿所、幼儿园的儿童用房,儿童游乐厅等室内儿童活动场所,养老院、福利院,医院、疗养院的病房楼,中小学校的教学楼、图书馆、食堂,学校的集体宿舍,劳动密集型企业的员工集体宿舍;
(六)建筑总面积大于五百平方米的歌舞厅、录像厅、放映厅、卡拉OK厅、夜总会、游艺厅、桑拿浴室、网吧、酒吧,具有娱乐功能的餐馆、茶馆、咖啡厅;
(七)国家机关办公楼、电力调度楼、电信楼、邮政楼、防灾指挥调度楼、广播电视楼、档案楼;
(八)本条第一至七项规定以外的单体建筑面积大于四万平方米或者建筑高度超过五十米的公共建筑;
(九)国家标准规定的一类高层住宅建筑;
(十)城市轨道交通、隧道工程,大型发电、变配电工程;
(十一)生产、储存、装卸易燃易爆危险物品的工厂、仓库和专用车站、码头,易燃易爆气体和液体的充装站、供应站、调压站。
第十五条 建设单位申请消防设计审查,应当提交建设工程消防设计审查申请表和消防设计文件。
依法需要办理建设工程规划许可的,应当提供建设工程规划许可证;依法需要批准的临时性建筑,属于第十四条所属范围的应当提供批准文件。
第十六条 具有下列情形之一的,建设单位除提供本规定第十五条所列材料外,应当同时提供特殊消防设计文件,或者设计采用的国际标准、境外消防技术标准的中文文本,以及其他有关消防设计的应用实例、产品说明等技术资料,专家评审论证材料:
(一)国家工程建设消防技术标准没有规定的;
(二)消防设计文件拟采用的新技术、新工艺、新材料可能影响建设工程消防安全,不符合国家标准规定的;
(三)拟采用国际标准或者境外消防技术标准的。
第十七条 消防设计审查机关应当自受理消防设计审查申请之日起二十个工作日内出具书面审查意见。
第十八条 消防设计审查机关应当依照建设工程质量、消防法律法规和国家工程建设消防技术标准,对申报的消防设计文件进行审查。对符合下列条件的,消防设计审查机关应当出具消防设计审查合格意见:
(一)设计单位具备相应的资质;
(二)消防设计文件的编制符合国务院住房和城乡建设主管部门规定的消防设计文件申请要求;
(三)建筑的总平面布局和平面布置、耐火等级、建筑构造、安全疏散、消防给水、消防电源及配电、消防设施等的消防设计符合国家工程建设消防技术标准;
(四)选用的消防产品和具有防火性能要求的建筑材料符合国家工程建设消防技术标准和有关管理规定;
(五)需要提供特殊消防设计文件的,提交的文件符合规定,并通过专家评审。
对不符合条件的,应当出具消防设计审查不合格意见,并说明理由。
消防设计审查机关可以通过政府购买服务等方式,委托具备专业技术能力的机构对消防设计文件进行审查。
第十九条 对具有本规定第十六条情形之一的建设工程,消防设计审查机关应当会同同级应急管理部门组织专家,对建设单位提交的特殊消防设计文件进行评审。参加评审的专家应当具有相关专业高级技术职称,总数不得少于七人,评审专家应当独立出具评审意见。评审专家有不同意见的,应当注明。
未经全部评审专家同意的特殊消防设计文件,不得作为消防设计审查的依据。
第二十条 建设、设计、施工单位不得擅自修改经消防设计审查机关审查合格的建设工程消防设计。确需修改的,建设单位应当向消防设计审查机关重新申请消防设计审查。
第二十一条 具有本规定第十四条所列情形的特殊建设工程,建设单位应当在建设工程竣工后向消防设计审查机关申请消防验收。
申请消防验收,应当提交下列材料:
(一)建设工程消防验收申请表;
(二)有关消防设施的工程竣工图纸;
(三)符合要求的检测机构出具的消防设施及系统检测合格文件。
第二十二条 消防设计审查机关应当自受理消防验收申请之日起二十个工作日内组织消防验收,并出具消防验收意见。
实行规划、土地、消防、人防、档案等事项限时联合验收的建设工程,由地方人民政府指定的部门统一出具验收意见。
生产工艺和物品有特殊灭火要求的,应在验收前征求应急管理部门消防救援机构的意见。
第二十三条 消防设计审查机关对申请消防验收的建设工程,应当依照建设工程消防验收评定标准对消防设计审查合格的内容组织消防验收。
对综合评定结论为合格的建设工程,消防设计审查机关应当出具消防验收合格意见;对综合评定结论为不合格的,应当出具消防验收不合格意见,并说明理由。
第四章 消防验收备案抽查
第二十四条 对本规定第十四条规定以外的建设工程,建设单位应当在工程竣工验收合格之日起七个工作日内,向县级以上地方人民政府住房和城乡建设主管部门(以下简称消防验收备案机关)消防验收备案。
建设单位在进行建设工程消防验收备案时,应当提交工程消防验收备案表、有关消防设施的工程竣工图纸、符合要求的检测机构出具的消防设施及系统检测合格文件。
依法不需要取得施工许可的建设工程,可以不进行消防验收备案。
第二十五条 消防验收备案机关对备案材料齐全的,应当出具备案凭证;备案材料不齐全或者不符合法定形式的,应当一次性告知需要补正的全部内容。
消防验收备案机关应当在已经备案的建设工程中,随机确定检查对象并向社会公告。对确定为检查对象的,消防验收备案机关应当在二十个工作日内按照建设工程消防验收评定标准完成工程检查,制作检查记录。检查结果应当向社会公告,检查不合格的,还应当书面通知建设单位。
建设单位收到通知后,应当停止使用建设工程,组织整改后向消防验收备案机关申请复查。消防验收备案机关应当在收到书面申请之日起二十个工作日内进行复查并出具书面复查意见。
第二十六条 建设单位未依照本规定进行建设工程消防验收备案的,消防验收备案机关应当依法处罚,责令建设单位在五个工作日内备案,并确定为检查对象;对逾期不备案的,消防验收备案机关应当在备案期限届满之日起五个工作日内通知建设单位停止使用建设工程。
第五章 监督管理
第二十七条 对建设工程进行消防设计审查、验收和备案抽查,应当由两名以上执法人员实施。
第二十八条 建设工程消防验收备案的抽查比例由省、自治区、直辖市住房和城乡建设主管部门,结合辖区内施工图审查机构的审查质量、消防设计和施工质量情况确定,并向社会公告。
消防验收备案机关及其工作人员应当依照本规定对建设工程消防验收实施备案抽查,不得擅自确定检查对象。
第二十九条 住房和城乡建设主管部门及其工作人员不得指定或者变相指定建设工程的消防设计、施工、工程监理单位和技术服务机构。不得指定或者变相指定消防产品和建筑材料的品牌、销售单位。不得参与或者干预建设工程消防设施施工、消防产品和建筑材料采购的招投标活动。
第三十条 消防设计审查、消防验收和备案、抽查,不得收取任何费用。
第三十一条 有下列情形之一的,消防设计审查机关或者其上级主管部门,根据利害关系人的请求或者依据职权,可以依法撤销消防设计审查合格意见、消防验收合格意见:
(一)工作人员滥用职权、玩忽职守作出准予行政许可决定的;
(二)超越法定职权作出准予行政许可决定的;
(三)违反法定程序作出准予行政许可决定的;
(四)对不具备申请资格或者不符合法定条件的申请人准予行政许可的;
(五)依法可以撤销行政许可的其他情形。
建设单位以欺骗、贿赂等不正当手段取得行政许可的,应当予以撤销。
依照前两款的规定撤销行政许可,可能对公共利益造成重大损害的,不予撤销。
第六章 法律责任
第三十二条 违反本规定的,依照《中华人民共和国建筑法》《中华人民共和国消防法》《建设工程质量管理条例》等法律法规给予处罚;构成犯罪的,依法追究刑事责任。
建设、设计、施工、工程监理单位、技术服务机构等单位及其从业人员违反有关建设工程质量、消防法律法规、国家工程建设消防技术标准,除依法给予行政处罚或者追究刑事责任外,还应当依法承担民事赔偿责任。
第三十三条 建设单位在申请消防设计审查、消防验收时,提供虚假材料的,消防设计审查机关不予受理或者不予许可并处警告。
第三十四条 依法应当经消防设计审查机关进行消防设计审查验收的建设工程未经消防设计审查和消防验收,擅自投入使用的,分别处罚,合并执行。
第三十五条 有下列情形之一的,应当依法从重处罚:
(一)已经通过消防设计审查,擅自改变消防设计,降低消防安全标准的;
(二)建设工程未依法进行备案,且不符合国家工程建设消防技术标准强制性要求的;
(三)经责令限期备案逾期不备案的;
(四)工程监理单位与建设单位或者施工单位串通,弄虚作假,降低消防施工质量的。
第三十六条 建设工程经消防验收抽查不合格的,消防验收备案机关应当函告同级应急管理部门。
第三十七条 住房和城乡建设主管部门的人员玩忽职守、滥用职权、徇私舞弊,构成犯罪的,依法追究刑事责任。有下列行为之一,尚未构成犯罪的,依照有关规定给予处分:
(一)对不符合法定条件的建设工程出具消防设计审查合格意见、消防验收合格意见或者通过消防验收备案抽查的;
(二)对符合法定条件的建设工程消防设计、消防验收的申请或者消防验收备案、抽查,不予受理、审查、验收或者拖延办理的;
(三)指定或者变相指定设计单位、施工单位、工程监理单位的;
(四)指定或者变相指定消防产品品牌、销售单位或者技术服务机构、消防设施施工单位的;
(五)利用职务接受有关单位或者个人财物的。
第七章 附则
第三十八条 本规定中的建筑材料包含建筑保温材料。
第三十九条 国家工程建设消防技术标准强制性要求,是指国家工程建设消防技术标准强制性条文。
第四十条 执行本规定所需要的法律文书式样,由国务院住房和城乡建设主管部门制定。
第四十一条 本规定自2019年月日起施行。

其实总的来说,一共有以下6点:
1、消防设计审查和验收工作主体由公安消防部门调整为住房和城乡建设主管部门;
2、增加施工图联合审查、建设工程联合验收的内容;
3、验收环节增加“消防设计审查机关可以通过政府购买服务等方式;
4、验收环节增加“实行规划、土地、消防、人防、档案等事项;
5、有关单位的质量责任( 建设单位、设计单位、施工单位、工程监理单位);
6、消防设计审查、消防验收和备案、抽查,不得收取任何费用。
说白了,就是管控会越来越严,设计师的责任也会越来越重。

消防验收,一次通过*法大**!
那么要怎样才能一次通过消防验收呢?
由于涉及内容过度,我们就只说说建筑专业方面的吧。主要分成以下这几点:
建筑类别与耐火等级、总平面布局、平面布置
注意事项:
1.钢结构构件的防火处理;
2.景观设计、施工后,占用消防车道、登高操作场地。
3.消防控制室和消防水泵房的门槛(防水淹);
4.与消防无关的电气线路或管道穿越消防控制室。

建筑保温、外墙装饰、建筑内部
注意事项:
1.需真实填写外墙保温材料的耐火等级报告;
2.内装修材料需要有防火性能的证明文件,禁止使用不符合内装防火规定的材料;
3.门不可开向疏散走道,会影响疏散宽度(需做内凹处理式或180°开启);
4.不得随意改变窗台高度,导致上下层开口之间距离不足1.2m(或0.8m)。

防火隔离、防烟隔离、防爆
注意事项:
1.要对穿越防火墙的管线进行封堵处理(很严重,一处不合格即可使整项且无法验收通过);
2.防火门的开启方向一定要确认清楚;
③防火门的自闭功能、联动功能要安装到位。

安全疏散、消防电梯
注意事项:
1.要保留足够的前室窗口开启面积;
2.再次强调疏散门的安装方向;
3.确保该有的应急照明和疏散指示标志;
4.消防电梯机房内需设置应急电话。


你所担心的,这些大地产商早为你准备好
面对这么复杂的消防新规,单单注意上面还是不够的。不过了,像万科、绿城等各大开发商也不是吃素的,他们内部早就研发2020年各类型的住宅建筑户型库CAD,专门针对今年的消防新规,直接套用即可。

今天小编也给你收集好了一套绿城的建筑户型库CAD,希望能帮你一次通过2020年各种消防验收。
| 以下为本次资源内容展示 |
2020年全国住宅建筑户型库CAD
资源总目录
01-2020年全国常用住宅标准化户型库CAD(74款)
02-2020年深圳强化设计住宅标准化户型库CAD(36款)
03-绿城北方高层住宅标准化户型库CAD(12款)
04-绿城南方高层住宅标准化户型库CAD(21款)
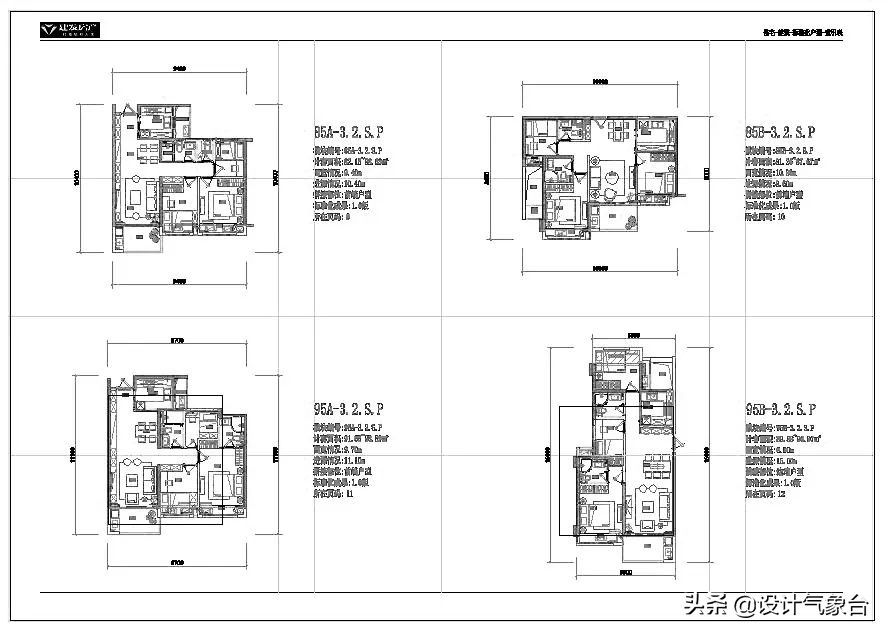
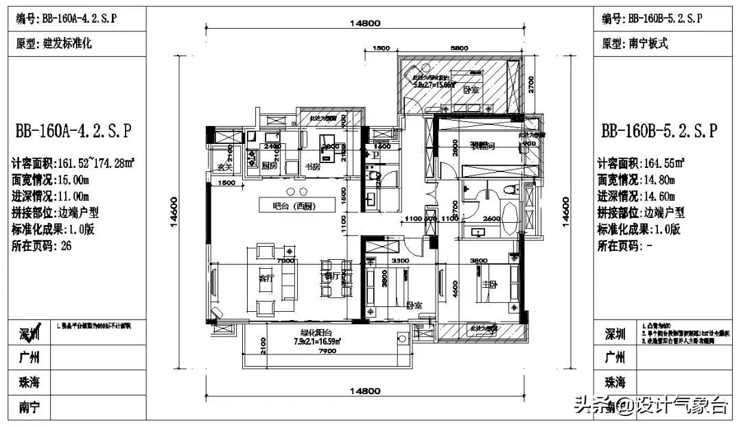
全国常用住宅标准化户型库CAD
包含各类型前端户型/边端户型/拼接户型





深圳住宅标准化户型库CAD
包含各类型点式户型/版式户型/核心筒/拼接户型


- 版式户型 -


- 点式户型 -


- 核心筒设计 -


- 拼接户型 -
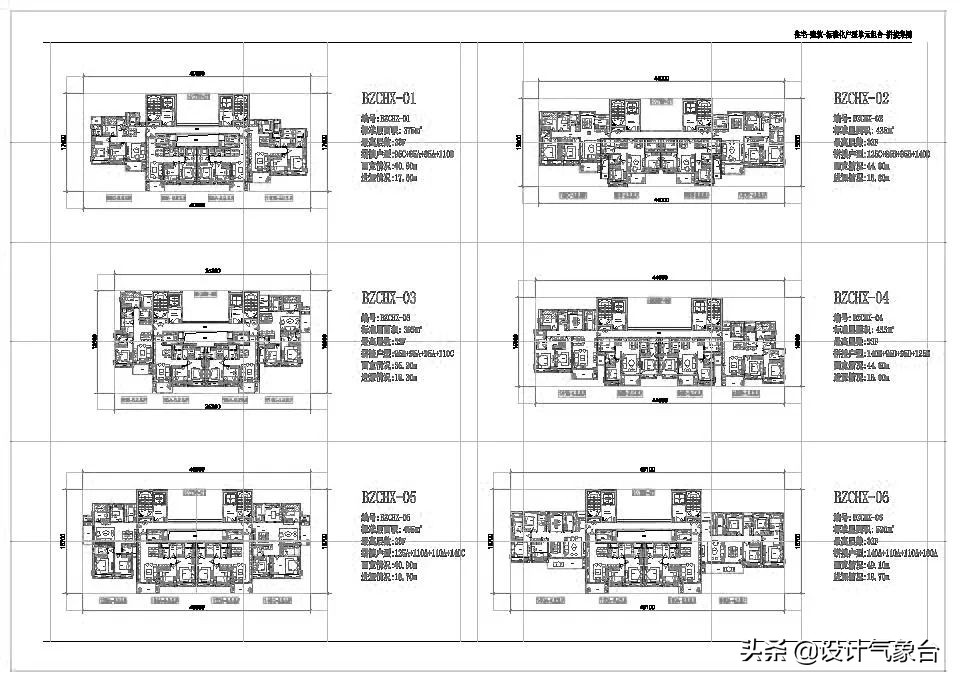
绿城北方高层住宅标准化户型库CAD
四房两厅两卫/四房两厅三卫




绿城北方高层住宅标准化户型库CAD
54-100㎡/100-140㎡/140-169㎡




领取方式
私信回复关键字: XQ04
(一定要私信哦~点击我的头像,进入主页面,点击右上角私信按钮)即可免费领取~)
设计气象台,广受90后年轻设计师喜爱的设计黑科技平台。全网最新的建筑/景观/规划/室内设计资源、知识干货,让你满载而归。如果你喜欢设计,请关注我们。
