

既能满足医疗流程及功能
又能提升医疗及空间品质
同时又能创造出一个拥有优质城市界面的综合大楼
在医疗功能性与建筑自主性表达之间
进行反复地平衡与协调
在建筑的终极目标与现实状态间
寻求某种巧妙平衡

海安县人民医院作为江苏省十佳医院,是一所集医疗、教学、科研、康复、保健为一体的综合性三级综合医院 ,承担着海安及周边地区繁重的医疗卫生工作任务,为全县医疗卫生的科教研中心。新建综合楼按照三甲标准设计,位于老院区西北侧,东接洋港河,西邻海陵公园,南靠老院区门诊楼,北靠老通洋河,项目总建筑面积8.2万㎡,设计床位750床,项目容积率5.57。
根据医院总体规划,从占地面积和建筑密度、建筑容积率上看,项目用地十分紧凑,新建门急诊病房综合楼需要平衡城市、新旧、功能、流线、造型等多方面的矛盾因素,我们希望能寻求一个 既能满足医疗流程及功能,又能提升医疗及空间品质,同时又能创造出一个拥有优质城市界面的综合大楼 。

# 新院区总图

# 设计构思草图

城市策略:更新、融合
设计 既要考虑与老院区建筑群的融合,又要回应复杂的城市环境 ,首先我们将主塔楼远离主干道,退让出尺度适宜的距离,将体较小的裙房临路布置,避免大体量的主塔楼对主干道的压迫,为城市营造出轻松的城市界面。在立面设计上我们在西侧面对城市一侧通过大面积的虚实对比,体块穿插,横竖线条的对比,营造除了丰富的城市界面,而北侧临河一侧则通过简洁竖向线条传达了相对简洁的沿河立面。


# 集中式的布置模式

# 丰富的城市界面

# 与西侧城市公园的对话

# 与北侧沿河城市公园的对话

# 简洁的沿河立面
总体设计策略:集中、退让
新建门急诊综合楼是原有医院的改扩建,基地用地十分紧凑,退界之后实际可建设用地更是相对紧张,因此在设计中我们通过对功能和入口的合理组织,对建筑形体的有效把握,最终有效的缓解了用地紧张的问题,在现有的用地条件下设计出符合医院需求的现代化门急诊综合大楼。同时,我们充分利用现有场地,退让出尺度适宜的院前广场,为医院大量的人流疏散创造了良好的条件。医院整体布置紧中有松,疏密有致。

# 集中式的新综合大楼

# 尺度适宜的医疗前广场

# 尺度适宜的医疗前广场

# 简洁大气的主入口
功能组织策略:中心、发散
为了缩短就诊流程,我们在功能及流线组织上通过中心发散式的功能布局,使得各个功能区块围绕门诊大厅展开,很好的解决了新建综合楼复杂的功能需求,大大的降低了其内部的流线组织,提高了综合楼的运行效率,为医院高效率的运转创造了良好的条件。

# 宽敞明亮的中心服务大厅

# 候诊休憩空间

门诊大厅设计:导向、分流
门诊大厅是新建综合楼最重要的公共空间,同时承载了多种功能和含义,它在某种程度上代表了医院的形象,医院给病人的第一印象往往就在这里生成。门诊大厅的设计简洁流畅,一到四层的通高设计给人大气端庄的形象,白和灰成为其主色调、配以局部暖色,营造出一种和谐的气氛,大厅通过明快的标识系统,在最短的时间内将各种人流分散。
—
综合门诊单元:清晰、明快
综合门诊设置于1-6层,利用两部自动扶梯和十一部电梯上下联系,各层分设挂号,统一面向医疗街方向布置。
—
急诊急救单元:高效、便捷
急诊急救单元面向城市干道,易于识别,急诊设置抢救、诊室、药房、挂号收费一站式服务,功能紧凑齐全,东侧直接和医技单元通过中庭联系。
—
综合医技:集中、联系
门诊、医技、病房集中布置在一栋楼内,便于门诊病房和医技的方便联系。
—
病房设计:分区、分流
病房设计区域分明,明确区分病人区域和医护区域,分区明确。洁污分流,清洁物品从北侧医护人员专用电梯供应;污物使用专用污梯。

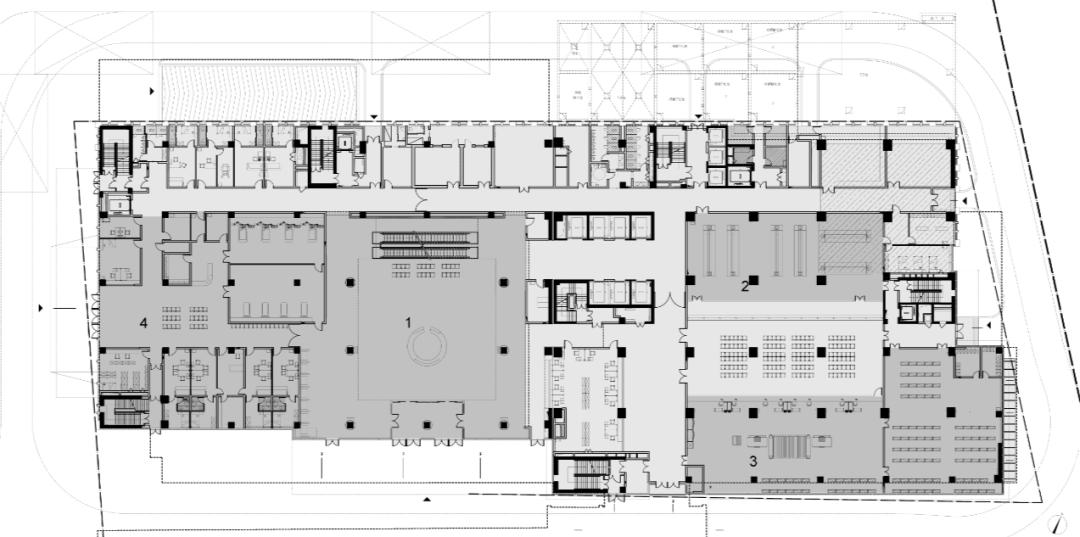
# 一层平面图
1 门诊大厅
2 门急诊检验科
3 门诊药房
4 急诊

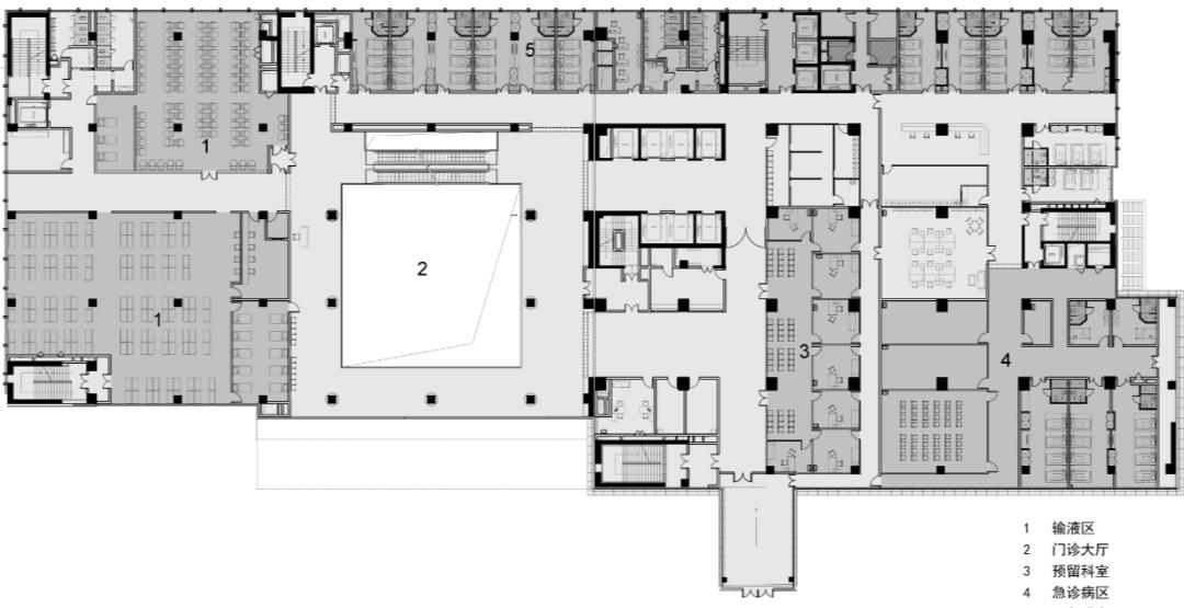
# 二层平面图
1 输液厅
2 门诊大厅
3 预留科室
4 急诊病区
5 预留观察

# 剖面图

新建大楼与原有门诊医技合理衔接,将内部功能与原有院区功能进行统筹安排,大大优化海安人民医院的就诊环境,提升了整个医院的运作效率。
—
环路系统:联系、环通
新建门急诊大楼与原有建筑围合出完整的室外人行广场,并以一条环路将整个医院区各建筑设施与外部空间积极的连接成一个系统,这不仅实现了院内道路连接各个建筑设施所应有的基本功能,其更有机地将室外环境衔接起来,创造出了围绕环路变化丰富的景观。
—
人流组织:清晰、分流
急诊人流 :急诊单元设置于裙楼西侧,靠近于主入口附近,方便急诊人流就诊,急诊设置抢救、诊室、药房、挂号收费一站式服务,功能紧凑齐全,东侧直接和医技单元通过中庭联系。
门诊人流 :通过门诊大厅两部自动扶梯,一部医梯,非常便利的到达各楼层各个科室。
住院人流 :住院人流通过南侧连廊处出入院入口进入,进门就近办理出入院手续,通过六部医梯到达外科住院部各层,方便快捷。
医护人流 :医护人员专用入口设置于建筑北侧和东侧,其流线区别于病人流线,在建筑北侧设置三部医护人员专用电梯供医护人员使用。
探视人流 :通过南侧住院入口进入,通过七部对外电梯进入护理单元。

# 简洁的医院主电梯厅

# 宽敞明亮的医院主通道

立面设计遵循“ 大气、庄重、典雅 ”风格定位,意在营造出一种 厚重、平稳、尺度近人而且不失细节 的建筑表达。 模数化 的立面分割,简洁的虚实对比, 富有韵律感 的立面细节,体块的凹凸穿插都带给人清晰明了的感觉。
立面设计中我们提炼了现代的建筑语言,比例适宜、细部处理精致,我们将经典的比例形式与现代的材料相结合,力求 在古典和现代中寻求平衡点 。同时,我们希望 对城市文脉做动态的理解 ,用不同的立面处理在回应城市的文脉, 在动态中寻求平衡 ,实现对城市界面品质的提升,优化城市环境。

# 横向遮阳系统细节处理

# 简洁的沿河立面

# 横竖线条的细节对比

# 立面细节处理

城市大多数的综合医院都建设在城市的核心区域,随着所在城市快速发展与扩张,医院周边慢慢高楼林立。用地紧张,过度拥挤是现有医疗改扩建的常态。医院改扩建设计中,如何平衡医疗空间需求与医疗环境的协调发展值得深思。我们要做的是主动直面矛盾,充分考量改扩建建筑与现有建筑在医疗功能、建筑形态之间的关系,另外其作为城市形态组成的一部分,还应该充分考量其与城市的关系,我们应当在医疗功能性与建筑自主性表达之间进行反复地平衡与协调。平衡所带来的结果不一定能解决所有问题,它也不一定是最好的,但它是一种实现共同价值的方式,是 在建筑的终极目标与现实状态间寻求某种巧妙平衡 。
项目名称丨 海安市人民医院门急诊病房综合楼
建设地点丨 江苏 海安
项目年份丨 2015-2020
建设面积丨 82000 ㎡
设计单位丨 浙江大学建筑设计研究院
项目负责人丨 陈建、王健
建筑设计丨 乔洪波、许益盛、徐昉、沈超
结构设计丨 魏开重、尹雄、孟亮、吴帅
给排水设计丨 汪波、梁宏飞、金艺蓓
暖通设计丨 张敏敏、郑宸
电气设计丨 吴旭辉、毛阗、吴彩飞、邢高兴
智能化设计丨 王杭、林华、李向群
景观设计丨 莫云菲
室内设计丨 孙海峰
幕墙设计丨 方舒
建筑摄影丨 赵强、沐夜
资料来源、版权所有: UAD浙大设计