自2021年以来,一条又一条的政策规划相继出台,对武汉房地产市场来说皆是一枚又一枚的重磅*弹炸**。近期有不少置业者询问未来房产的市场走向到底何去何从?而作为主持人也能深切的感受到大家对于置业的焦虑。如今,我国的楼市已经进入了改善的元年,其实绝大部分家庭都在购买二套房甚至多套房了。在住房不炒的大背景下,不仅是新房,二手房也已成为楼市调控的主战场。随着更多精准调控举措的落地,炒房客的投机空间将被逐步挤压。未来的市场也的确会回归平稳的状态。其实,由于房产价格过高,不少年轻人太过焦虑慌了阵脚,只想抓紧上车,反而忽视了自住舒适度、价格等刚性需求,既增加了经济压力,又得不到生活质量的相应提升。这时候有效买房和无效买房的差距就体现出来了。
拒绝盲从,选择有效买房
对于买房这一观点,我一直传播的就是——做到“有效买房!”要知道,买房的目的不仅仅是为了居住,更为了提高生活水平。实际上,年轻人的首次置业,应该在自己能负担的范围内,选择能切实提高自己生活质量的项目。在坚持住房不炒的理念下,尽量选择有限能力范围内的大户型一步到位,而不是寄希望于未来进行不断置换。

对于购房者来说,最在乎和讲究的就是地段,买房常说的口号就是地段为王,一个位于好地段的房子也是它面对市场时最大的优势所在。周边醇熟配套,且交通便捷,房价也在不断上涨中,买来投资也是上上之选,这样的房子买到后只会庆幸自己当时买了,这就是所谓有效购房。一所房子承载着许多人对于家的定义与梦想,大品牌好口碑、高销量、好户型,这些似乎都缺一不可!如今,融创公园大观,在深度定制产品并在原有基础上迭代升级,实现真正有效购房,满足一步到位的需求。
品质、销量、户型兼具,才有生活的安全感
优质的居所,诠释着居住者对生活的品质要求,是审美倾向的象征,更是代表一种生活方式,因而品质就显得尤为重要!而说到这,我就不得不提及众所周知的人居标杆——融创。作为中国地产企业TOP4,2020中国房企产品力第一名,2015融创首次进驻华中地区,落子汉口片区,打造融创公园壹号一期、二期和融创澜岸等项目,其口碑在区域内就是品质的代名词。毫无疑问,现在融创已经不仅仅是一个品牌这么简单,其更代表的是品质感的居住体验。不仅如此,现在融创公园大观便凭借产品的好设计及高品质,以一己之力成了区域流量担当。从开盘至今,四个月时间卖掉约1800多套,4-7月连续四个月江岸区网签备案第一;后湖每卖出2套房子,就有1套来自于融创公园大观,俨然成为汉口楼市的绝对王者。
傲居二环核心,启幕独家IP乐园
随着武汉内环外扩、江岸区政府搬迁至此以及“三中心一基地”的打造,塔子湖板块已经成为江岸区名副其实的黄金三角之一。而融创公园大观,位处和谐大道与塔子湖东路交汇处(中一路地铁口),也正是汉口的中轴中点地段。项目周边两环、三横、四纵、三地铁立体交通路网环伺,且周围配套醇熟,商业繁荣、教育品质良好、医疗资源充足,简直是不可多得的核心地段。再加上,现在市场上内环区域供应紧张,三环内优质的百万综合体更是寥寥无几,这也是促使其成为流量王者的原因之一。

融创公园大观作为汉口三环内难得一见的单体量建面近百万方大盘,包含19栋住宅、约16.7万方的商业办公,同时配建两所幼儿园。项目内规划近9.5万方的超大景观园林,其相当于三分之一个中山公园。而除了上述大体量的优势之外,本次融创更是将产品一再升级,其中最亮眼的打造就是—— 全国首个住宅阿狸乐园, 由多个园区9个活动节点组成,5大场景,29种玩法,承载的不仅仅是基本居住需求,更是解决孩子的成长问题,满足儿童安全、社交、成长等多种需求,也让业主更愿走出家门,和邻里聚集交流,一起享受自然舒适的生活。

一个安全和谐自由友好的社区环境,对儿童良好的人生开端及成长过程承担着重要作用,而融创构建出武汉的首个儿童友好社区,更是一个安全、充满想象力的童真世界。其中“阿狸儿童乐园”是融创社区里打造的真实童话乐园,此外还有三大主题乐园,为社区里不分年龄的孩子,创造了一个有温度的童话世界。此外,融创还打造了26度心空间体系,四点半学堂、儿童天地、攀岩墙、小型图书馆、功能教室等,尽可能多的创造邻里社交空间。就连游乐场地与慢跑道,都采用环保的EPDM塑胶地垫,力求为孩子提供一个安全活跃的户外环境。可以说,融创本次产品体现出了超强的“儿童力”,不仅加强了人与人之间的沟通,更帮助业主建立“友好”的关系,也珍重并保护孩子的成长时光。
改善硬核户型,匠造轻奢实力派
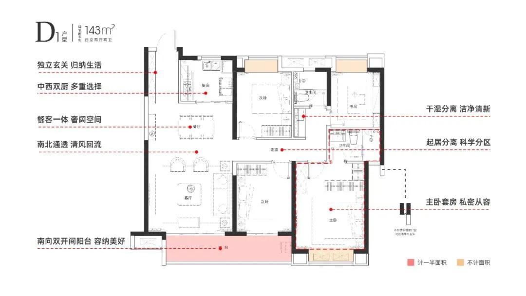
如今,很多人都向我表示,置业需求要满足一家人既能共享天伦之乐,又能兼顾下一代的成长。的确,舒适的生活少不了的就是父母与孩子的陪伴。本次融创公园大观打造建面约143平米大户型,不仅一步到位,还解决了未来的置换焦虑,提高了生活品质的同时兼顾个人隐私,真真正正的满足每一个人生阶段的需要。

户型整体结构方正,南北通透,其最大的亮点就是横跨两房的双跨阳台;客厅、餐厨、阳台融合成一个整体,轻松容下三代同堂的生活起居;而双卫干湿分区,则考量了起居的周全,更提高了使用率和隐私度。
其余三间房均带“超尺度”飘窗,增加储藏空间的同时景观视野也得到了保障。而书房的设计也创造更多的生活演绎,将其改造成一间卧室,三世同堂亦或是三孩问题都能解决,不必再为置换所烦恼。