对于业主来说,能选择在这里居住,其经济价值与眼光可见一斑,对于享受生活来说,大环境虽然很重要,但更多的是自家的内部小氛围,综合了多种设计风格的特点之后,结合美巢装饰设计师给出的建议,选择了美式乡村风格,请参考。

客厅全景
小区名称: 银基王朝
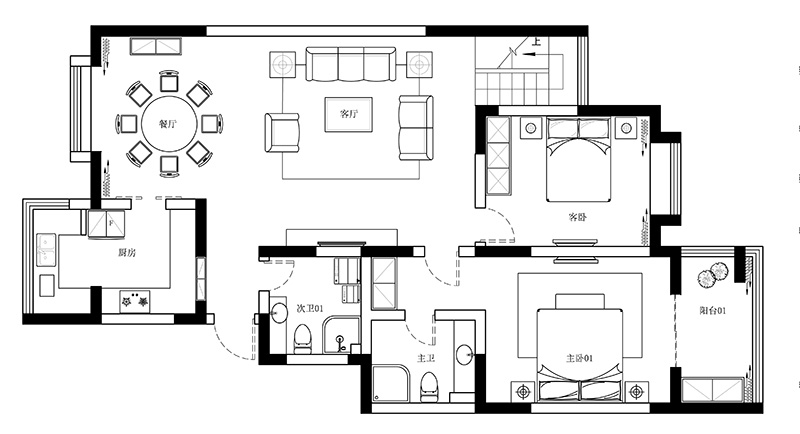
案例户型: 复式
装修风格: 美式乡村
小区面积: 200平方

电视墙

沙发

餐厅全景

户型

户型

楼梯
对于业主来说,能选择在这里居住,其经济价值与眼光可见一斑,对于享受生活来说,大环境虽然很重要,但更多的是自家的内部小氛围,综合了多种设计风格的特点之后,结合美巢装饰设计师给出的建议,选择了美式乡村风格,请参考。

客厅全景
小区名称: 银基王朝
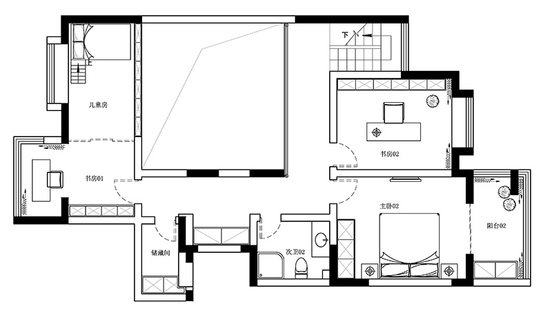
案例户型: 复式
装修风格: 美式乡村
小区面积: 200平方

电视墙

沙发

餐厅全景

户型

户型

楼梯