南昌华润橡树湾橡府210平中式风格装修案例,客厅餐厅及过道吊顶区域空间分布,营造通透温馨的环境,整体设计富有文化气息和时代感,韵味十足。
小区:南昌华润橡树湾橡府
面积:210平
风格:中式
预算:半包18万

南昌华润橡树湾橡府210平中式风格装修——玄关

南昌华润橡树湾橡府210平中式风格装修——客厅

南昌华润橡树湾橡府210平中式风格装修——餐厅

南昌华润橡树湾橡府210平中式风格装修——厨房

南昌华润橡树湾橡府210平中式风格装修——地下一层户型图

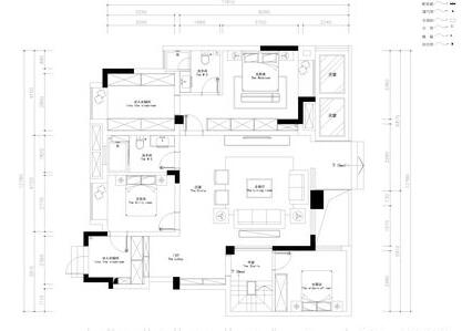
南昌华润橡树湾橡府210平中式风格装修——一楼户型图
南昌华润橡树湾橡府210平中式风格装修案例,大家觉得怎么样?找装修公司不头疼,南昌装一网来帮您!
↓↓↓↓↓
来装一网注册招标信息,省心、省事、省力!
为您免费推荐3家装修公司上门量房、做预算、出方案,全程免费的哦!!
10秒获得装修报价,请复制下面链接!
http://nc.zxdyw.com/m/zb/bj.html?utm_source=jrttdingyao1
手机用户可直接点击下面图片【10秒在线获取装修报价】!