这是年前最后一篇推送啦,大家都回家过年了吗?
过去一年,暹罗妹儿忙于工作和学泰语,有汗水,有收获,疏于更新文章…尤其是前几个月,国内手机卡消磁,没办法更新头条文章…感谢大家不离不弃的支持~
过年啦,今天我们就聊点轻松养眼的话题吧。

过年期间,许多中国业主趁着假期去曼谷收房。收房后,紧接而来的就是软装布置工作。
曼谷的公寓以小户型为主,套房25平上下,一房30来平,两房大多四五十来平。小户型装修需要更加精准的测量尺寸,合理布局利用空间,同时还要兼顾“美”的属性。
关键词:小户型、北欧风
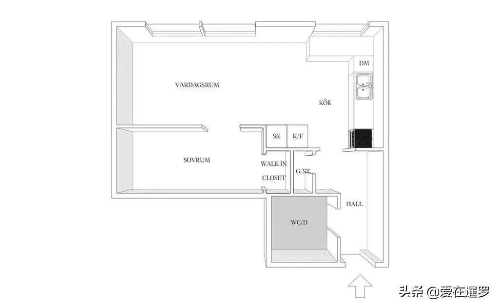
今天分享的是暹罗妹儿非常喜欢的一个室内设计,瑞典设计师Bjurfors Skåne对马尔默一座小户型公寓的改造。这是户型图▼

室内面积46㎡,不算宽敞。设计师通过家具、绿植等软装的巧妙点缀,打造出温馨、灵动、生机的家居空间,让人眼前一亮。
进门左侧是卫生间,左侧墙下的长凳,可用来摆放装饰品。如果想更实用,将其换成设计简洁的换鞋凳也可行,美观实用都不耽误。

右侧的木质衣帽挂钩,实用性也很不错。尤其是女士居住,进出门可以轻松取放包包、帽子、雨伞/遮阳伞等物件。
入户玄关正对面就是厨房,开放式的布局让空间看起来宽敞许多。

纯白+原木配色,白色让人觉得明亮舒适,原木墙面与室内和窗外的绿植呼应成趣。

定制的橱柜,预留了足够的空间,满足厨房用品的收纳需求;开放式的格子橱柜,放些常用的餐具、厨具,使用起来也更加顺手。
摆放一些装饰性的餐具或钟情的器皿也不错,时时看见心仪之物,也不失为一件舒心养眼的事。

再往里就是餐厅区域。豆沙色的餐桌椅清新淡雅,简洁的线条干脆通透,对小户型十分友好。

玄关与餐桌之间,设计师有安排一组储物柜,及一个小小的办公空间,配色依然是纯白与原木。都蛮实用,不过图片没有从正面展示出来。

客厅没有采用传统的沙发,而是定制的卡座,实用同时丰富储物空间。嵌入式书架,兼具美观和置物功能。

豆沙红的抱枕、豆沙绿的坐垫、原色竹编灯罩、竹制茶几、竹制老爷椅、灰墙、浅驼色围披…绿植在其间错落有致,舒心的色彩搭配,也让空间灵动而不凌乱。

设计师在室内多处都利用绿植进行点缀,在白与木元素里,在阳光下,更显生机与灵气。
客厅往左就是卧室了。

设计师把客厅与卧室之间的隔墙改成了铁艺+玻璃的推拉门。因为,如果用隔墙,整个卧室是没有采光的,住起来并不舒服吧~

换成铁艺+玻璃门,不仅风格简洁和谐,也让卧室的光线明亮许多。白色拉卷设计,保证卧室的私密性。

卧室内并没有做过多的装饰,有两面完整的白墙,但并不让人觉得单调。这要归功于高低错落的绿植、黑色铁艺推拉门,还有暖色蓬松的床上用品。

床尾对面小小的衣帽间。设计师没有给它安置一道实门,而是柔软白色的帘子,温馨感up↑。

衣柜旁的小挂衣竿其实也蛮实用的,尤其对出门前穿衣纠结星人来说,可以提前搭配好第二天要穿的衣服,挂在一旁,第二天早上起来直接穿,多方便~
最后看看卫生间。

白色基调,干净明亮;置物架丰富了收纳空间;绿植与原木镜框,与房间的整体风格和谐呼应。

暹罗妹儿点评
此房间的软装十分细致到位,可以在很大程度上丰富房间的颜值。绿植高低错落有致,不仅丰富了空间立体感,也拉近与自然的距离。
实用性高、配色和谐、风格清新出众、让人眼前一亮。

不过!这套设计方案如果搬到曼谷,暹罗妹儿认为可能存在以下几点弊端。
1、窗帘的颜色太浅,遮光度差,不能抵挡热带的强光线;
2、没有电视。虽然对许多中国年轻人来说,电视变得越来越不重要,不过泰国人还是比较爱看电视的。如果房子用于出租,电视还是需要的;

3、定制家具较多,成本高,对出租来说,成本上可能不太划算;
4、软装太过细致。如果是自己住,当然,多细致都不为过。如果用于出租,则不需要武装到浴巾、绿植这种程度。尤其是绿植,虽然美,但只要超过一周没人住,基本都go die了。
所以,以上案例供各位小户型业主参考,汲取灵感~适合自家的户型,尺寸正确、风格和谐的,才是最好的。

如果您没有时间亲自操办曼谷新家的软装布置,欢迎委托给暹罗妹儿~最后,恭祝大家:新年快乐!猪年大吉!