长久以来,“中铁·阅山湖 云著”都是贵阳市的品质楼盘代表,如今,它迎来了一个强劲的挑战者——中海·映山湖。之前参观其展厅的时候就满怀期待,得知其“滨湖文体中心”已经开放,设置了“同行接待日”,我便提前联系了好朋友雪莲,今日一睹芳容,现在我就带大家“参观”一道。

一、项目周边
项目位于大关城市花园旁,紧邻林城东路、西二环和北二环,交通较为方便;被长坡岭国家森林公园环绕,生态环境优越。

项目入口就在“金岭社区”公交车站旁,乘坐264或B236路即可到达。


外围高耸的挡墙上印着其案名及logo、“观湖叠墅”和“纯板平层”,将其卖点提前“曝光”(我们有别墅,我们全是版式结构!)。

二、项目示范区
入口的大门比较有昭示性,有古代大户人家的气派感,只不过在站岗厅附近没看到“精神堡垒”。


右边是停车场,从左边进入,端庄典雅的“滨湖文体中心”(以下简称“中心”)便呈现在眼前,需要下几个台阶,穿过水廊(去的时候刚好在整理,没看到水廊开放的美景),才能到达中心。


三、滨湖文体中心
进入中心,接待台旁有一个“人体测温系统”,会提示佩戴口罩(受疫情启发,该功能还是比较实用的);接待台的物业小姐姐会进行问询:有没有预约的置业顾问。登记之后就到二楼接待。

可以乘坐电梯上二楼,也可以走“旋转楼梯”,值得一提的是:楼梯宽度并不窄,不会出现只能靠着边上走的现象。

快要到二楼的时候,专属置业顾问已经做好接待准备,迎接客户的到来,开始从品牌开始讲解。
①品牌馆
品牌馆入口有“雾帘”,上面依稀能看到一些文字,很有朦胧美。

介绍品牌主要是说它的历史、荣誉,以及强大的央企背景。

由于是纯板式结构,它在品牌馆就提前把“板楼”和“塔楼”进行了对比,通过一天不同时段的采光、通风情况,展现了板式结构的优越性。

接着展示了中海在全国的一些代表作,例如贵州老乡任正非前辈居住的深圳香蜜湖一号。

最后,介绍了楼盘强大的软实力——中海物业。特别提到了它覆盖了*党**政机构,广受好评。


②项目区位
中心没有“区位图”,而是直接使用了一个大沙盘,把项目周边的众多配套囊括其中。值得注意的是,沙盘上金融城比项目更亮更显眼。但由于沙盘风格问题,长坡岭国家森林公园这个自然优势没有很好的体现。

他们把“林城东路”称为贵阳的“长安街”,突出项目和金融城的关系,实测2个站就能到达金融城。另外,距离贵阳北站也很方便,两个站就能到达。而且,项目周边还有西二环、北二环、贵遵高速等,十分方便。
值得一提的是,除了便捷的商业配套,(项目自带10万方商业,距离CCpark、云上方舟也比较方便),他旁边还有个“观山湖区大健康医疗综合体”,就在路口斜对面,主题结构已经差不多了,未来医疗这一块是比较方便的。

③项目内部情况
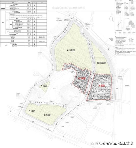
项目总占地面积18.5万方,总计容建筑面积47.5万方,容积率2.5,规划2742户、4439个车位,商业占比25.73%。项目内部有2.5万方人工湖和两个市政山体公园,可供市民休闲。

项目沙盘把长坡岭国家森林公园很好的展示了出来,最前面是项目的商业配套(如下图C、D组团),包含“滨湖文体中心”及写字楼、商业、高层等;E组团是商墅产品。

A组团是7栋26层一梯两户的板楼高层,12栋9+1洋房、叠拼别墅;B组团是11栋26层一梯两户板楼高层;另外,项目内部自带12班幼儿园、 18班小学的教育配套(没有中学是个遗憾)。学校目前还没确定,不过设计图是出来了的。

项目首开的是B组团的三栋高层,一栋观湖(大户型140㎡和125㎡),两栋朝向偏南北(125㎡和115㎡)。洋房预计7月份推出,叠墅6月底开。

分组团进行管理,互不干扰。高层层高3米,物业费2.98元/㎡;洋房层高3.15米,9楼和10楼是复式,下面全是平层,物业费3.2元/㎡;叠墅层高将近3.5米,总共6层,一户3层,上叠也带地下室和花园,物业费4.9元/㎡。

叠墅有两种造型,上图是6户款,四户下叠,从前面入户;两户上叠,从背面入户;下图是4户款,两户下叠两户上叠;有预留电梯井;目前叠墅户型还未出来。

④样板间
目前只有洋房165㎡户型的样板间,是4房3厅3卫的设计。(等叠墅户型图出来了,专门分析一下他们的户型)

样板间位于4楼,一出电梯往右转就能看到中天ZTF中心,楼顶设计的很有意境。

洋房样板间入户门就是交付标准,第吉尔的指纹锁(别墅也是),很有份量;入户玄关私密性好,有仪式感。

整个样板间是按照中式风格来打造的,连音乐都是很有韵味,笔者参观时候*放播**了轻音乐《在水一方》。

样板间做的是西厨,整个厅看起来非常宽敞、采光极佳。

阳台直接能看到人工湖,视野很好;不过这么大的户型没有生活阳台是个遗憾。

主卧衣帽间设计方便女主人挑选衣物、化妆;众多中式元素体现了文化自信。


双套房的设计,老人一起住,不用担心起夜问题。

整个样板间给人的感觉很舒服,基本上就只考虑钱的问题了。
⑤其他
整个中心是4层,除了1楼的接待大厅、2楼的销售大厅、4楼的样板间,在3楼还有健身房及观景台。

3楼一出电梯是个休闲区,右转之后是健身区,有很多健身器材。



观景台可以直接看到人工湖,健身完到这里放松放松,广阔天地近在咫尺。



除了满满的中式元素,还有一些科技设备。

每张座子上都有一个设备,可以提供茶饮、楼盘信息查阅、置业计划书等服务。



客户可以根据自己的需求扫码把资料带走,不需要拎户型图、计划书等物料。

在洽谈区旁有一个小心的儿童娱乐空间,客户不用担心孩子没地方玩,不能专心看房。


在2楼,还有一个游泳池,B格满满。


总结:整个示范区的打造很有质感,体现了匠心与品质。从展厅的展示、打造,物料的用料,到中心的打造效果,有很强的一致性。给人很强烈的印象:央企,太豪了,不差钱!不管你买不买房,都非常值得一看,看一看有品质的住宅,到底是什么样的。
目前越来越多的品牌开发商入驻贵阳,出现了“神仙打架”的局面,不断出现高品质产品,可以看到:贵阳住房的品质升级正在加速。
文末福利,想要去映山湖看房的同志,可以私信我,为您预约资深服务顾问,获得专属接待。
互动话题:你觉得中海·映山湖和云著比,怎么样?欢迎在评论区留言。更多内容,请关注全平台自媒体@西南官话八级王黄璜,不错过西南地区精彩内容。
