郑州市规划局网站发布
河南省肿瘤医院内科病房综合楼新建项目设计方案和技术指标

用地位置:河南省肿瘤医院
总建筑面积:287856.76 平方米
本次报建建设规模:94544.49 平方米
建筑密度:42.21 %
停车位:2530 个

内科病房综合楼(临纬四路一侧)
而该项目正在申请施工许可证

关于河南省肿瘤医院
河南省肿瘤医院(郑州大学附属肿瘤医院)是河南唯一一所集医疗、预防、科研、教学、康复为一体的三级甲等肿瘤专科医院,筹建于1977年,1984年正式开诊,2010年挂牌成为郑州大学附属肿瘤医院。
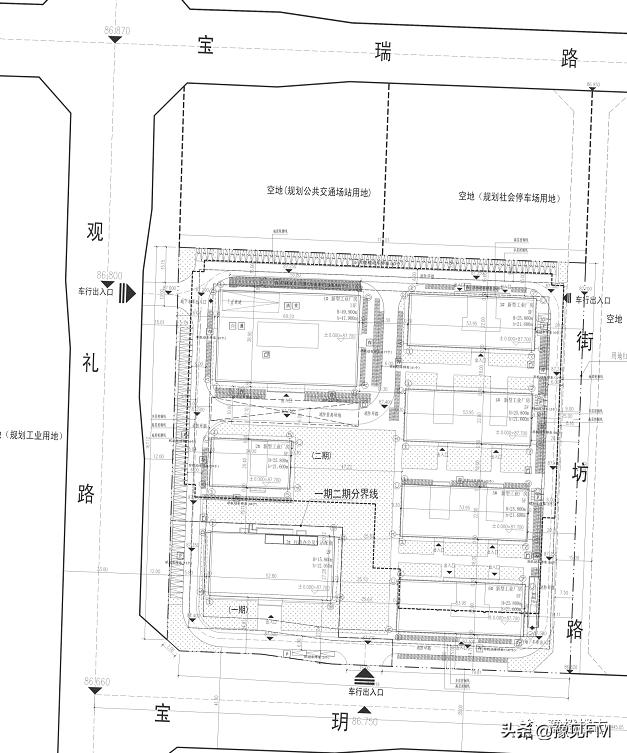
金水区未来科技产业园

用地位置:马林新村南侧地块(宝瑞路南、观礼路东)
总建筑规模约8万平方米

建设方:河南颐城金安建设发展有限公司
延伸阅读
郑东新区北部区域概念性总体规划(金水科教园区部分)
郑煤机“芝麻街双创园”规划大调整
郑州一周资讯:农业路西延伸 新龙路、聚源路小学、中原区、管城区区域调整划 速速来围观