



本案坐落于苏州秘境虎丘湿地公园,设计师以矩阵线条,一致性标准化作为本案的设计理念,连贯室内各个独立空间,型塑主体明确,并以国际现代设计语言赋予会员们一个全新的体验。
选用米白灰作为空间基调,而原木色则始终贯穿于整个场景,散发出空阔淡泊的风度。希望会员们能享受到愉悦平和的氛围,体味精致生活。

接待大堂
1F
设计师借助条状形态的纵横优势来搭建空间,木条吊顶的天花设计搭配长短不一的灯条,形塑漂浮格栅之美。户外的天光云影透过大面积落地窗过渡到大堂,同时运用原木置物架作为洽谈区的隔断,带来视觉上的空间的开阔感与通透氛围。



洽谈区
洽谈区融入了云石与绿植,带给空间一丝生机和活力,营造惬意舒心的休闲空间。浅淡的米色沙发与橘褐色单椅围合严谨,营造出规整的空间布局形态。沙发线条柔和,结合高低组合形式的茶几,于简约中蕴藏丰富的层次美。








儿童区
来到儿童区,红绿相映的几何元素挂画与书架上大小不一的圆形拱门作呼应,给空间增添了不少童话色彩。茶几和小沙发皆以圆角设计,保护儿童安全,从细节上体现出设计师的贴心与周全。


-1F
-1F
地下一层的接待区,以浅色作主调,配合不同质感的建材,例如云石茶几、原木背景墙及玻璃摆件等,营造层次感,同时亦用上延长线条,增加视觉空间感。


接待区
健身房以直觉性的线条架构空间,自然日光透过落地窗洒进,搭配原木地板及间隔墙, 体现以简为美,以质为雅的设计理念。



泳池整体呈开放式的空间布局,设计上以简洁的横向和纵向线条结构,宽木吊顶设计延伸至墙面,勾勒规整的空间线条的同时,亦展现简洁与精致。

泳池休闲区


休息区的绿植背景墙给空间添上葱茏的色彩,搭配上藤编沙发,呈现盎然生机,自然的韵律。



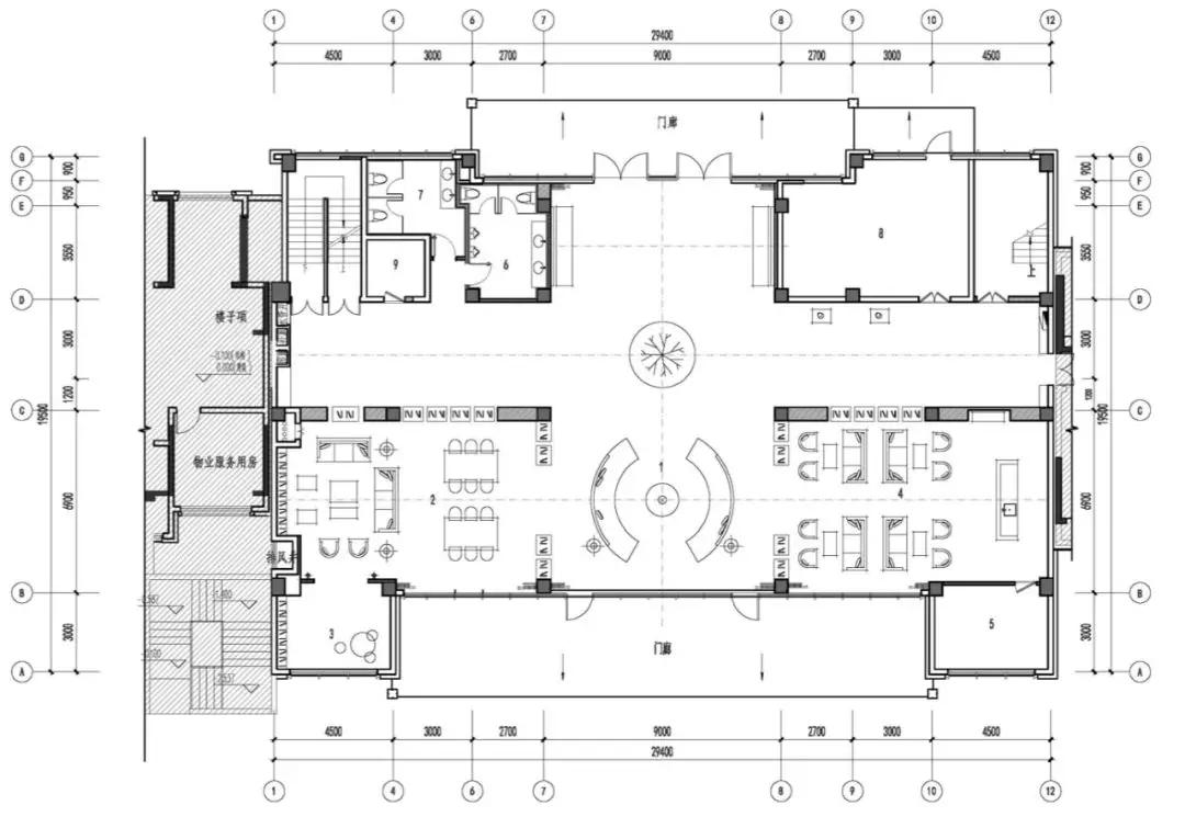
1F平面图

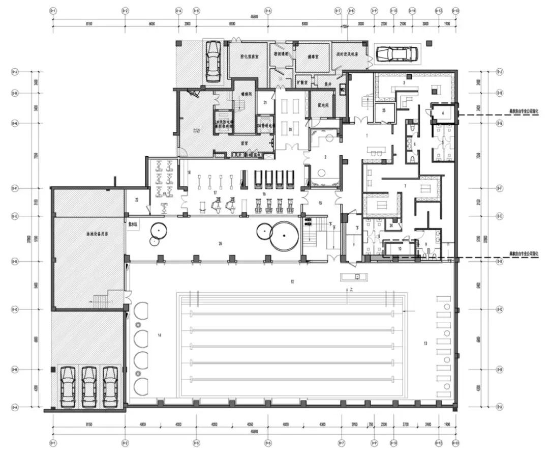
-1F平面图
【项目名称】:苏州九龙仓逅湾花园会所
【项目地点】:苏州市相城区虎丘湿地公园北华元路与通湖路路口
【项目面积】:1618㎡
【硬装设计】:ISSI DESIGN LTD
【软装设计】:JA DESIGN CONSULTANTS
【设计团队】:Andy Leung,原野,许长江,陶仁隆,牛红立,马冉,陈婷媛
【项目摄影】:李胜阳