
几何小屋
这栋形状不规则的可爱「林中小屋」
藏在纽约莱茵贝克森林里
小屋内部结构紧凑,面积却只有 85㎡
是独栋住宅的实验项目
由 Steven Holl 在 2014 年设计建造


▲Steven Holl 和他的团队
有别于那些盖在山野里的巨无霸豪宅
这栋小屋刻意的不去「占领」周围的自然景观
转而对内部空间进行「压缩」
这正是Steven Holl 的设计事务所
对建筑内在空间所做的探索
项目的主题就是「EX OF IN HOUSE」

▲环绕着小屋的森林有近170亩
Explorations of IN
「EX」除表示「探索」之外,也隐含「外观」之意
试图将建筑的内部空间和周围的环境融为一体

这是一栋由多边梯形和圆形组合而成的小屋
灵感来源于奇妙的几何体
内部空间由球体和正方体相交而成
视觉效果颇为有趣
内部形成独特的折叠跃层

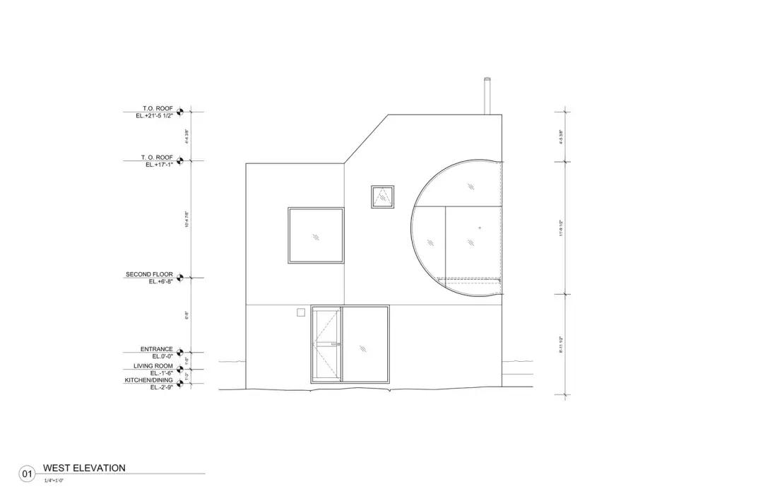
南面的窗户最有特点,又圆又大
冬天可以拥有充足的阳光
夏天盖上一层遮阳罩
能让屋里保持凉爽

步入 EX OF IN,能强烈的感受到
外立面和内部空间的反差

▲一层平面
住宅轴测草图和模型
展示出几何体相交、掏空、切割的过程
从而形成了或虚或实的 4 个球体结构



▲东立面

▲矩形与圆形交叉而成的入口
玄关是一块实木墙体挖出的半球空间
这栋屋子内部交错着或方或圆的几何结构
光影变换更是将时间流逝立体呈现


这张造型别致的实木茶几
为*东伊**丰雄(Toyo Ito)设计的「涟漪桌」
柠檬绿座椅为麦洛·鲍曼(Milo Baughman)
设计的 Scoop 椅


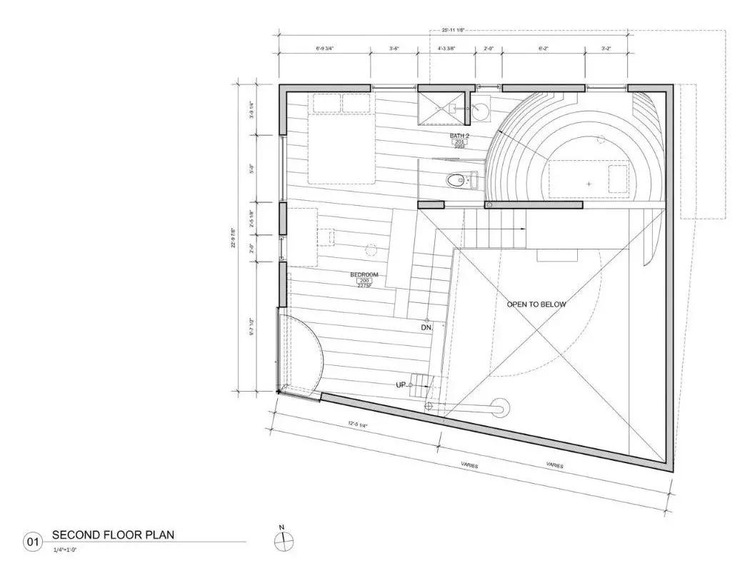
楼梯后是开放式的厨房和餐厅
给人一种「拾级而上」的上升感
旁边的门可通往屋外的池塘

从楼梯上去,来到一块方形台子上
虽然平面图上把这里标成卧室
虽然没有卧室,但可以住供 5 人居住

▲二层平面


▲西立面
阁楼的大圆角窗
由三个平面组合而成圆形切角
就好像一个圆球被房子截了一块

起居室比玄关低两级台阶
面向中央的开放厨房
这种布局为主人增加了空间的开阔性

厨房内有定制橱柜
入口处的用餐区与建筑的户外石板路
遥相呼应

卧房区域的一角
床搭在玄关顶部天花板的上方



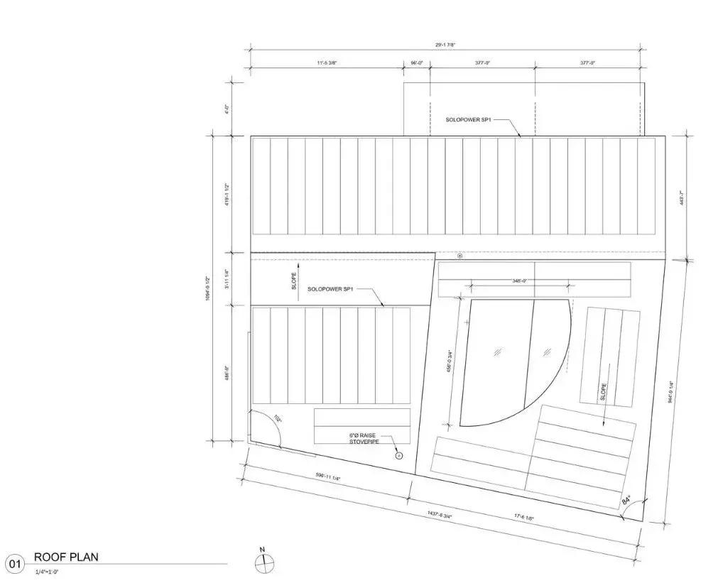
▲屋顶平面

▲南立面
整栋屋子几乎全用天然环保材料建造
木屋的窗户、门框和楼梯
是用当地天然桃花心木和桦木胶合板制成
原木色营造出安心、舒适的氛围
灯具就更特别,是 3D 打印成型的定制款
材质是玉米淀粉集聚乳酸(PLA)


这片区域日照时间长,阳光充足
建筑团队因此设计了太阳能储电系统
木屋的电力都来自地热和太阳能
以确保能源的自给自足
既环保又独立

设计师已然把几何体运用到了极致
北面的半圆形小窗
可以隐约瞥见屋内的陈设


▲北立面
莱茵贝克森林与哈德逊河相接
这里每天都能看到河谷日落的绮丽景色
因距离产生的光晕变化
吸引了学校里的学生过来写生

因地制宜的建材运用
独具匠心的结构颠覆了人们对空间的感知
令人不得不佩服设计师 Steven Holl
对建筑语言和绿色环保的全新探索

入夜,小屋灯火通明
与四周静谧的山林和谐相伴

关注一起设计公众号可查看小木屋视频噢
设计:Steven Holl Architects
地点:纽约
设计师:Steven Holl
面积:85㎡
照片:Paul Warchol
撰文:Lilith