
不知不觉炎热的夏天快要过去,一度暑出处暑时,秋风送爽已觉迟。U家工场也迎来了我们第一个旧房改造的案例来自摩玛城的52平的小屋

摩玛城位于南二环内东湖公园正对面,总户数1500余户,按照惯例,先来看看咱们这套案例的基本情况
户型:1室1厅1卫
项目地址:摩玛城
风格:现代简约
项目面积:52m²(实测套内面积)
设计师:李婷
整体投入:7.5w(不含拆改、卫浴柜、马桶、花洒)
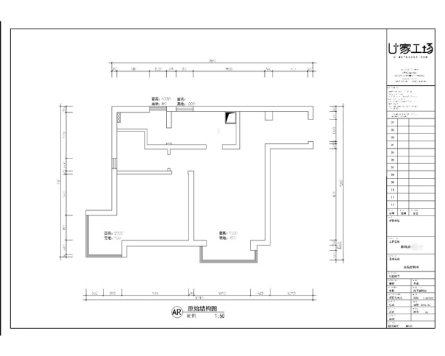
改造前
▼封闭式厨房,没有餐厅的位置,卫生间挤在生活阳台、厨房和卧室之间,狭小阴暗。

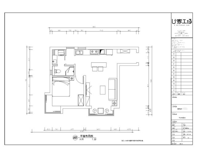
改造后
▼厨房墙被打掉作为开放式厨房,餐厅位置被划分出来;缩小了生活阳台,卫生间划分出干湿分区


户主是一位从日本留学归来的日语老师,是个话不太多的男生,偏爱清淡的饮食,喜欢现代简约的风格。接下来,就让小U带大家参观这个温馨的小家吧!
客厅
改造前:
▼老式的地板,没有任何其他的装饰,就算在高层采光也不算太好。

改造后:
▼地板被全部换成了莫兰迪色系-高级灰亚光砖,奠定了整屋品位。

改造前:
▼原屋配置了中央空调,所以吊顶并不便于做更多的处理。电视墙也没有做任何装饰。

改造后:
▼保留了原屋的中央空调,并在墙面上增添了更多有趣的装饰元素。搭配绿色植物让房子清新鲜活。

U家配置方案:
cimic地砖;大自然实木踢脚线;多乐士至尊家丽安无添加乳胶漆;天棚阴角线;鸿信天E木门;西门子插座等
厨房
改造前:
▼客厅与厨房之间的墙让厨房的采光变得很差

改造后:
▼户主本身的饮食习惯比较清淡,在考虑到最大可能的利用有限空间,我们直接将原墙敲掉,打造了一个开放式厨房

改造前:
▼因房屋使用较久,到处充满了油污的痕迹。

▼利用亚克力材质的黑色橱柜,在更好清洁的同时,与地面浅色砖造成强烈对比,整个厨房都亮了起来!

U家配置方案cimic墙地砖;百V橱柜;邦克水盆+龙头;潜水艇三角阀+地漏;欧普过道筒灯等。
过道
▼用踢脚线划分了厨房与客餐厅的区域,将过道与厨房也做了一个结合

▼斑马墙绘是整屋点睛之笔。整面墙体大胆的采用了纯黑色的黑板漆,再加上手绘的斑马,成为了整屋的亮点之一。

U家配置方案:
cimic瓷砖;大自然实木踢脚线;多乐士至尊家丽安无添加乳胶漆;黑板漆;欧普过道筒灯等。
卧室
▼为保留隐私,我们未进入卧室进行拍摄。卧室未进行太多的改造,保留了原本的结构,更换了新的地板与家具。

U家配置方案:德国原装进口Kronotex地板;大自然实木踢脚线;鸿信天E木门;飘窗石;带USB插座等。
卫生间
改造前:
▼卫生间夹在卧室与生活阳台之间,面积也十分狭小,没有干湿分区,只能通过一扇小窗户采光

改造后:
▼首先实现了干湿分区

改造前:
▼厨房外面的生活阳台因面积较小,使用率很低

改造后:
▼缩小生活阳台空间,改造出单独的淋浴房,每一个角落都被充分利用起来,并不显局促,也增加了采光


U家配置方案:cimic墙地砖;欧斯宝集成吊顶+风暖浴霸;九牧毛巾杆+浴巾架+双层网篮;潜水艇三角阀+地漏;鸿信天E木门等。

以上,就是来自U家工场的实拍案例,52m²小户型的神奇扩容魔术。U家工场也想为你送上:一次省心省钱的装修之旅,一个充满期待的温馨之家,快快来了解我们吧!

U家工场是一家是有梦想的装修公司,为年轻人提供一站式品质家装服务,坚守初心,只为品质家装。我们有专业的设计师团队、尽职尽责的小U顾问团队、70后工长团队和黑脸包青天的监理团队。现为大众点评成都互联网家装口碑No.1商家。
微信公众号:U家工场 (u-workshop) 预约方式:关注U家工场公众号“u-workshop”,关注后,点击右下角“预约U家”进行在线预约。加U家工场客服小U(微信号:ujia01)
服务范围:U家工场的服务范围覆盖整个成都市,包括双流、温江、华阳等;一周七天不打烊! U家工场地址:成都环球中心西区W2-1938