10年以前,也许我们有一支笔+CAD就可以做设计,10年后,各种三维建模软件,VR/AR技术的飞速发展,大数据、云计算的不断成熟,软件,或许将变成未来设计的核心组成部分。
现阶段,做设计用的的软件有哪儿些?
SU,Rhino,AI,PS,ID,CAD....

12款软件交互体系,
再难的设计图也难不倒你!

- 01 -CAD

说到CAD,想必很多人都是相当熟悉的,不仅仅是建筑设计,工业设计啊,室内设计啊,机电安装啊,工程造价啊一大堆专业都会用到。
建筑师大部分的工作都靠CAD来完成,相信我,在很长的一段时间内你都无法摆脱CAD。
CAD很重要,一些常用的快捷,一定要记牢!一定要记牢!一定要记牢!还有个叫天正建筑for CAD的软件,画图也是相当的方便。
- 02 -天正建筑

CAD的好搭档——天正建筑想必大家也都在用。天正建筑利用AutoCAD图形平台开发的,成为建筑CAD的首选软件,同时天正建筑模型已经成为天正日照、节能、给排水、暖通、电气等系列软件的数据来源,很多三维渲染图也基于天正三维模型制作而成。
天正建筑T20(别称TArchT20)是国内天正集团自主研发对的一款基于Autocad图形平台的全新一代建筑施工图CAD设计软件。它的优势在于它专门为用户开发了可自定义的对象来表示建筑专业构件。
- 03 -SketchUp

说到建筑设计用的软件,不得不提起的一定是SU,又叫草图大师,这可能是目前国内用的最多的建模软件了,也是同学们最热爱的软件。和CAD、PS两个好基友统称为“设计院三剑客”。
SU简洁的页面,傻瓜式操作,对于方案阶段来说基本是够用的了。绝对的推敲方案小能手!!! 当然也有大神把SU用的出神入化。
- 04 -Vray

vray通常结合建模软件使用,如vray for su、vray for 3DMax等。
vray的特点就是中规中矩,能达到很逼真的效果;vray缺陷是,渲染不可预览,只有渲染完了才知道效果。另外一点,就是vray渲染对硬件的要求比较高,速度比较慢。但是vray可以通过参数控制,常用效果还是很好的。
- 05 -Photoshop

Photoshop在图片后期处理领域,是神一样的存在,所向披靡!建筑设计,平面设计,UI设计等等领域,只要你要P图都会用到。
建筑设计中,平面图、分析图、效果图,哪一个也离不开它。
- 06 -Lumion

Lumion渲染与动画——设计师直接在自己的电脑上创建模拟现实环境,Lumion用更快速的速度,更高的质量大幅降低了制作时间,并且可以用视频*放播**方式演示展现作品惊人的建筑可视化效果。
大家在汇报方案的时候,可以提前用Lumion做一个建筑展示视频,会更有利于大家去了解你的方案。

- 07 -Rhino

Rhino是一款专业的曲线建模的软件,最初用于工业产品设计,比如汽车有很多流线的造型。现在更多的是用在参数化设计中。对于做曲线方案来说,这绝对比SU省心了不止一点点。
犀牛之所以牛逼,更在于它的一款神器——Grasshoper,我简称GH,GH是现在用的最多的一个参数化插件。

- 08 -AI

AI被广泛用在涂鸦、广告、插界。首先,AI的图都是矢量图,放大多少倍都不会失真!而且,AI的基本画图单位是“路径”,你可以理解为“线”。
我们的分析图里往往有各种实线、曲线、点画线,AI非常适合拿来画分析图,各种基地分析、建筑分析……绝对好东西!
- 09 -ID

ID是一款专业排版领域的设计软件,你看到的杂志、广告设计、报纸都是用ID排版的。
ID有个很大的优点——可以批量排版呀!!!
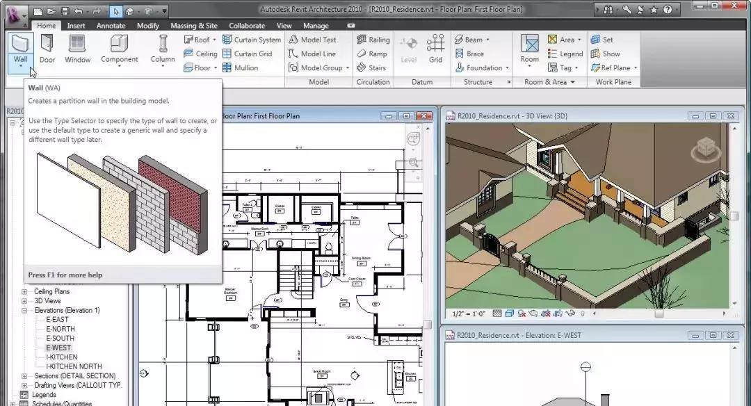
- 10 -Revit

Revit是Autodesk公司一套系列软件的名称,是为建筑信息模型(BIM)构建的,可帮助建筑设计师设计、建造和维护质量更好、能效更高的建筑。
AutodeskRevit提供支持建筑设计、MEP工程设计和结构工程的工具。
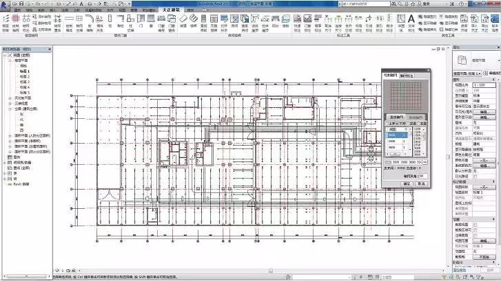
- 11 -TR

天正建筑TR软件是由北京天正软件股份有限公司独立研发的,软件利用Revit 2015-Revit 2017图形平台及其操作概念开发,具有软件具有楼层轴网、墙体门窗、房间楼梯、标注工具、其他工具、协同开洞、建筑防火等7大功能模块。
TR天正建筑软件整合了BIM建模软件的主要功能,以模块划分为七个选项板呈现在界面上,使用非常方便。
- 12 -Depthmap

Depthmap 作为空间句法的专用分析软件, 正在空间结构分析领域得到越来越广泛的应用。
作为一个单独的软件平台, 其作用是分析空间的网络结构。Depthm ap 的研究范围不仅仅局限于建筑内部及建筑之间的空间, 它可以扩大到整个城市甚至国家的空间范围。
除了这些你还知道什么设计软件?。。。。。。
文章来源于网络