今天,何贤纪念医院旧建筑改造工程施工总承包进行招标。
本次项目位于广州市番禺区市桥街清河东路2号院本部。

项目位置图

区位图
本项目计划 新建建筑面积9592.05平方米 , 改造建筑面积15223.08平方米 ,其中2#医技楼结构体系为7层框架结构,结构材料为钢结构,钢材强度为Q355B,屋面高度为25.30米,楼层钢梁最大跨度为8米。
主要工程包括:新建医技楼、连廊和中庭,改造住院楼,住院副楼,以及旧建筑局部加固、外立面改造、室外改造、公用配套工程等(具体数据以施工图纸为准)。

最高投标限价为: 79024123.07元, 综合单价最高限价详见招标工程量清单;其中措施费合计为5256125.1元(绿色施工安全防护措施费为3901871.38元;其他项目费用为968089.65元。)
施工总期:646日历天内完工 ,完工是指完成图纸施工内容,以发包人初验时间为准。为满足医院不停业的需要,工程须考虑分段施工,其中新建2#医技楼工程 要求357日历天内完工,旧建筑装修加固改造工程要求289日历天内完工。

总平面图
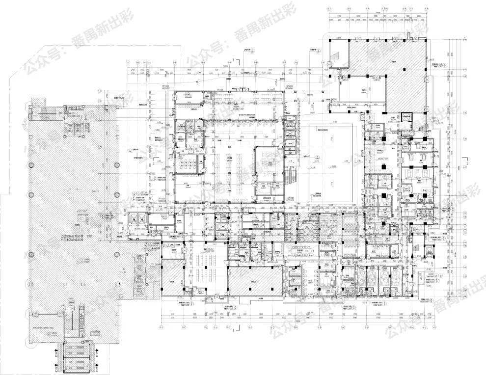
首层新建医技楼 总建筑面积:9561.11平方米 ,新建医技楼基底面积:1254.63平方米;本层新建医技楼建筑面积:1368.40平方米,新建医技楼总计容建筑面积:9202.47平方米;本层新建医技楼计容建筑面积:1368.40平方米,门诊楼总改造建筑面积:15091.05平方米,门诊楼总加建建筑面积:1026.14平方米,本层门诊楼改造建筑面积:2170.84平方米,本层门诊楼加建建筑面积:350.43平方米。

首层平面图

门诊大堂效果图
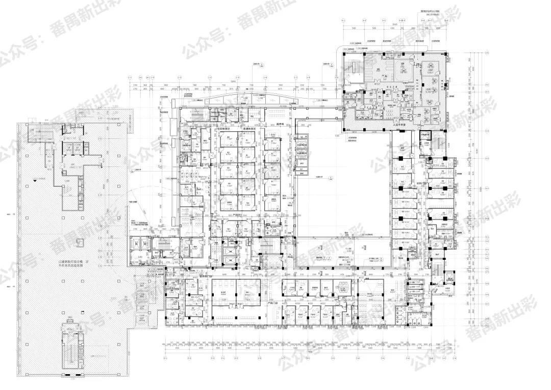
第二层新建医技楼 建筑面积:1254.48平方米 ,本层新建医技楼计容建筑面积:1254.48平方米,本层门诊楼改造建筑面积:2183.80平方米,本层门诊楼加建建筑面积:271.99平方米。

二层平面图
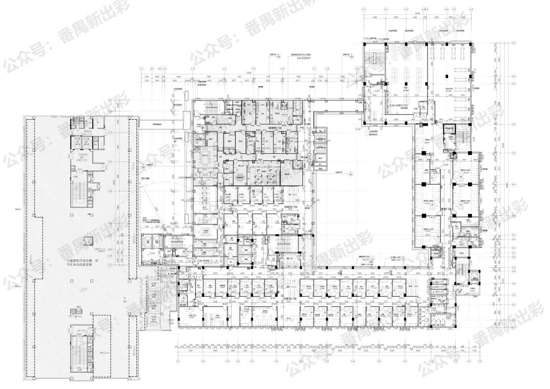
第三、四和五层新建医技楼 建筑面积:1240.64平方米 ,本层新建医技楼计容建筑面积:1240.64平方米,本层门诊楼改造建筑面积:2183.80平方米,本层门诊楼加建建筑面积:62.61平方米。

三层平面图

四层平面图

五层平面图

候诊区效果图
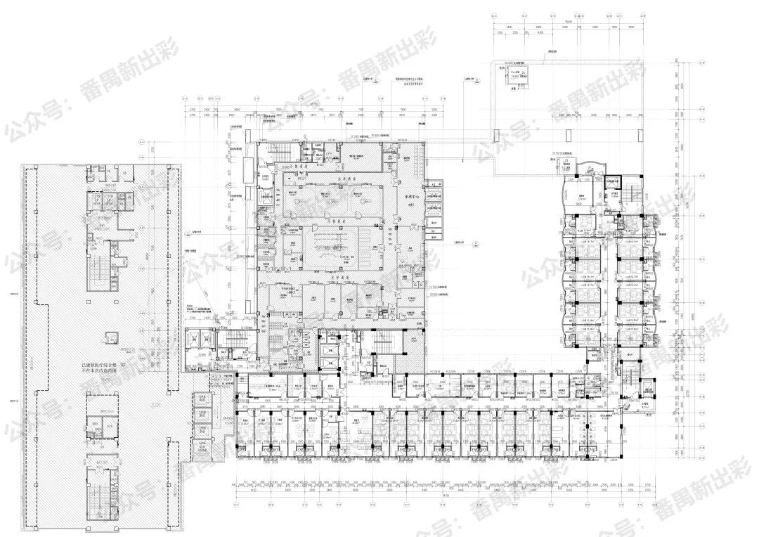
第六层新建医技楼 建筑面积:1204.09平方米 ,本层新建医技楼计容建筑面积:1204.09平方米;本层门诊楼改造建筑面积:1664.85平方米,本层门诊楼加建建筑面积:87.10平方米。

六层平面图
第七层新建医技楼 建筑面积:1204.09平方米 ,本层新建医技楼计容建筑面积:1204.09平方米,本层门诊楼改造建筑面积:1664.85平方米,本层门诊楼加建建筑面积:62.61平方米。

七层平面图
何贤纪念医院是一家广东省广州市 番禺区三级医院 。由于何贤纪念医院位于番禺中心城区,用地面积紧张。待项目建设完成后,将进一步增强全区医疗卫生服务能力,提升医院综合实力,改善患者就医环境,极大提高患者的就医体验。
据了解,该旧建筑改造项目是 2021年番禺区重点项目 ,就在今年7月,何贤纪念医院旧建筑改造项目动工仪式就已经在该院门诊施工现场举行。

值得一提的是,本次项目进行的同时还会对医院旧建筑外立面全面翻新改造,室内功能装修,消防系统改造等, 力争2023年投入使用 。
项目建成后主要用于门急诊及医技科室、门诊手术室及内镜中心、儿科病区、肿瘤病区及感染病区等科室业务用房。旧改项目施工期间,医院正常开诊。门诊入口不变,位于旧住院部;急诊入口为西1门,位于新大楼旁,可按院内标识指引前行。

鸟瞰效果图

夜景效果图