敦煌作为古丝绸之路上的西部重镇,一直是东西方文化交流的重要窗口和平台,众多自然和历史文化遗迹一直吸引着全世界的人们。近年来,在“一带一路”国家战略发展和西部建设的大背景下,敦煌在丝绸之路经济带上扮演着越来越重要的角色。敦煌市重点打造了一批代表性文化建筑,为游客和市民提供一系列的文化交流的场所,宣传丝路文化。在这场文化复兴浪潮中,中国建筑设计研究院积极参与敦煌市的城市建设活动,协助宣传、复兴丝路文化。其中,建成于2018年的敦煌市公共文化综合服务中心发挥了重要的作用。
文/吴斌
中国建筑设计研究院
中旭建筑设计有限责任公司 副总经理、执行总建筑师

▲ 从文化馆看鸣沙山
敦煌市公共文化综合服务中心(以下简称“文化中心”)基地位于市区南部,再往南几公里即到鸣沙山月牙泉。基地呈不规则四边形,北窄南宽,东邻敦月公路,交通便利,南北为农家林地,挺立着一排排非常精神的穿天杨和大量果树;西侧有一条灌溉渠,是敦煌农业的生命线,渠边绿树成荫;再往西就是成片的绿油油的葡萄园。基地内如果登高,南可欣赏鸣沙山,北可俯瞰市区。

▲ 场地状态
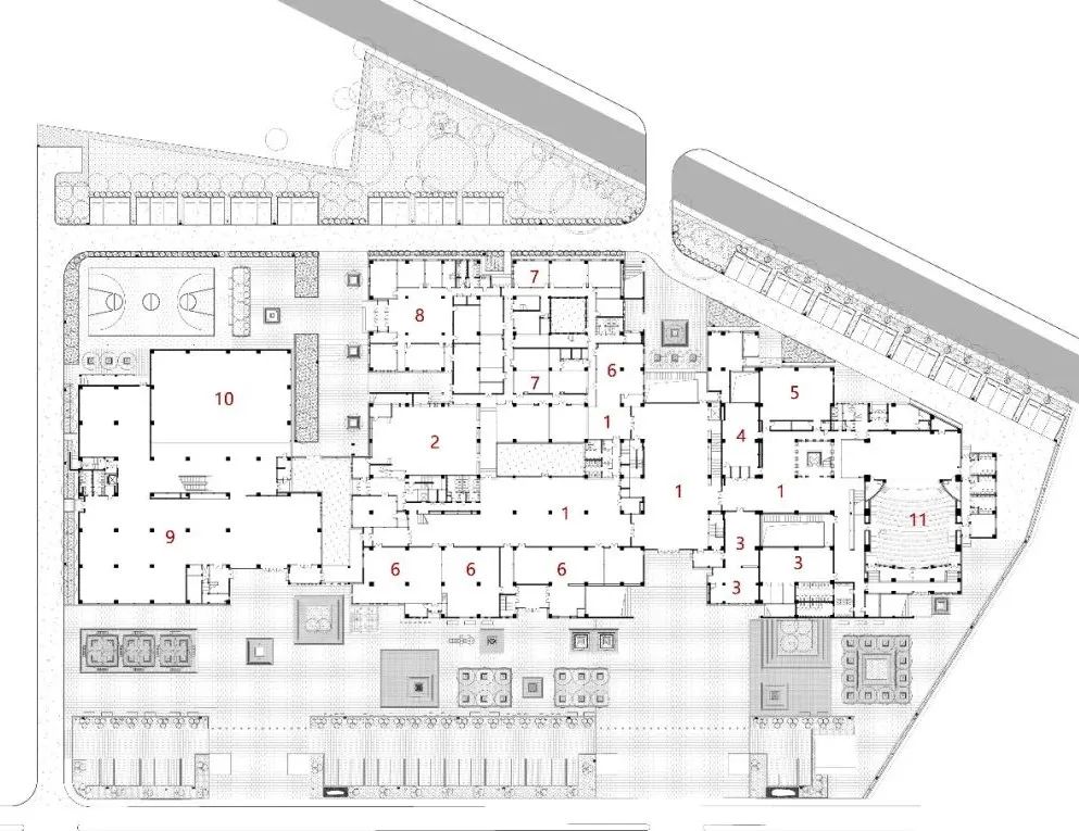
文化中心由图书馆、文化馆、美术馆、档案馆、非遗中心及城市规划展览馆等组成,总建筑面积2万平方米左右。本项目考虑的核心问题是如何以一个开放的姿态,将几个馆的功能有效地组织并整合起来,既能满足当地老百姓的日常使用,又能结合每年的文博会举办各种文化活动,成为敦煌对外进行文化交流的重要场所。而这样的一组建筑还应当恰当表达敦煌的自然和地域文化特色。文化性的表达是这个项目解题的关键。于是我们提出了基本策略:以小尺度的体块,在统一模数的控制下,将不同功能整合到一起,形成一组掩映于绿树之中的聚落形态。小尺度也适合敦煌这样一个小镇的尺度。

▲ 总平面图

▲ 从基地西北侧水渠边看建筑
在东侧留出城市广场,为大型文化活动留出场地,并结合几组小型绿化供人们休息;在基地中心的位置设置公共大厅,作为整个建筑的“客厅”,提供接待、咨询等综合服务功能。楼上是美术馆及公共展厅,往北通往文化馆和小剧场,往南通往图书馆和档案馆。

▲ 首层平面图
1 门厅 2 报告厅 3 活动室 4 多媒体教室 5 排练厅
6 阅览室 7 档案区 8 办公区 9 展厅
10 总规沙盘 11 多功能小剧场

▲ 主入口沿街立面

▲ 主入口
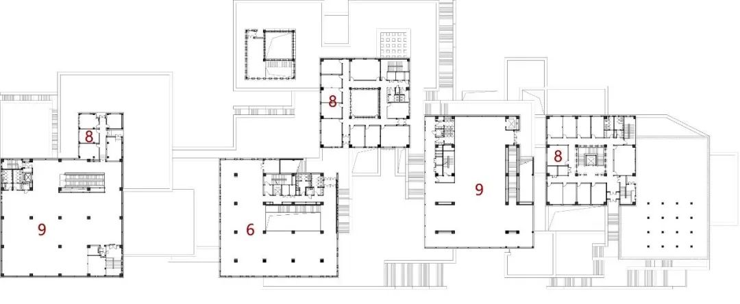
各馆门厅旁边设置院落,让自然光洒进室内。各馆主体呈方形体量,中间再掏出内部中庭,于是形成主厅-门厅-院子-中庭-功能房间的空间序列,这是水平方向的一条空间线索。

▲ 剖面图
1 门厅 2 报告厅 3 活动室 4 多媒体教室 5 排练厅
6 阅览室 8 办公区 9 展厅 13 中庭 14 库房

▲ 图书馆和城市规划馆之间的院落
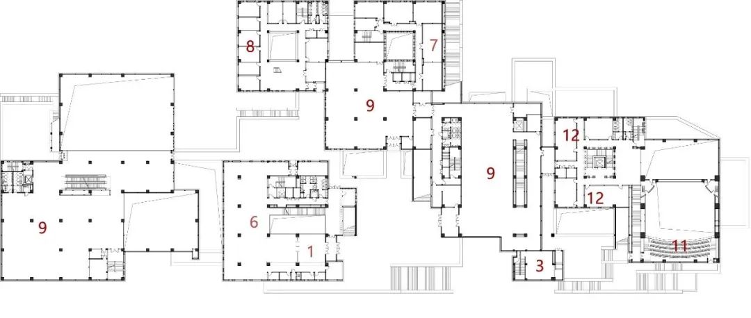
另外一条空间线索则是往上引导,即通过台阶到达不同高度的屋顶平台。在东侧主入口两侧设置大型台阶将人们往南或往北引导到二层开放平台,北侧平台作为文化馆的入口和小剧场二层的疏散口,南侧平台作为图书馆、档案馆的入口,同时也连接着办公区域和城市规划展览馆。


▲ 三层平面图
1 门厅 3 活动室 6 阅览室 7 档案区 8 办公区 9 展厅
11 多功能小剧场 12 培训教室

▲ 各体块间通往屋顶平台的步道

▲ 屋顶的室外展场

▲ 屋顶平台及人行流线
在高高低低的体块、错综复杂的平台和大大小小的院落组合中,建筑的功能、流线、形态和空间形成统一。丰富的形体让外立面的处理变得相对比较放松,根据内部功能的需要开窗。图书馆开大窗,档案馆开小窗,剧场就是一个封闭的大盒子,在太阳辐射很强的沙漠气候中有利于节能。大小方窗的组合方式化解了单一体块的生硬感,同时也强调出立面中某种模数关系,如同当地葡萄晾房砖块之间镂空的方洞,产生的阴影让建筑变得更加立体。

▲ 立面开洞的韵律

▲ 剖面图
立面材料用是从云南运过来但非常便宜的土黄色砂岩,在周围的绿树的衬托下,表达出戈壁和绿洲的自然色彩搭配。砂岩表面有天然肌理和色差,如同点彩画一样,在大实大虚的墙面上形成丰富的表情,再加上毛面和纹理,在光线下产生犹如砂砾般的质感,生动而自然。

▲ 结合内部功能的不同立面开窗效果

▲ 立面材料细部
于是,这样一组台地式的土黄色砂岩建筑,在光影的刻画下,以高低错落的“聚落”形态,形成一个尺度亲切、层次丰富、开放立体的公共文化活动空间,如同茫茫戈壁中矗立的烽燧,如同落日余晖中金色的玉门关,如同烈日下沧桑的洞窟崖壁,沐浴并雕刻着时光。

▲ 小剧场夜景

▲ 图书馆中庭
项目地点 甘肃省敦煌市
建筑面积 19936m2
建成时间 2018年5月
主创建筑师 崔愷 吴斌
建筑专业 辛钰 崔剑 郑虎 董静文 白方兴 贺超 陈笛 张雨晴
结构专业 魏丽红 李世俊 韩萌 魏丕哲
给排水专业 裴黎君 田会 潘佳林
设备专业 赵琪 刘筱屏 孙梅 彭艺媛
电气专业 马宁 张翯 刘畅 杜皓
总图专业 王雅萍
景观专业 李力 王强 赵珩 王琼
室内设计 深圳洪涛集团股份有限公司设计院HUD 设计组
景观合作 北京筑邦园林景观工程有限公司
建筑摄影 张广源