设计机构:JORYA玖雅
设计师:莫岚
设计面积:60㎡
房屋位置:西罗园
户型:两室一厅
装修花费:35w(硬装+主材+软装)

营造家的过程也是实现梦想的过程,两位屋主带着对Dream House的期盼,找到了我们。
男屋主从事游戏行业,从286时代就开始玩电脑游戏、收集游戏手办,在这个过程中,遇到了很多反对的声音,“游戏又不能当饭吃”是听得最多的一句。幸运的是,他坚定的跟随内心深处的热爱,一直坚持了下来。并且遇到了非常支持他的太太,还有了一对冰雪聪明的龙凤胎宝宝。
他们梦想中的家是:
- 极简风+科技范儿,不要太多的颜色和装饰。
- 有一间独立书房,展示手办的同时不被顽皮的小朋友发现。
- 厨房功能齐备,喜欢烘焙的女屋主可以一展身手。
- 通过精炼有效的 收纳系统,保持空间的宽裕和整洁。
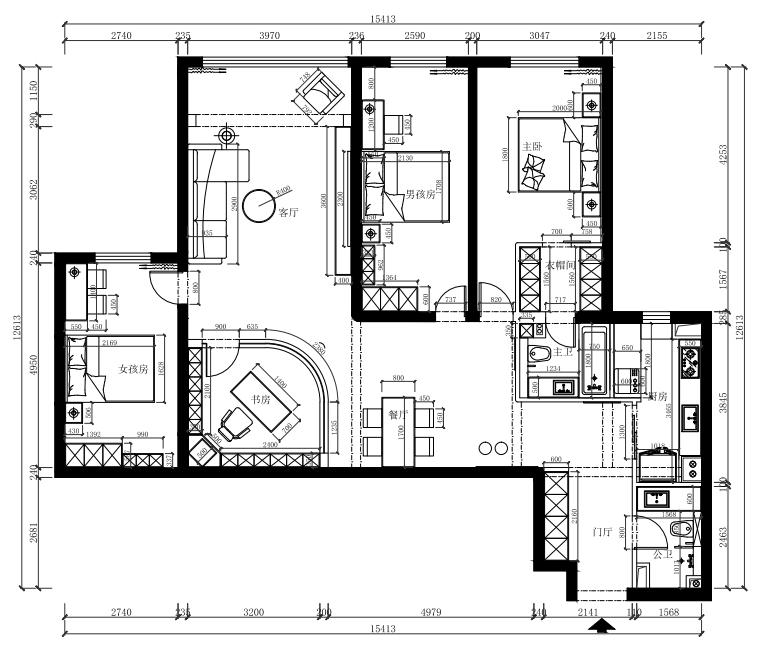
户型图

原始户型图
户型分析:
- 户型朝西,窗前有开阔的风景,但玄关和餐厅区域较暗,没有自然光。
- 只有一个面积较小的卫生间,满足不了4口人的使用需求。
- 厨房狭长,放不下屋主规划的电器

墙体拆改图
空间改造:
- 设计师改变了女孩房开门的位置,将原本狭长的客厅分成了2个部分,靠窗的区域是客厅,靠里的区域作为独立书房和手办展示区。
- 主卫,玄关主卫更改了开门方向,并且扩充了面积,使用起来更加舒适。
- 厨房,厨房和卫生间之间的鸡肋空间被设计师利用起来,改造成了高效的U型格局厨房,屋主规划的电器都能放下。
- 主卧卫生间,设计师将之前厨房的部分面积纳入主卧,改造成了主卧卫生间。

最终平面图

收纳分布图
两位屋主喜欢清爽开阔的空间,希望收纳系统是简洁而高效的,这与设计师的理念不谋而合。
上图标出的橙色部分是收纳系统分布,占到了全屋面积的17.2%,但从视觉上并不会觉得到处是柜子。
本案完成于2019年,摄影师时隔1年多去家里拍摄,还是保持清爽如初。这当然归功于设计师在空间上的特殊处理,和屋主的提前规划,我们跟着实景图一起来看看,他们是怎么做的吧~
实景图
玄关

一打开门,就能看到玄关尽头的挂着女屋主创作的丙烯画,这一块没有自然光,设计师用线性灯指引照明,极具科技感,有种走进时光隧道的感觉。
玄关的左边是一组长达2.16米的通顶收纳柜,内嵌在新建的薄墙中,与墙融为了一体。

这组玄关柜除了常规的鞋柜,还有一组可以360°旋转的鞋架,选鞋时一目了然,拿取方便。14层的双面鞋架可以容纳42双以上的鞋子,相当于4口之家人均可放10双以上的鞋子,功能非常强大。
注意:松下的这款旋转鞋架分为3种尺寸,都需要预留足够的空间才能安装,6层鞋架的柜体内尺寸高1000mm*宽780mm*深375mm,12层鞋架柜柜体内尺寸高1595mm*宽780mm*深375mm,14层鞋架柜体内尺寸高1680mm*宽780*深375。
餐厅

从玄关往里走是餐厅区域,设计师采用灯带间接照明的手法,再配合筒灯和餐桌主灯,让整个空间的光线明亮柔和而富有层次。
简洁的大理石餐桌,和透明悬臂餐椅搭配在一起,轻盈又有高级感。
餐厅的大白墙空着未免乏味,喜欢旅行的屋主夫妻,挑选了一组可以看到不同时区的世界地图挂钟来装点它。

可爱的屋型黑板墙,搭配上麻麻为小朋友创作的萌萌小插画,简直太有爱了~

Molly&Dimoo:“看我们画的冰淇淋可爱吗?”
厨房

厨房朝西,下午时分阳光会透过蜂巢帘洒进来,柔和又充满韵律之美。
墙面是爵士白大理石砖,为黑白两色的厨房带来灵动的气息。科技感十足的银色轨道插座取代了常规的墙面插座,使用起来很方便,哪里需要就滑到哪里。

改造后的U型厨房,收纳满分,不只放下了四门冰箱、洗碗机、独立的烤箱、蒸箱,连干衣机和洗衣机也能收纳其中。

所有的电器隐身入墙,只留下玻璃面板整齐的镶嵌在定制柜上,简洁美观。

女屋主喜欢收集漂亮餐具,这套彩虹色的Le Creuset 童趣十足,仿佛来自童话世界,可可爱爱的造型,让人一看就心情大好。
坐在高冷的大理石餐桌旁,用这些圆乎乎的彩色碗盘们享用美食,真有点反差萌呢~
独立书房

男屋主从很小的时候就梦想有一间书房,可以安置他的“小伙伴们”,装修前已经为他们筹划好了独立房间,但这个房间到底要采用怎样的形式,还没有头绪。跟设计师提起这个需求时,设计师给出了雾化玻璃的方案,屋主非常惊喜,像是打开了新世界的大门(原话)。
雾化玻璃也叫智能调光玻璃,原理就是在两层玻璃之间加一层液晶分子膜,打开电源时,液晶分子整齐排列呈现透明状,关闭电源时分子紊乱呈现雾状,能很好的保护隐私,所以现在孩子们还完全不知道这个房间的存在,“小哥哥小姐姐们”在里面很安全。
整块雾化玻璃造价3W多,价格比较高的原因除了材料特殊,还有为了不让玻璃的边角磕碰到小朋友所做的弧形定制。安装雾化玻璃前需要预留好电线,顶面梁做开槽加固处理。

小朋友们休息的时候,男屋主会关闭雾化的效果,透过办公室玻璃看着城市的点点灯光,身边伴着心爱的手办们,有一种梦想照进现实的踏实感。

为手办们量身定做的白色陈列柜,用玻璃作为门扇,每一格都有灯光,展示着屋主的心头爱。

手办一部分来自 男屋主玩过的游戏和小时候看过的动漫、用过的电子词典、PSP等老物件。

还有一部分是疫情前他和太太去日本秋叶原买回来的,他们每年会去1~2次,每次都是小心翼翼的人力带回,生怕手办的细节在运输过程中被磕坏。

看着一直陪伴自己成长的“小伙伴们”,总是会觉得莫名的心安。
客厅

舒适的“L”型沙发搭配柔软的水墨色地毯,像一个大大的温暖怀抱,能融化一整天的疲惫。
设计师用纤细的圆形黑色茶几搭配它,与电视柜相呼应,让整个空间张弛有度。

酷感的黑色电视柜搭配硬屏,视觉上简洁优雅,电视柜里搭载了可伸缩云台,可以通过电流感应和投影仪实现联动,只要打开投影仪,云台就会自动调整到位,让投影在硬屏上的画面分毫不差。
这样一个看似简单的idea,是屋主摸索良久得来的解决方案,激光电视常规的安装距离需要距墙15~29厘米,所以要么买一个进深48~62厘米的电视柜,要么就是买正常的电视柜,但是不能靠墙,这两种方案都严重影响客厅的颜值,最后找到可伸缩云台,才解决了这个问题。
激光投影仪可以连Switch、X-box等各种体感游戏,配合100寸的抗光硬屏,能让画面达到相当逼真的程度,玩起大型游戏来身临其境超级爽。

墙上的黑白摄影作品是男屋主在伦敦旅游时拍下的,用在这里非常贴合整个家的感觉。

透过客厅的窗,经常能看到很美的城市晚霞,女屋主将它们画下来,记录心中片刻的感触。
主卧

卧室留白,淡淡灰色的布艺床柔软舒适,白色悬空的床头柜,简洁克制。


床头的背板,设计师暗藏了暖色灯带,临睡前打开,卧室瞬间变成了五星级酒店,温馨又高级。

高而窄的黑色玻璃门提升空间的精致度,它的后面藏着一个超级实用的衣帽间。
主卧衣帽间

衣帽间的左边是收纳抽屉和挂衣区,收纳抽屉早在定制前就已经看好,设计师根据屋主提供的尺寸来决定衣柜层板的高度,这样做不仅可以做到严丝合缝,而且降低了定制家具的造价,还减少了板材的甲醛释放量。
女屋主笑盈盈的说:“最重要的是使用方便,以前换季收拾衣服至少要花1~2个小时,现在只需要更换相应的抽屉,10分钟就能搞定。”

右侧的挂衣区也分得细致,2种高度,根据屋主衣服的长度设计。
卫生间

合影

从左至右:助理、设计师、屋主夫妇、史同文工长
这个屋主参与度极高的家,忠实的还原了屋主想要的感觉,设计师一路陪伴,顺势而为,将屋主想得到想不到的需求,一一深化落地,最终得来了这张完美的毕业照。
编辑:Alice
本期案例介绍完毕
感谢观看~
带尺寸平面布局图:

- End -
~版权归作者JORYA玖雅所有
~如需转载本文请联系“JORYA玖雅”账号