“水绕陂田竹绕篱,榆钱落尽槿花稀”,有没有人和我一样憧憬过这样的生活场景呢?
身边做房屋设计的朋友告诉我,农村有地一定要建一栋自己的别墅。一来周末度假有了好去处,二来还能给父母更好的居住环境。于是他给我提供了6款“好评如潮”的二层别墅图纸设计,大家看看哪款更适合自己。
第1款
11.7×13.2m,精美八角窗+金顶对称设计,主体造价23.5w。

这款户型本人是第一眼就看中了,占地154.44㎡,外观设计上简单用雕花做装饰,门厅上方做阳台增加采光面。建筑布局总共6室3厅3卫
一楼:玄关、客厅、餐厅、厨房、老人房、客房、卫生间、储藏间;

二楼:小孩房*2、卧室、客房、茶厅、卫生间*2、阳台。

第2款
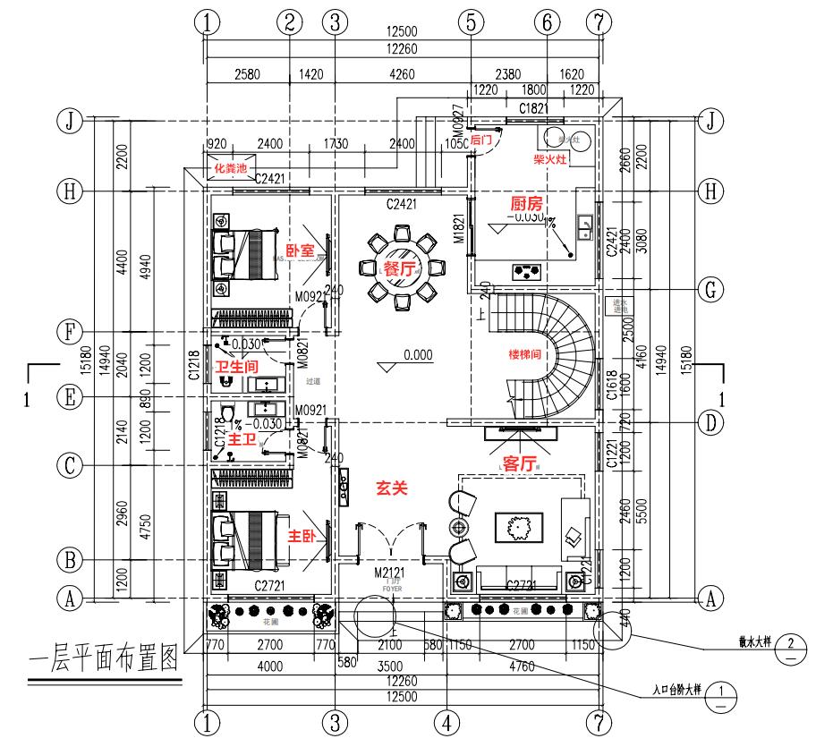
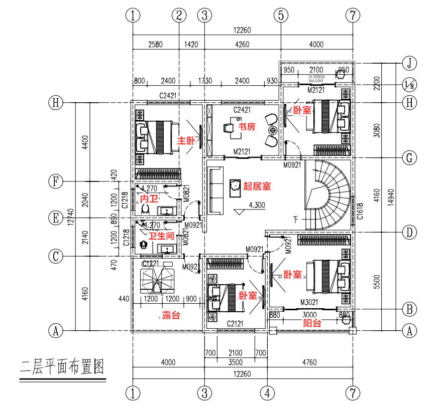
12.2×10.2m,温馨小院+仿古栏杆,主体造价19.8万。

精致的欧式大铁门、桐木色的栏杆,这样的“混合”搭配居然也能好看。占地124.44㎡,是大部分家庭的宅基地大小。建筑布局总共3室3厅2卫
一楼:入户玄关、客厅、餐厅、厨房、卧室、储藏间、衣帽间、卫生间;

二楼:南面卧室*2、卫生间、书房、棋牌桌、起居室、阳台。

第3款
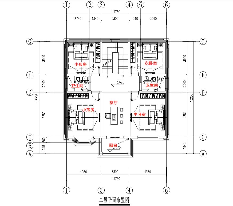
12.5×15.1m,自然田园风+大落地窗,主体造价28.6万。

如果你的宅基地周边有大山、有河流还有稻田,那么这款别墅的风格更能于自然美景融为一体。占地188.75㎡,建筑总共5室3厅4卫
一楼:超大堂屋、餐厅、厨房、主卧(含内卫)、次卧、旋转楼梯、卫生间;

二楼:主卧、次卧*3、书房、起居室、阳台、露台。

第4款
12.8×9.8m,实用生活长廊+高窗设计,主体造价20万。

觉得第3款略微“高调”?看看这款怎么样。占地125.44㎡,一层外墙铺贴冷色调文化石,二层则喷涂白色真石漆做提亮,典雅大气。建筑布局总共5室2厅5卫
一楼:门厅走廊、玄关、南面主卧、西面次卧、客厅+餐厅一体、厨房、卫生间;

二楼:套卧(衣帽间+内卫)、主卧(含内卫)、客卧、卫生间、起居室、阳台。

第5款
12×10.9m,造型简约+多卧室,主体造价20.9万。

此款外观也深得我心,简单大气,简约时尚。但因为是别人家的成品图纸,室内布局有点“糟心”。弊端在于室内没有测试,必须去室外,这是非常不方便的。当然如果外观适合,室内布局可以根据自己的需求做一定的调整。占地130.8㎡,建筑布局总共7室2厅
一楼:卧室*2、备用间、客厅;

二楼:卧室*4、客厅、阳台。

第6款
11.5×11m,实用堂屋+养老首选,主体造价18.9万。

最后一款据说受到了众多“好评”,占地126.5㎡,内含5室2厅,属于标准二层户型。大落地窗、生活阳台、露台都能够有效使用。并且普通家庭也能负担得起这样的造价,农村建一栋面子里子都有了。
一楼:堂屋、客厅、餐厅、厨房、卧室*2、卫生间、楼梯;

二楼:主卧(内卫+衣帽间)、次卧*2、卫生间、露台。

更多农村自建房设计,可以进主页留下您的建房面积!小编设计的总有一套适合你~
(感谢关注)