电气篇
参考文本:1.《建筑 电气工程施工质量验收 规范》GB 50303-2002(后简称: 电气规范 )2.《建筑 安装工程施工图 集》3 电气工程(黑白图片出处) 3.公司机电部培训资料
柜、屏、台、箱、盘的金属框架及基础型钢的 接地
电气规范6.1.1:柜、屏、台、箱、盘的金属框架及基础型钢必须接地(PE)或 接零 (PEN)可靠;装有电器的可开门,门和框架的接地端子间应用裸编织铜线连接,且有标识。


柜、屏、台、箱、盘安装要求

配电室挡鼠板及金属门的接地
电气规范 25.2.6 配电间隔和静止补偿装置的栅栏门及变配电室金属门铰链处的接地连接,应采用纺织铜线。

高低压开关柜基础型钢安装
电气图集 DQ11-2:基础型钢安装后,其顶部宜高出抹平地面10mm;手车式成套柜按产品技术要求执行。基础型钢应有明显的可靠接地。

暗装配电箱安装要求
电气规范 6.1.9/6.2.8 照明配电箱(盘)安装应符合下列规定:1.箱(盘)内配线整齐,无绞接现象。导线连接紧密,不伤芯线,不断股。垫圈下螺丝两侧压的导线截面积相同,同一端子上端子上导线连接不多于2根,防松垫圈等零件齐全;2.照明箱(盘)内,分别设置零线(N)和保护地线(PE线)汇流排,零线和保护地线经汇流排配出。3.位置正确,部件齐全,箱体开孔与导管管径适配,暗装配电箱箱盖紧贴墙面,箱(盘)涂层完整;4.箱(盘)内接线整齐,回路编号齐全,标识正确;5.箱(盘)不采用可燃材料制作;

配电箱相邻安装要求
配电箱安装端正、相邻两个配电箱安装高度一致,排列整齐美观

照明配电箱(盘)安装的规定
电气规范6.1.9 照明配电箱(盘)安装应符合下列规定:1 箱(盘)内配线整齐,无绞接现象。导线连接紧密,不伤芯线,不断股;2 箱(盘)内开关动作灵活可靠,带有 漏电保护 的回路,漏电保护装置动作 电流 不大于30mA,动作时间不大于0.1s。3 照明箱(盘)内,分别设置零线(N)和保护地线(PE线)汇流排,零线和保护地线经汇流排配出。

芯线与电器设备的连接
电气规范18.2.1 芯线与电器设备的连接应符合下列规定: 1 截面积在10 mm2及以下的单股铜芯线和单股铝芯线直接与设备、器具的端子连接;2 截面积在2.5 mm2及以下的多股铜芯线拧紧搪锡或接续端子后与设备、器具的端子连接; 3 截面积大于2.5 mm2的多股铜芯线,除设备自带插接式端子外,接续端子后与设备或器具的端子连接;多股铜芯线与插接式端子连接前,端部拧紧搪锡;
金属桥架接地要求
电气规范 12.1.1 金属 电缆桥架 和引入或引出的金属电缆导管必须接地(PE)或接零(PEN)可靠,且必须符合下列规定:1.金属电缆桥架及其支架全长应不少于2处与接地(PE)或接零(PEN)干线相连接;2.非镀锌电缆桥架间连接板的两端跨接铜芯地线,接地线最小允许截面积不小于4mm2;3.镀锌电缆桥架间连接板的两端不跨接接地线,但连接板两端不少于2个有防松螺帽或防松垫圈的连接固定螺栓。

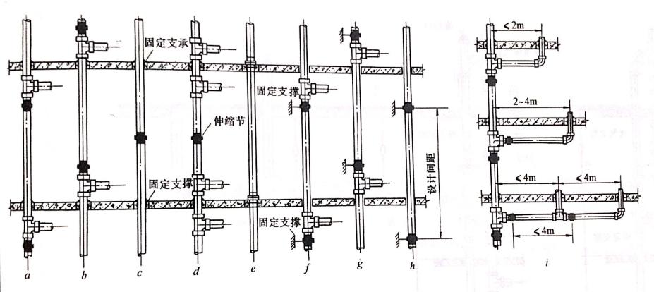
电缆桥架伸缩节设置及支架间距要求?
电气规范 12.2.1 电缆桥架安装 应符合下列规定:1.直线段钢制电缆架长度超过30m、铝合金或玻璃钢制电缆桥架长度超过15mm 设有伸缩节;电缆桥架跨越建筑物变形缝处设置补偿装置;2.当设计无要求时,电缆桥架水平安装的支架间距为1.5-3m;垂直安装的支架间距不大于2m;

电缆桥架的防火封堵?
电气规范 12.2.1 电缆桥架安装应符合下列规定:6敷设在竖井内和穿越不同防火分区的桥架,按设计要求部位,有防火封堵措施;

关于桥架及电缆的弯曲半径?
电气规范 12.2.1 电缆桥架转弯处的弯曲半径( 13.2.2 电缆在支架上敷设的弯曲半径、 14.2.3 电缆导管的弯曲半径),不小于电缆的最小允许弯曲半径:有钢铠护套的橡皮绝缘电力电缆20D;聚氯乙烯绝缘电力电缆10D;交联聚氯乙烯绝缘电力电缆15D;

电缆敷设?
电气规范13.2.3 :电缆排列整齐,少交叉;敷设电缆的电缆沟和竖井,按设计要求位置,有防火隔堵措施。电气规范13.2.4:电缆的首端、末端和分支处应设标志牌。

金属导管的连接?

钢导管紧定式套管连接

薄壁钢导管扣压式套管连接

图集03D301-3 要求
PVC塑料线管连接?
图集安装说明:1.PVC管管口应平整、光滑;管与管、管与盒(箱)等器件应用插入法连接;连接处结合面应涂专用胶粘剂,接口应牢固密封。2.PVC管在砖砌墙体上剔槽敷设时,应采用强度等级不小于M10水泥砂浆抹面保护,保护厚度不应小于15mm。(质量要求:暗配管管口及接头用胶带防护到位。布局合理,定位准确,回路清晰, 成品保护 措施到位。)

钢管与软管的连接?
电气规范14.2.10 金属、非金属柔性导管敷设应符合下列规定:1.刚性导管经柔性导管与 电气设备 、器具连接,柔性导管的长度在动力工程中不大于0.8m,在照明工程中不大于1.2m。2.可挠金属管或其他柔性导管与刚性导管或电气设置、器具间的连接采用专用接头;

安装高度小于2.4m的灯具安装?
电气规范19.1.6 :当灯具距地面高度小于2.4m时,灯具的可靠性裸露导体必须接地(PE)或接零(PEN)可靠,并应有专用接地螺栓,且有标识。电气规范20.1.4 :安全出口标志灯距地高度不低于2m,且安装在疏散出口和楼梯口里侧的上方;疏散标志灯安装在安全出口的顶部,楼梯间、 疏散走道 及转角处应安装在1m一下的墙体。

灯具成排成列安装要求
1.灯具安装应定位精确,安装在同一直线。2.安装重点:灯具安装前划线定位,确定灯具两个吊杆的固定点位置;先将圆木台固定在顶板,再将专用吊线盒固定在圆木台上,确保灯具固定牢固,成型质量好。

电气开关插座安装要求
电气规范22.2.2 照明开关安装应符合下列规定:1.开关安装位置便于操作,开关边缘距门框边缘的距离0.15-0.2m,开关距地面高度1.3m;拉线开关距地面高度2-3m,层高小于3m时,拉线开关距顶板不小于100mm,拉线出口垂直向下;2.相同型号并列安装及同一室内开关安装高度一致,且控制有序不错位。并列安装的拉线开关的相邻间距不小于20mm;3.暗装的开关面板应紧贴墙面,四周无缝隙,安装牢固,表面光滑整洁、无碎裂、划伤,装饰帽齐全。

接地装置的搭接焊要求?
电气规范24.2.1 接地装置的焊接应采用搭接焊,搭接长度应符合下列规定:1 .扁钢与扁钢搭接为扁钢宽度的2倍,不少于三面施焊;2 .圆钢与圆钢搭接为圆钢直径的6倍,双面施焊;3 .圆钢与扁钢搭接为圆钢直径的6倍,双面施焊;4 .扁钢与钢管,扁钢与角钢焊接,紧贴角钢外侧两面,或紧贴3/4钢管表面,上下两侧施焊;5. 除埋设在 混凝土 中焊接接头外,有防腐措施。

接地测试点安装?
电气规范24.1.1 人工 接地装置或利用建筑物基础钢筋的接地装置必须在地面以上按设计要求位置设测试点(安装避雷装置的建筑物必须设置室外接地电阻测试点,测试点的制作应与建筑物的外装饰相结合,做到实用、美观)。

屋面避雷带支架间距?
电气规范26.2.2 避雷带应平正顺直,固定点支持件间距均匀、固定可靠,每个支持件应能随大于49N(5kg)的垂直拉力。当设计无要求时,水平直线部分0.5-1.5m;垂直直线部分1.5-3m;弯曲部分0.3-0.5m(24.2.2 当设计无要求时,接地装置的材料采用为钢材,热浸镀锌处理,圆钢最小直径不小于8mm)。

屋面消防管道及保温管壳的接地?
电气规范26.1.1 :建筑物顶部的避雷针、避雷带等必须与顶部外露的其他金属物体连成一个整体的电气通路,且与避雷引下线连接可靠。

设备及爬梯的接地?
电气规范26.1.1 :建筑物顶部的避雷针、避雷带等必须与顶部外露的其他金属物体连成一个整体的电气通路,且与避雷引下线连接可靠。

水暖篇
参考文本:1.《 建筑给水排水 及 采暖工程施工质量 验收规范》GB 50303-2002(后简称: 给排水规范 ) 2.《 自动喷水灭火系统 施工及验收规范》 GB 50261-2005(后简称:自动喷水灭火规范) 3.《 通风 与 空调工程施工质量验收 规范》 GB 50243-2002(后简称:通风规范) 4.《 建筑安装工程 施工图集》2 空调工程(黑白图片出处) 5.《建筑安装 工程施工 图集》4 给水排水 工程(黑白图片出处) 6.吕总及公司机电部培训资料
管道穿地下室外墙采用刚性防水套管?
给排水规范:3.3.3 地下室或地下构筑物外墙有管道穿过的,应采取防水措施。对有严格防水要求的建筑物,必须采用柔性防水套管;

穿楼板套管高出装饰地面的高度?
给排水规范:3.3.13 管道穿过墙壁和楼板,应设置金属或塑料套管。安装在楼板内的套管,其顶部应高出装饰地面20mm;安装在卫生间及厨房内的套管,其顶部应高出装饰地面50mm,底部应与楼板底面相平;安装在墙壁内的套管其两端与饰面相平。

套管的封堵?
给排水规范:3.3.13穿过楼板的套管与管道之间缝隙应用阻燃密实材料和防水油膏填实,端面光滑。穿墙套管与管道之间缝隙宜用阻燃密实材料填实,且端面应光滑。管道的接口不得设在套管内。

关于套管的尺寸?
当管道公称直径小于150mm时,套管比管道直径大两号;当管道公称直径大于等于150mm时,套管比管径大一号

关于镀锌钢管的连接方式
给排水规范4.1.3 管径小于或等于100mm 的镀锌钢管应采用螺纹连接(外露2-3个丝扣),套丝扣时破坏的镀锌层表面及外露螺纹部分应做防腐处理;管径大于100mm 的镀锌钢管应采用法兰或卡套式专用管件连接,镀锌钢管与法兰的焊接处应二次镀锌。

管道焊接的表面质量?
给排水规范11.2.10 管道及管件焊接的焊缝表面质量应符合下列规定:1 焊缝外形尺寸应符合 图纸 和工艺文件的规定,焊缝高度不得低于母材表面,焊缝与母材应圆滑过渡;2 焊缝及热影响区表面应无裂纹、未熔合、未焊透、夹渣、弧坑和气孔等缺陷。

管道的识别色?
根据《工业管道的基本识别色、识别 符号 和安全标识》GB 7231-2003:水管、 冷凝水管 艳绿色,天然气管中黄色,蒸气大红色。

箱式消火栓的安装?
给排水规范4.3.3 箱式消火栓的安装应符合下列规定:1 栓口应朝外,并不应安装在门轴侧。2 栓口中心距地面为1.1m,允许偏差±20mm。3 阀门 中心距箱侧面为140mm,距箱后内表面为100mm,允许偏差±5mm。4 消火栓箱体安装的垂直度允许偏差为3mm。

伸缩节的设置?
给排水规范5.2.4 排水塑料管必须按设计要求及位置装设伸缩节。如设计无要求时,伸缩节间距不得大于4m。

阻火圈或防火套管的设置?


检查口和清扫口的设置?
给排水规范5.2.6 在生活 污水管道 上设置的检查口或清扫口,当设计无要求时应符合下列规定:1 在立管上应每隔一层设置一个检查口,但在最底层和有卫生器具的最高层必须设置。检查口中心高度距操作地面一般为1m,暗装立管,在检查口处应安装检修门。2 在连接2 个及2 个以上大便器或3 个及3 个以上卫生器具的污水横管上应设置清扫口。3 在转角小于135°的污水横管上,应设置检查口或清扫口。

排水通气管的设置?
给排水规范:5.2.10 排水通气管不得与风道或烟道连接,且应符合下列规定: 3 在经常有人停留的平屋顶上,通气管应高出屋面2m,并应根据防雷要求设置防雷装置。

水泵出入口的软接头设置
1、水泵出入口处按顺水方向安装的顺序依次是:阀门→ 管道支架 →软接→泵→软接→管道支架→阀门2、法兰连接应使用同一规格螺栓,安装方向应—致。螺栓紧固后应与法兰紧贴,不得有楔缝。需加垫圈时,每个螺栓不应超过一个。紧固后的螺栓与螺母宜齐平,螺杆露出螺母长度不大于螺杆直径的1/2。

Y型过滤器的安装?
安装要求:安装方向正确;清洗口不能朝向电机;安装位置要便于检修拆卸

喷淋管道支架、吊架的安装
自动喷水灭火规范:5.1.8 3 管道支架、吊架的安装位置不应妨碍喷头的喷水效果;管道支架、吊架与喷头之间的距离不宜小于300mm;与末端喷头之间的距离不宜大于750mm。4 配水支管上每一直管段、相邻两喷头之间的管段设置的吊架均不宜少于1个,吊架的间距不宜大于3.6m。5 当管道的公称直径等于或大于50mm时,每段配水干管或配水管设置防晃支架不应少于1个,且防晃支架的间距不宜大于15米;当管道改变方向时,应增设防晃支架。(成排支架统一弹线)

喷头与灯具及障碍物最小的距离?
根据《自动喷淋灭火系统 设计手册 》,标准喷头与水平障碍物:喷头溅水盘距常规灯具、送排风风口的平面距离不宜小于:0.3m。

报警阀组的安装?
自动喷水灭火规范:5.3.1 报警阀组安装的位置应符合设计要求;当设计无要求时,报警阀组应安装在便于操作的明显位置,距室内地面高度宜为1.2m;两侧与墙的距离不应小于0.5m;正面与墙的距离不应小于1.2m;报警阀组凸出部位之间的距离不应小于0.5m。安装报警阀组的室内地面应有排水设施。

防排烟风管的严密性试验?
通风规范:4.2.5 5 排烟、除尘、低温送风系统按中压系统风管的规定,1~5级净化 空调系统 按高压系统风管的规定。(中压风管:全数漏光法检测,20%漏风量检测,不少于一个系统)

风管法兰的螺栓及铆钉孔的孔距
通风规范:4.2.6 2金属中、低压系统风管法兰的螺栓及铆钉孔的孔距不得大于150mm;高压系统风管不得大于100mm。矩形风管法兰的四角部应设有螺孔。

风管防火阀的设置?
通风规范:6.2.5 防火阀、排烟阀(口)的安装方向、位置应正确。防火分区隔墙两侧的防火阀,距墙表面不应大于200mm。6.3.8 防火阀直径或长边尺寸大于等于630mm时,宜设独立支、吊架。

风管支吊架的安装?
通风规范:6.3.4 风管支、吊架的安装应符合下列规定:
1风管水平安装,直径或长边尺寸小于等于400mm,间距不应大于4m;大于400mm,不应大于3m。2风管垂直安装,间距不应大于4m,单根直管至少应有2个固定点。4支、吊架不宜设置在风口、阀门、检查门及自控机构处,离风口或插接管的距离不宜小于200mm。5当水平悬吊的主、干风管长度超过20m时,应设置防止摆动的固定点,每个系统不应少于1个。6吊架的螺孔应采用机械加工。
