
今天要给大家介绍的这套案例位于上海浦东新区的临沂路。业主夏先生是一位IT精英,在现在的老房中住了有十余年。由于房屋布局设计的不合理以及年久居住出现了种种烦心的问题,夏先生希望改善一下自己的居住环境,于是下定决心委托盛一重新装修一番。
面积:55㎡
房型:1室2厅1卫
风格:现代简约
业主:夏先生
设计师:顾艳荣
需求:二手房翻新
主材:松下房门、盛一合作加工厂定制家具、盛一合作加工厂整体厨房




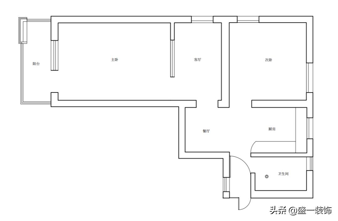
▲ 第一张为改造前户型图:原本老房子的格局清晰可见,一大一小两间卧室,中间的客厅封闭而局促。
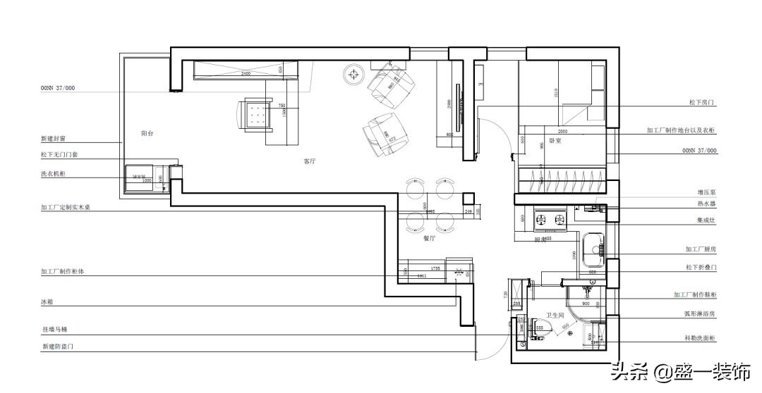
▲ 第二张为改造后户型图:考虑到夏先生准备一个人居住,因此不需要有两个卧室,将主卧与客厅的墙打通,将主卧所有空间退让出来作为客厅。可以一眼望穿,使整体空间流通起来。为平时工作和休闲的需求提供了更大的空间。此外,玄关处也有做一定的改动。



改造前一进门,玄关右侧就是卫生间,没有放置鞋柜的空间。夏先生平时鞋子也只能放在入户门外。

为了提升玄关处的收纳效果,经由设计师之手调整了卫生间门的朝向。将墙壁砌起并向内推了几公分,通过选择挂壁式马桶进一步节省面积,这样,一个鞋柜的空间就这样出现了。虽然不大,却也能满足收纳需求。



原先灶台位置的墙整面敲掉做出卫生间的门。而灶台则移到了对面。L型厨房在操作时可以三角移动,充分利用拐角地带,实现空间利用率的最大化。定制的橱柜方便拿取物品。各种瓶瓶罐罐和家用小电器,装满的是生活本身。

考虑到开放式厨房必不可少的油烟问题,厨房安装集成灶是个很棒的选择。集成灶油烟不经过人的脸部,油烟吸除率基本都达到95%以上,不会碰头,不会滴油,漏油。把抽油烟机、灶具、消毒柜、储藏柜等多种功能集合在了一起节省了空间。


为了方便走动,客厅和次卧之间凸出的墙体是敲除了的并将冰箱挪动了位置。

设计师所设计的小型吧台,台面使用了石英石,硬度高,不会被划伤。平时夏先生会在这里吃饭、办公。若是有朋友来玩,可以做火锅招待他们。旁边就有电源,即插即用,十分方便。吧台后的储物空间非常大。台面可放置微波炉、咖啡机等等小家电,上柜堆放杂物,下柜放置碗碟、锅子,相当于取代了一部分厨房的储物功能。

旁边所砌的墙柱也是一个顶天立地的柜子,平时可以放杯具、饮料等等,可兼做餐边柜,容量不小。


原本的卫生间极其狭小,浴缸+洗衣机+马桶就已占据了所有空间,连洗面柜都没有,需要洗漱只能去厨房。

选用挂壁式马桶一是为了节约面积,给一墙之隔的玄关鞋柜腾出空间。二是这种悬空的位置,方便打扫,不会留下卫生死角。马桶上方做了一组壁龛,用来放置卫生用品。

用淋浴房替代了浴缸使得卫生间解放了更大的空间,终于可以安放洗面柜了,品牌是科勒,一人使用已足够。




卧室主打的功能就是收纳。定制的地台,图片上的拉环一个个打开都是隐藏的储物空间,同时配有三个大抽屉。满足夏先生的收纳需求。


盛一合作的加工厂定制衣柜容量巨大,分层鲜明。使用的也是与地台同样的颜色,整个卧室的氛围感觉相当的协调。




客厅与主卧打通之后现在空间变大。业主并不追求一味的素雅,整个区域并不使用大面积的白色作为背景色,而是让灰色的墙壁与薄荷绿色的沙发以及青草色的窗帘达到了颜色互补的效果,这也是夏先生在和设计师沟通方案时所特意要求的。

一般情况下大家会觉得电视矮柜会放在浅色沙发正对着的墙面下吧?关于这一点,夏先生说了No,因为职业关系,之后这个位置会放置两张超大的电脑桌用来办公。那么电视矮柜就放置在了薄荷绿沙发的对面。

房子在顶楼,又年久失修,所以之前下大雨的时候家里漏水很严重。这次改造,设计师为这个问题考虑了很多。上海前几个月的阴雨不断,所幸,再无漏水情况发生。



阳台在改造前可以用“吓人”一词来形容,结构歪,墙体薄,站在上面感觉摇摇欲坠,胆战心惊。

将原来卫生间的洗衣机放到阳台,为了整洁美观,也为了增加收纳空间,做了一个相应洗衣柜。尤其推荐小户型家庭这么设计,洗衣柜兼具收纳、洗衣、熨烫等等功能。

窗台采光好,室内晾晒干净整洁,节约空间。
羊小编的话:幸福就是有阳光和爱。家里有阳光,心中充满爱,生活就舒心,幸福就是这么简单而又温暖。这套55平的小户型案例,你喜欢吗?

盛联盛一装饰有限公司
地址:茂名南路205号瑞金大厦辅楼F603室
地铁:1/10/12号线陕西南路站
公交:96、786路等均可抵达
停车指南:瑞金大厦辅楼2-5层 免费停车