
设计部落 | 公众号 shejibuluo
本案屋主是一对95后小情侣,还有两只可爱的英短,自称也算是一个“二胎之家”,两人一起打拼,努力拥有了一套属于自己的家,奈何不喜欢千篇一律的精装房,收房后第一件事就是,改!

屋主诉求如下:
1、 目前2人居住,4房,预备儿童房和长辈房,可开放的书房;
2、 有两只可爱的英短,他们哪里都可以睡,但要有他们的游戏区;
3、 房间多但空间小,要充分利用空间做收纳;
4、 不喜欢精装美式老气装修,要彻底改成暖暖的日式风格;
5、 接受小范围结构优化,但尽量不动大结构。

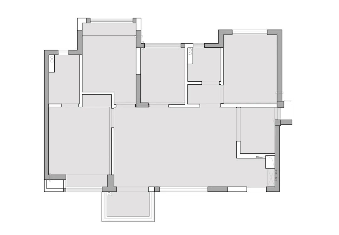
改造要点提示:
1、 拆除墙体、扩大厨房、拉长台面、空间融合;
2、 墙体外移,保持房间通过性,增加衣物收纳空间;
3、 设计折叠门、猫猫通道、木地板通铺......只为空间更融合。
玄关

精装房到手第一步,就是“斥巨资”拆掉瓷砖换木地板,温馨感瞬间就来了~从入户玄关说起,门后小空间与玄关区,打造了一组实用的L形鞋柜,超大鞋柜+换鞋凳+整装镜+衣帽柜,小空间的功能瞬间拉到了满分!
餐厨区


拆除原墙体后,玄关柜体延伸到餐厨区,原厨房橱柜台面仅2450mm,改造后有足够的操作台面,玄关柜上半部分可从侧面打开,这是女主想要的零食柜,专门设计在餐桌旁,拿零食真的不要太方便!

嵌入式冰箱顺势填补原来无用的空间,若多人聚餐U形橱柜操作空间还不够,与之连接的餐桌也可补充使用,餐桌与沙发之间留有1100mm的通道,不影响其他空间,也有较为完美的动线。


起居室
摒弃传统电视墙设计,白墙刷投影漆,与沙发的距离控制在3200mm,留有足够舒适宽敞的空间的同时,也丝毫不影响观影感受。



背景墙上设计师开放一个纵列,弥补了单调的大白墙,精妙的巧思让整个墙体有了“透气”感,为了最大限度地减少空间的浪费,将部分房门直接面向客厅,隐形门的运用就可以将此弱化,下方的“猫咪通道”算是点睛之笔,客厅小憩也能捕捉到小可爱的日常。


洗手区
客厅一侧是洗手区,但原本水池部分的风格,与新方案格格不入,所以进行了水池改造,将与客厅相邻的墙体做半墙处理,巧妙“开窗”,弱化了空间封闭感,增加通透感,使之与整个空间更融合。


阳台
阳光充足的小阳台空间,除了用作洗衣晾晒的生活阳台,还是两只宝贝猫咪的住所,利用水管设计成猫爬架,颜值在线,也颇有一番趣味,真的不要太安逸哦!临边的镂空柜下方,刚好用于放置可随手拿去的猫粮。


书房
书房选择安排在正对客厅的房间,门洞进一步扩大改为折叠推拉门,可以最大限度扩大客厅的可视面,提高空间的通透性与互动性。


书房内部设计极简又实用,一个小空间可切换多种功能空间,长书桌设计足够2人同时办公,靠窗一侧设计了带滑轮的可移动旋转书桌,推拉之间秒变男主的小茶室。




主卧
简约舒适的主卧,将墙体向外移动了305mm,目的就是给主卧增加一组衣柜,补充主卧收纳严重不足的现状,改造后主卧拥有两组衣柜,床头背景墙做了简单处理,通过色彩及极简线性的设计,区隔床铺与化妆台的同时,也增加了空间的视觉层次。


次卧
长辈房目前不会有人来住,但提前规划总是好的,房间比较小,简约舒适即可,清雅,极简,保证基础功能设计,没有多余的杂乱感,目前已成为两小只偶尔偷懒的地方!



儿童房
暂时没有儿童的儿童房,但小情侣两个人已经准好啦!9.5㎡的小空间,巧用飘窗顺势为宝贝搞定1.5mm的床,

两级台阶的设计,一方面增加了收纳空间,另一方面可利用高度设计一个书桌,再往几年后考虑,宝贝入学后的学习空间也有啦!连接衣柜的L型大书桌可不要太舒服!它还是防止宝贝摔下床的“护栏”,更是方便实用的“床头柜”。


不将就的95后小情侣,在精装房的基础上,大胆改造,81m²空间做到小而精、小而全,使有限的空间无限放大,营造出一种自己偏爱的氛围,一份属于自己的个*生活性**。
房屋信息
项目地址:厦门
使用面积:81㎡
项目总花费:30w
设计机构:厦门磐石空间设计
#装修那些事##户型改造##室内设计#