装修面积:130
装修风格:北欧
从买完房子之后就在篱笆上潜水,学习装修的知识,终于再拿到钥匙之后就找了几家公司量房,在篱笆上好多的童鞋们的家都很漂亮,让我也羡慕不已,但是和家里人商量了之后我们还是选择了北欧风格,因为线条简单,后面配起来的软装也好搭配。现在终于完工啦,装出来的效果嘛,当然是怎么看怎么喜欢啦
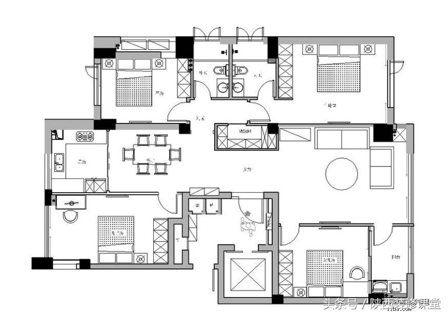
平面设计图,户型差不多的童鞋可以拿去参考

过道设计+入户玄关


客厅




餐厅



厨房


主卧




女儿房




儿子房




阳台

更多案例搜【西安装修课堂】关注
装修面积:130
装修风格:北欧
从买完房子之后就在篱笆上潜水,学习装修的知识,终于再拿到钥匙之后就找了几家公司量房,在篱笆上好多的童鞋们的家都很漂亮,让我也羡慕不已,但是和家里人商量了之后我们还是选择了北欧风格,因为线条简单,后面配起来的软装也好搭配。现在终于完工啦,装出来的效果嘛,当然是怎么看怎么喜欢啦
平面设计图,户型差不多的童鞋可以拿去参考

过道设计+入户玄关


客厅




餐厅



厨房


主卧




女儿房




儿子房




阳台

更多案例搜【西安装修课堂】关注