
锡城 融创长江映
“打造一座建筑,
就是在清晰澄澈的逻辑思考里,
以空间结构传达真实世界里的概念
像是大自然,历史、传统及社会。”

项目名称 | 融创长江映上叠
方案设计 | 贝安尔国际设计
面 积 | 156㎡
平面方案
PLANE ANALYSIS
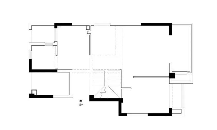
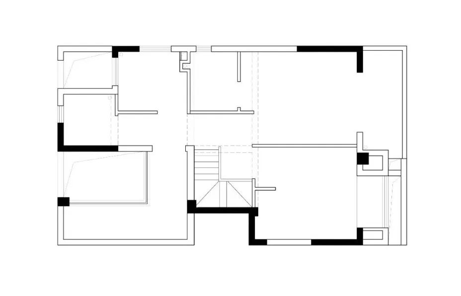
▽原始结构图

1F

2F
▽ 平面布局方案

1F

2F
本套方案的屋主是一对90后新婚夫妻,希望家庭的交互感更强,每个区域都有关联感。
在设计中,划分了动静分区,一层为全屋的活动区域,南北贯通,动静分离,二层为全屋的静区,保留三个卧室,居住后的体验感更加舒适。
◎现浇挑空空间,将二层保留备用客房;
◎保留两个舒适度极佳的卧室,设计合理舒适,享受配套的同时并赋予休憩、收纳功能。
我们希望更多站在业主的角度,把想要的生活方式呈现出来,坚持做有温度的设计。
▽ 设计意向图
01 现代低奢




















02 原木轻奢












03 灰调极简












