海安县人民医院门急诊病房综合楼项目总用地面积12658.8平方米,总建筑面积81312.7平方米,建筑总高度108.5m,为*级A**高度高层建筑,总工期750天。本工程高度高、基坑深、体量大、底板厚、造型复杂。针对重、难点预先做好对应的解决方案,并依靠BIM技术多维度的辅助现场施工,引入广联达BIM5D平台,实现全员、全专业、全过程精细化管理。
01 项目的建筑设计理念及特色
本设计为原有医院的改扩建,功能非常复杂,用地十分紧张。
通过中心发散式的功能布局,各个功能区块围绕门诊大厅展开,很好的解决了新建综合楼复杂的功能需求,大大的提高了综合楼的运行效率。新建大楼与原有门诊医技合理衔接,将内部功能与原有院区功能进行统筹安排,优化了海安人民医院的就诊环境,获得甲方高度评价。
02 项目的基本信息

项目名称:海安县人民医院门急诊病房综合楼
建设地点:江苏海安县
规划总用地面积:约5.06万平方米
总建筑面积:10万平方米
容积率:5.57
医院床位数:1000床
建筑层数:地上26层,地下2层
建筑高度:108米
设计时间:2014年
竣工时间:2019年
03 项目整体和局部的实景图片

西北角鸟瞰

鸟瞰航拍图
建筑造型的塑造来源于对内部功能的深入思考和对环境产生良好的对话,形态精炼,纯净,理性。

鸟瞰航拍图

入口透视图
建筑造型简洁,大面积的虚实对比及体块穿插组合,凸显其现代感和标志性。

入口透视图

西北角透视

东立面透视
新旧对比,融入环境,与环境和谐共处,为城市沿河景观注入活力。

门诊大厅
以医院交通流线为导向的的大厅设计,简洁纯净,通透明亮。

门诊候诊
04 项目设计图

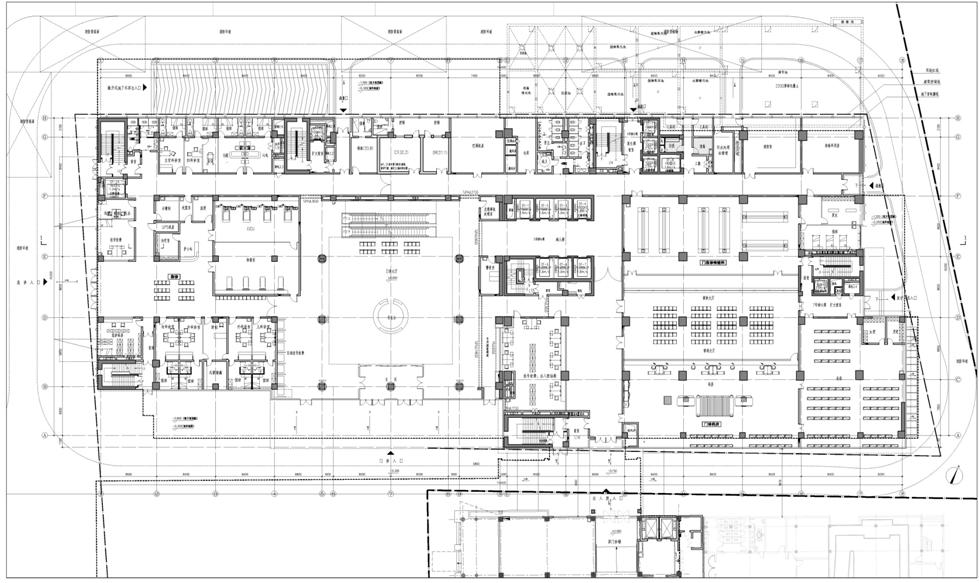
一层平面图

二层平面图

六层平面图

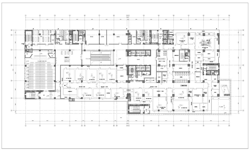
标准层平面图

南立面图

剖面图

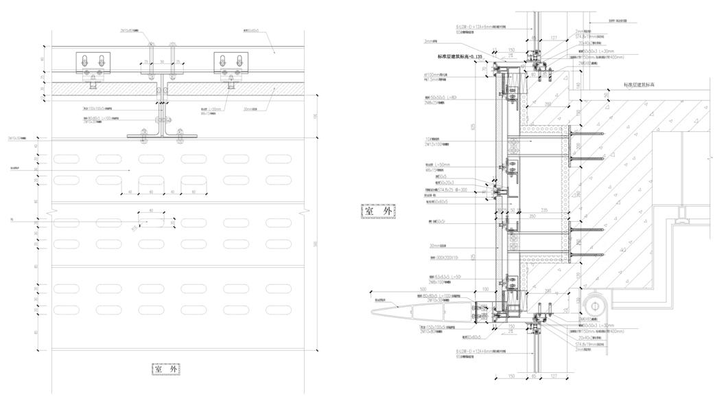
节点图
05 提供方案构思草图


设计草图
06 设计单位与设计人员介绍

设计单位logo
设计单位简介:
浙江大学建筑设计研究院有限公司始建于1953年,坚持“营造和谐、放眼国际、产学研创、高精专强”的办院方针。
现有员工近1300名,其中全国工程勘察设计大师1名,浙江省工程勘察设计大师4名,中国建筑学会青年建筑师奖获得者10名。先后获得当代中国建筑设计百家名院、中国勘察设计行业创新型优秀企业、杭州市十佳勘察设计企业、杭州市首批十大产业企业技术创新团队等荣誉,是第一批国家级工程实践教育中心建设单位。取得了较好的社会声誉和经济效益,得到社会各界和建设单位的赞扬和好评。
主创设计师简介:

陈建 教授级高级工程师,第五建筑设计研究院院长,医疗事业部设计总监,第十一届中国优秀青年建筑师,杭州市首届优秀青年建筑师,巴塞罗那设计周国际建筑展获奖建筑师。
主创团队:王健 乔洪波 许益盛 徐昉
资料来源:全国医院人文建筑奖申报评选资料
整理编辑:王晨