提起国色天乡相信成都的市民一定都不陌生,在这里有属于夏天的狂欢,整个夏季都聚满了年轻人与小孩,成群结伴的来到此处度过美好的周末。除了好玩的,当然也少不了美丽风景。今天我将与大家分享的是地处成都-青城山-都江堰旅游金三角的核心地带的国色天乡别墅——鹭湖宫。

鹭湖宫7区别墅实景图
鹭湖宫别墅属于法式建筑,十分推崇优雅、高贵和浪漫,它是一种基于对理想情景的考虑,追求建筑的诗意、诗境,力求在气质上给人深度的感染。风格则偏于庄重大方,整个建筑多采用对称造型,恢宏的气势,豪华舒适的居住空间,屋顶多采用孟莎式,坡度有转折,上部平缓,下部陡直。
屋顶上多有精致的老虎窗,且或圆或尖,造型各异。外墙多用石材或仿石才装饰,细节处理上运用了法式廊柱、雕花、线条,制作工艺清细考究。法式建筑呈现出浪漫典雅风格。
项目名称:鹭湖宫七区
项目类型:联排别墅
风格案例:法式
本案是鹭湖宫七区的联排别墅, 业主为社会精英阶层,有必不可少的社会活动需求,关注别墅功能系统划分,明确各动线,做到清晰,便捷。关注园林意境营造,要和谐融入周边环境,做到内外统一,关注环保性,科学使用材料,严禁超标。其主要 体现的是一种典雅、自然、高贵、舒适的生活方式。
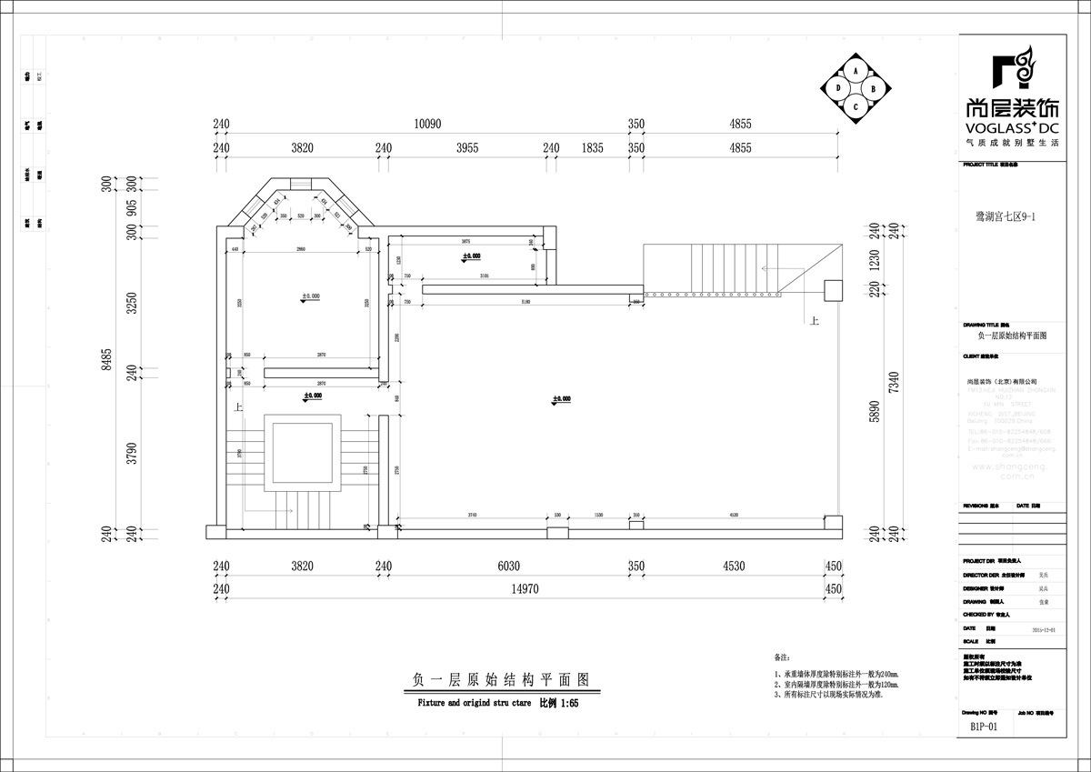
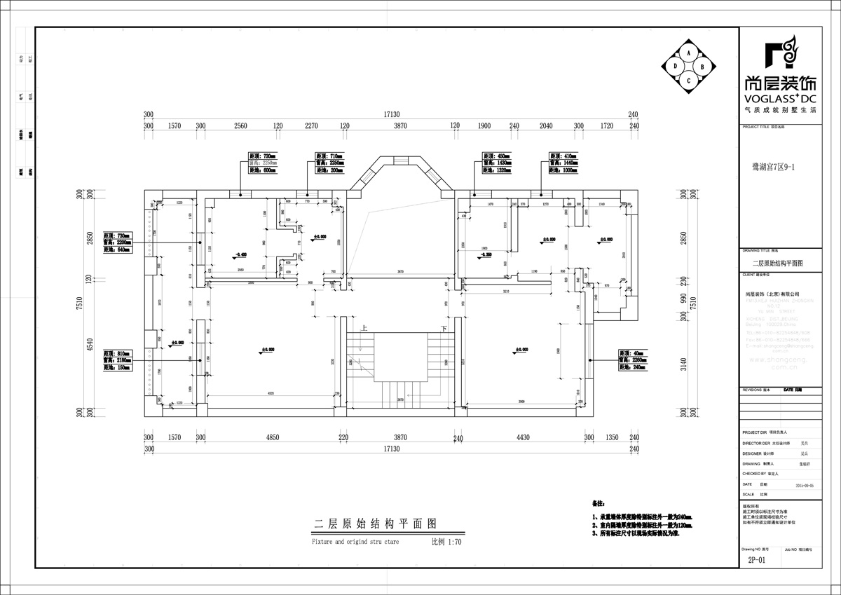
户型平面图展示

地下室

地面一层

地面二层

地面三层
效果图展示

鹭湖宫客厅

鹭湖宫餐厅

鹭湖宫主卧

鹭湖宫女儿房
开放式的空间结构、随处可见的花卉和绿色植物、雕刻精细的家具……所有的一切从整体上营造出一种田园之气。
不论是床头台灯图案中娇艳的花朵,抑或是窗前的一把微微晃动的摇椅,在任何一个角落,都能体会到主人悠然自得的生活和阳光般明媚的心情。
-
整体设计思路及解决方案:
-
将整体空间化零为整、追求空间划分的独立性及合理性。
-
设计手法上追求平衡及对称。
-
细节处理上运用了法式廊柱、雕花、线条,制作工艺精细考究。
-
装饰上注重色彩的合理搭配,油画及雕塑深度植入,洛可可元素的适量运用……使空间处处洋溢着法式浪漫情怀。