设计公司:有坪一尺建筑事务所
主持设计:单嘉男、张岩
团队:杨惠如、陈星翰
空间影像:PROJECTION映社
年份:2018
面积:40㎡
地址:中国杭州
甲方:Hana
项目类型:公寓
猫宅的使用者是其女主人与她的猫,如何通过空间增强人与猫的交互是这个项目中最大的挑战。猫喜跳跃、攀爬、登高、睡觉,从早上9点到晚上12点,在接近15个小时的观察之后,有坪一尺记录了猫的性格以及行为习惯,尝试并在空间中试图创造出属于猫的公共区位。这些区域可能是爬架、平台、通道甚至是某些关联性的装置。根据女主人常常泡澡的习惯,有坪一尺直接将开敞式的浴缸放在了进门区域,为此增添了人与猫之间的互动。通过早期对对女主人的了解,有坪一尺在设计中取消了电视背景墙,取而代之的是一个5米长的透明衣橱,大容量的衣柜极大程度上照顾了女主人的生活习惯,透明移门也从视线上给予了人与猫的连结。
▼室内一览

▼入口设置开敞式浴缸

▼空间通透,不设实体隔断

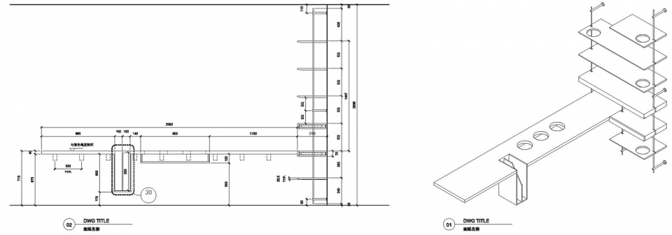
▼书桌边的置物平台可供猫攀爬



▼平台细部


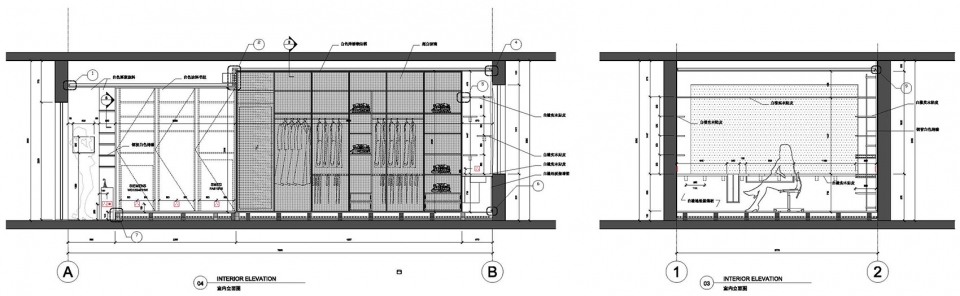
▼爬架连接到衣柜,透明推拉门加强人与猫的联系


▼尽头的书桌及细部, 符合主人的使用习惯,并且为猫提供游乐场所





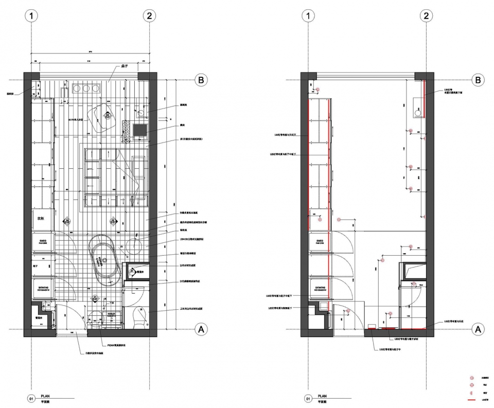
▼平面图

▼衣柜设计图纸


▼书桌设计图纸
