90后小夫妻心中的理想婚房 (90后情侣装修婚房郑州)

业主是90后小情侣,房子作为婚房使用。功能上要求每个空间都有书桌,充分考虑收纳空间。他们需要的家其实只是一个简单,自然的空间,能够拒绝喧嚣与繁杂,充分体会宁静和安逸。

95后小夫妻花170w买婚房,90后小夫妻心中的理想婚房

客餐厅布局

小区:郑州永威五月花城

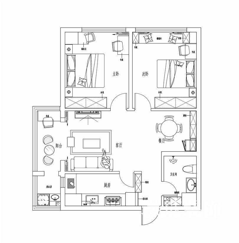
案例户型:两室两厅

装修风格:现代简约风格

建筑面积:90平

基础装修:7万

主材:5万

设计师:宋丹(微信号15937199737)

95后小夫妻花170w买婚房,90后小夫妻心中的理想婚房

客餐厅布局

95后小夫妻花170w买婚房,90后小夫妻心中的理想婚房

客厅全景

95后小夫妻花170w买婚房,90后小夫妻心中的理想婚房

餐厅布局

95后小夫妻花170w买婚房,90后小夫妻心中的理想婚房

设计师宋丹丹15937199737——平面布局方案

95后小夫妻花170w买婚房,90后小夫妻心中的理想婚房

门厅鞋柜

95后小夫妻花170w买婚房,90后小夫妻心中的理想婚房

主卧室

95后小夫妻花170w买婚房,90后小夫妻心中的理想婚房

次卧室