
花漾美作 | 夕·拾
生命会前行在历史的脉络上
沿途“拾”起一枝一叶,留待记忆
让“夕”阳给出记忆的钥匙
记忆的柴火静静的躺在地上
等生命去抽取沿途“拾”起的枝枝叶叶
在“夕”阳的指尖静静回忆

▸项目地址:安徽·宣城
▸项目设计:花漾美作·空间设计
▸设计风格:现代古典
▸户型面积:121㎡
▸项目造价:35w
▸户型结构:三室两厅一卫
▸项目摄影:花漾美作·空间设计
这次案例很特别,是设计师给在老家的爷爷奶奶和爸爸妈妈设计的房子,老家的房子*迁拆**以后,爷爷奶奶一直住在过渡房里,生活有诸多不便,而设计师的爸爸妈妈远在南京,偶尔回家,对老人家的照顾也不多,所以拿到新房之后,设计师立马着手,决定好好装一套适合爷爷奶奶、爸爸妈妈,中老年人居住的房子,也是希望给他们的中晚年生活创造一个安详的体验空间。
户 型 图
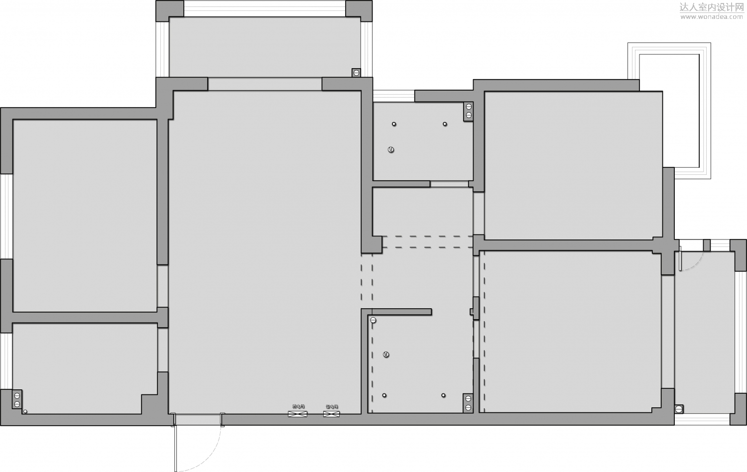
◆ 原始结构图 ◆

◆ 平面布置图 ◆

1、厨房空间有限,我们拓展了厨房使用面积,用无地轨移门形式,方便老人使用, 利用隔墙增加了入户鞋 柜存储空间。
2、客餐厅保留原始空间,餐厅侧墙取消,餐边柜内置,增加便捷功能性。
3、干区围合出壁龛空间,增加了干区实用性。
4、取消一个暗卫,取而代之增加一个大的储藏间,满足老人家杂物收纳使用。
5、原主卧改成长辈房,卧室空间独立使用,将长辈房放在靠南阳台的卧室也是为了生活的便利考虑。
6、卫生间增加小便斗,满足家里三代男性的使用需求。
7、生活阳台放在东边,南边阳台作为晾晒阳台使用。
餐 厅

打开入户门,就是我们的餐厅空间,与客厅贯通,保留了原有的层高,灯具均采用明装形式,复古石膏造型叠级与客厅造型整体设计,形成一体;我们将靠南侧的一面墙取消,设置了一个餐边柜,这样在不占用餐厅空间的前提下,增加了餐厅的操作与储藏空间。

餐边柜,我们用了分色处理,下柜哑光白色烤漆门板,并单配金色球形小把手,提升精致感,吊柜,我们选用了金属香槟色门板和柜体,更加易于打理,同时与下柜的把手形成呼应。
吊柜下口内置了灯带,方便爷爷奶奶起夜喝水使用,灰色凹凸釉面的长条面包砖,进行人字铺贴,自然的围合了餐边柜,这里不光是一个简单的柜子,也是承载了家人起居生活很重要的功能。

家里常住人口不多,所以我们选用了一款长桌,大理石台面,弧边造型,更加适合用餐时围坐,同时对老人和小孩更加安全的考虑,避免直角的出现。黑色金属基座,与挂画收边框以及合适金属厨房移门呼应,餐桌顶部的吊顶,我们也选择了长形的香槟金色,从细节上看,那白色的并非灯罩,而是大理石材,很是精致,厨房门则选用了细格子黑框结合通透的车边棱镜玻璃(这个门的定制一波三折,总算到位),吊轨形式,地面采用无地轨设计,避免爷爷奶奶生活中被地轨牵绊。


原有的猪肝红入户门我们做了出新处理,统一成哑光白,入户与餐边柜都统一定制了同款灰色花纹地毯。

这幅名为“深邃”的装饰画,一是遮蔽了画背后的强弱电箱,二是营造空间拓展的视觉感受,画面尽头的那抹彩色,提亮了空间,延伸了视角。

餐边柜旁的墙体是结构柱,拆除不了,所以一个复古罗马柱作为装饰弥补了这个宽面的空缺,又很好的融入了整体复古的调性当中。

所有开关选用了黑色雾面面板,复古黄铜拨杆开关排排放置。

过 道

奢华铜制小鹿头天然贝壳石英挂钟壁挂在次卧与厨房的墙体中间,客餐厅的门我们都采用了通高的形式,上门头板抽缝饰面,拉伸了整体层高,体现空间的气质品味。

过道中的复古装饰画组合富有现代怀旧的诗意之美。
客 厅

客厅整个空间,色彩表达素雅,以白色和浅灰色为基调,地面选用胡桃木色鱼骨拼地板,饱满沉稳,有很好的居住舒适感。墙面下裙与上墙灰色乳胶漆区分开来,使用PU线条做双层腰线,中间围合制作框线,白色乳胶漆饰面,有半高护墙板既视感。

客厅整个空间,色彩表达素雅,以白色和浅灰色为基调,地面选用胡桃木色鱼骨拼地板,饱满沉稳,有很好的居住舒适感。墙面下裙与上墙灰色乳胶漆区分开来,使用PU线条做双层腰线,中间围合制作框线,白色乳胶漆饰面,有半高护墙板既视感。

香槟色丝绒窗帘搭配拉丝香槟金落地灯,则体现了品质和艺术的和谐统一。
黑白格造型的皮质抱枕和复古鹅黄的绒布抱枕轻放在祖母绿的沙发中央,静谧优雅的味道无处安放。

“阿波罗”的凝望,心灵的凝望,客厅的一角,复古罗马基座造型的做旧边几,香槟金色拉丝不锈钢落地灯,这角落,充满了设计师用心表达的诗意之情。

客厅的软装选择上,我们用了经典祖母绿的丝绒沙发,搭配现代经典造型的千鸟格单人沙发和灰色绒面弧形榻凳,营造了整体大气却不失精致感的雅致韵味。吊顶与电视背景墙壁灯,选用了同系列样式,香槟金属结合白磨砂灯泡,增添了高雅的气质。

茶几,我们没有选择储物样式的,会与比较厚重的主沙发冲突,玻璃材质的茶几台面,结合纤细的金属腿,材质感是沉着稳重的,视觉上是通透轻盈的感受,融合整体复古味道的家具,现代与怀旧在空间的每个角落都不期而遇。


再小的细节也精致,精美的金属窗帘抓手,体现了设计师在软装选择上的独特用心。

金属落地花架,点缀上造型优美的绿植,增添了生活的幸福感。

现代极简造型的电视柜,金色柱脚,胡桃饰面与黑色亮面玻璃自然切割,映射出现代尊贵的气质。

电视背景墙,原始结构的一侧有承重墙凸出,我们将相对一侧同样加厚拉平,中间形成一个框洞,使用PU线条进行装饰结合拱形角,扣上我们定制雕刻的一对石膏花角线(花角一个500大洋,电脑雕刻,只此一对),让墙面更加丰富与生动。





地毯的选择上,低调内敛,利用纯色自然纹理的浅灰,颜色上过渡了祖母绿与深灰的衔接,材质上与家具也融合的自然。

主 卧

主卧是给父母的房间,用色整体明亮鲜艳一些,床背与窗帘选用了橙色与鹅黄的搭配,L形的大飘窗,让阳光透过唯美“珍珠蕾丝提花纱帘”充沛得照入屋内,重塑了内心和灵魂的美好。

背景是一幅珠光质感的花鸟壁纸,床头非对称的复古装饰画美丽别致,增添了空间的灵动趣味。

造型精致的白色烤漆床头柜,别致的大师安德鲁的复古装饰画镶嵌在床头柜与吊灯之间。

精致小巧的软装摆件存在在每个角落。

小千鸟格浅绿色床品,孔雀绿丝绒刺绣抱枕与床背暖橙形成对比色,背景是《Brusheep 独立宣言》和《带珍珠耳环的少女》组合装饰画,升华了精致生活的底蕴。


大九宫格吊顶素雅整齐,框线移门造型别致经典,现代黑框麻质灯罩吊灯,整体空间氛围怀旧雅趣。
老 人 房

这是爷爷奶奶的房间,用色则是偏向宁静素雅,以白为主,以净为辅,白色皮革与原木色结合的床架,简约素雅的床饰,藏蓝色花纹窗帘,沉稳而端庄,更加适合老人。画家姚永强的经典之作-《江南阔》作为背景画,让整个空间更加沉静清透。

爷爷喜欢阅读,床头的一侧我们设计了吊灯,床头柜则是开敞式的,如同一个小小的书架。

床头的另一侧,我们设计了一个可控制灯光亮度的床头灯,这样很方便老人夜间使用,床头柜则是一个完全收纳式的,放置一些小的物件。

同样选用了移门,禅意中式的韵味,跟整个空间融合的恰到好处,爷爷奶奶的生活方式一直很简单,意在给他们创造一个安祥的空间体验。
书 房

书房的一角,老房子搬来的书柜和新购的胡桃木书桌,并不显得冲突,吊顶涂灰,墙面留白,每一处的摆设都是怀旧的味道。
阳 台

抽缝哑光木纹砖与白色烤漆木门搭配,点缀铁艺藤椅,让爷爷奶奶平时在这里晒晒太阳,享受晚年生活的安逸。
厨 房

厨房的柜子,做了分色设计,下柜选用深色木纹饰面板,纹理古朴自然,点缀了锤纹金色把手,吊柜选用白色亮面亚克力材质柜门,黑色把手与门框镶嵌一体,更加便于平日的清洁打理。

墙面整体鱼肚白纹理瓷砖,吊柜与地柜之间选用了大理石纹理的面包砖,同样都是温润的哑光效果,让厨房不会显得那么冰冷,地面砖选用了哑光灰色的大理石纹理砖,耐脏同时便于打理。
卫 生 间

干区洗漱柜,材质跟餐边吊柜统一,柜面选用了现代感十足的黑色氟碳烤漆方形组合把手,柜体下方抬高,方便放置一些盆类用品。墙砖选用了六边形小长砖,贴到1250mm高度,上方墙纸装饰,层次感更加强烈,壁龛内是定制的纯铜层板架(400大洋一个)。

水龙头、镜框、胡桃木色置物架都选择了香槟金色进行搭配点缀,整体色调精致而统一。

卫生间门,定制了长虹玻璃,造型更加精致细腻,同时具有一定的透光性,门上的英文标识,复古精致。

自然纹理的鱼肚白结合白色大理石,干净纯粹。
以上作品图文来自达人室内设计网注册会员最新原创作品帖!

▼发帖投稿 | 招聘推广 | 学习交流 | 品牌合作
联系邮箱1608747409@qq.com
主编微信wonadea2019
达人室内设计网—只发精品_每日必看_达人设计总评榜_专于精品首发原创互动
1个网站+4个自媒体号+10个设计师群+30万会员粉丝=达人室内设计网
“2019年度达人设计总评榜-最佳十强&全国百强”评选活动正在征稿