户型1: 维也纳湖畔 90平小三房 郑州美巢装饰 美式 7.5w+
户型改造:维也纳湖畔90平三室两厅装修,沙发背景墙做成半高的酒柜吧台和收纳柜,简美更是以功能性为优先考虑,适合追求舒服,兼顾优雅,既注重起居品质,又不过分张扬的人群。木质家具搭配一株绿色的植物,传递着简洁、舒适的气息,在淡黄色光线的映衬下,呈现出雅致浪漫的韵味。

入户玄关效果图,玄关有过梁,巧妙运用石膏板吊顶和石膏线,把过梁更好的的隐藏了起来。

电视背景墙样板间,清新耐看的感觉,乳胶漆加上石膏线,简答精致的造型更耐看。

客厅样板间,沙发背景墙采用半隔断吧台的形式,使空间感扩大,还具有实用性和功能性。

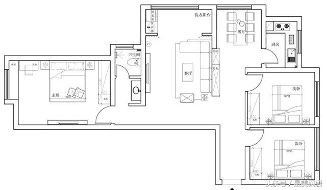
维也纳湖畔90平3室2厅装修户型布局方案——河南美巢装饰

餐桌样板间,餐厅上面保留原始过梁,另外增加一道过梁,构成美式十字型吊顶,更加精致。
户型2: 维也纳湖畔 133平三室两厅 欧式 10w+
设计理念:维也纳湖畔三室两厅户型133平方装修案例,欧式风,任然采用欧式肌理的壁纸,平面木线条收边,墙边放置一个餐边柜,使背景墙更完整,走廊处放一个欧式的成品矮柜,墙面做彩漆加部分做欧式线条。由于走廊处有梁,做了造型吊顶处理,简单的造型显得美观大方。

入户鞋柜,成品欧式鞋柜,墙面用线条做造型,挂镜面装饰品,地面瓷砖采用斜铺和波打线结构,顶面采用直线灯池吊顶。

电视背景墙,欧式的壁纸欧式线条做装饰,可以避免施工墙面壁纸的收口问题,木线条来突出整个简欧风格。

餐厅效果图,整体和客厅背景墙用相同的元素,构成呼应。

维也纳湖畔三室两厅两卫133平装修平面设计方案——美巢装饰

客厅全景布局,沙发背景采用彩漆,简洁的墙面添加两幅挂画,突出整体效果,其余部分大胆的留白,住户平时坐在沙发上不觉得压抑。
户型3: 维也纳湖畔 复式181平 新古典 12.3w+
设计理念: 维也纳湖畔181平复式户型装修,古典风范尽显华丽精巧,浪漫典雅。完美展现了新古典主义浓重的奢华,墙面艺术在雍容华贵的同时更为生动与饱满。金属亮漆以及渐变色彩的使用,使图案效果更加华丽,尽显低调的奢华。

入户玄关

电视背景墙样板间

沙发背景墙

客厅效果图

餐厅效果图

新古典客卧

维也纳湖畔181平装修复式户型布局方案——郑州美巢装饰

主卧

【郑州美巢装饰】主卧效果图