房屋类型:精装全改
楼盘名称:恒大天府半岛
楼盘户型:三室两厅双卫
软装设计:U家工场
外框面积:134.3m²
设计风格:现代
整配价格:整装25W+软装6.5W+窗帘2W+柜体6W
业主需求
本期业主是一名资深建筑设计师&“非专业”摄影师,双重身份皆与“美学”挂钩的他,欣赏水平自然高于平常人。



▲美爆了
作为一名新锐建筑设计师,业主身上有着强烈的人文精神和善于思辨的个性,在与设计师三哥沟通时,也相当明确自己对住宅空间风格的定位——简洁,但要有温度。
而由于职业原因,书房、储物室等空间堪称业主的重点需求,因此,如何让“小套三”变身“大套二”是三哥接手的第一题。
色彩搭配:黑白灰,创造极简现代风
简约风格是将设计元素、色彩、照明等简化到最少程度,因此与业主沟通后,摒弃复杂装饰,用黑、白、灰三种色彩来展现极简主义的稳重。

黑、白色营造出低调冷艳的视觉效果,直线线条勾勒出简单硬朗的气息,而考虑到各空间的属性,在以黑白灰为主色调时,加入了木色、灰蓝、墨绿、牛皮黄等色彩来提升家的“温度”。
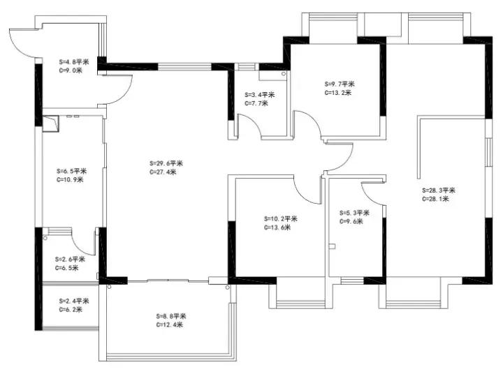
户型分析:看标准套三变身“大套二”
134m²左右的标准套三,为满足业主的收纳需求,只保留两个卧室,将原本的次卧改造成储藏室并兼顾临时居住需求,变身为舒适性“大套二”。
原始户型图
▼

改造难点:
①增加储物室:在原始布局中没有规划储物室的区域;
②扩大厨房:6.5m²的厨房面积无法满足业主对大厨房的需求;
③设置书房:在原始户型中并没有书房的区域规划。
▼
平面布局图

改造点:
①缩小次卧空间变身储物室,KO问题1:移动次卧墙体缩小其面积,改造成储藏室;
②敲墙纳入阳台增加厨房面积,KO问题2:将阳台墙体敲掉纳进厨房,变身9.5m²超大厨房;
③将卧室隔墙拆掉设置书房区域,KO问题3:把主卧两面隔断墙敲掉,利用玻璃门打造独立书房。
改造亮点:空间设计第1步“先拆为敬”
墙体,大概是设计师们在规划空间时重点关注的“对象”,即使是这套原始户型很“规矩”的精装套三也不例外,在遇到动手能力超强的设计师三哥后,照样被拆得毫、不、留、情。

▲墙体改拆图
凿掉了整个空间近五分之一的墙体,再结合业主需求,新增、推移多个墙面,把合理变为“更合理”,是U家工场所追求的极致。

由于墙体的重塑移动,不仅让厨房拥有9.5m²豪华空间,也“新增”出一处储藏室,最硬核的是拥有了一间主卧+书房+主卫的酒店式套房。
当然,拆墙只是第一步,如何用设计赋予每个空间不同的“灵魂”,才是设计师三哥所要思考的重点。
各空间亮点:从细节上把美感做到极致
——玄关
The hallway
鞋柜、挂画、玻璃门组成了4.9m²的玄关区,而其中1.7米高的定制鞋柜从入户起就提供超强的收纳功能,无论是做顶到天花板,还是抬高底部做镂空,极人性化的设计贴心照顾每一种需求。

▲上层放置不常用物品,中部搁置随身物件,下层收纳鞋子,底部安置常换拖鞋。
入户区的挂画则是此处的点睛所在,抽象写意派的风格中和了玄关区的硬朗气质,使得整个空间诗意十足。
而黑框玻璃门的“现身”,不仅将客餐厅的光线与玄关区互通,也在视觉上让空间显得更远更通透。
——厨房
The kitchen
与玄关一墙之隔的厨房设计同样巧费心思,将原始户型图中厨房与阳台间的墙面拆掉,纳入生活阳台,打造出一个9.5m²的大厨房。
原本作为设备台的区域则被改建成生活阳台,用于放置洗衣机等常规家电。

定制柜体让厨房每一寸空间都得到最大化利用,上层无把手的设计,适合收纳不常用物品,使其更具整体性;下层推拉抽屉的出现,便于烹饪设备的存放、拿取和日常使用。
尤其是烤箱、蒸箱等电器的嵌入式设计,足以见得设计师对整体性的把控力。黑框玻璃推拉门,除了可以有效隔离油烟,也是提升家庭沟通的“利器”。
但惊喜,远不止于此。
——客厅
The living room
把客厅与阳台间的玻璃拆除,即可收获一个兼具休闲与观景为一体的空间,近4米的落地窗将光线充分引进室内,就算不开灯也足够敞亮。

整个空间采用时下流行的无主灯设计,旨在简化线条和均匀照明。筒灯为主光源,落地灯为辅助光源,在适合的区域“打光”,共同渲染出一个柔和、明亮、有层次的空间氛围。

电视墙的设计也值得一提,简约却不简单的造型从细节上提升品质感,悬浮式的电视柜是客厅里的储物担当,硬朗的线条将极简风发挥到极致。

以及堪称现代风必备的组合茶几,高低错落的搭配,不仅可以平衡视觉感,更颠覆了传统客厅格局,创造出既丰富又独立的家居体
还有观景阳台的打造,彻底开发的墙面是客厅重要的补充储物空间,半封闭半开放式的设计,既可扩大家的储物力,又满足了展示需求。
——餐厅
The dining room
餐厅风格与客厅基调相同,同样遵循极简设计。弧形桌椅搭配直角餐桌,创造出一个简约的就餐环境,而吊灯的加入,不仅让光源聚焦食物,也让空间更具设计范儿。

一旁的餐边柜是近年来比较流行的家居元素,到顶的设计使其更具整体性,中间镂空的操作便于放置一些常用物品。

不过,餐厅的吸睛之处要属百叶窗。灰白的色彩与餐厅色调和谐搭配,“折叠式”设计既可以带来奇妙的光影效果,也可以很好的把控室内通风,让空间意境满满。
当然,这还远远不够。
——卧室
The bedroom
将主卧原有的隔断墙敲掉,改动门洞将卫生间纳入室内,并采用“栅栏式”木条隔断,从视觉上区分出两个空间,隔而不断的效果,设计力满分。

不同于客厅的极简,主卧色彩更显饱满。复古牛皮黄床垫、灰蓝色窗帘、米白色床头柜以及大面积的木质地板,从色彩上打造出丰富的空间层次。

占据整面墙体的衣橱被“分割”成四块,是卧室收纳的主力,超简的设计使其在发挥基础功能的同时,也更具设计性。
而一旁的隐形黑框玻璃推拉门堪称“设计高光”,嵌入墙体的骚操作荣获一致好评,推进墙体时卧室与书房“合二为一”,拉出来时又可分出独立空间,真·黑科技。

主卧的灯光设计也独具匠心,利用筒灯+壁灯的设计,既有主光源又能分区照明。以及床头的挂画将时间流失的意境诠释得淋漓尽致。
——书房
The Study
原本连为一体的空间被“隐形”玻璃门隔出两个区域,卧室+书房的设计将家与“工作室”完美结合,这种新派的居住形式是一种热爱生活、热爱工作的表现形式。
居住其中的人,能够享受到生活与工作之间的自由切换。

一对桌椅、一个储物柜、一面展示柜,超简设计旨在将书房作用发挥到最大。而在色彩上,书房与整体空间基调相同,在明确划分功能的同时,保持了视觉风格的相对统一。

当然,细节设计也相当能打。茶色玻璃极具展示性,“加了滤镜”的表面给人良好的视觉体验,同时能防灰尘;窗帘的加入让书房更具私密性;书桌延伸到飘窗的设计,既可有效利用空间,也更具设计感。
无论是整体还是细节,颜值都在线。
——卫生间
the toilet
储藏室墙体的后移,让主卫面积在原基础上扩大了1/3的空间,更利于干湿分区的打造。

双盆洗漱台外置满足两人同时使用的需求;低饱和度的的黄铜元素,兼容了复古与时尚两种属性,诠释着轻奢的都市生活格调。
而为了让卫生间在视觉上更统一,设计师采用了卧室木地板延铺到卫生间干区、及地砖上墙的设计,从色彩上延续空间的整体性。

此外,黑框圆形镜子与黄铜巧妙融合,在彰显空间精致感之余,也起到延展视效的作用。
关于“理想·家”
Q&A

VI、建筑设计师
09年离家,15年底从伦敦毕业来到成都
Q:理想中的家是什么样子?
A:Less is more. -Mies Van der Rohe
少即是多。
好的空间设计,不是因为它没有多余的东西可以加上去,而是因为没有多余的东西可以被剔除。家更是如此,因为想要保证良好的生活品质,所以即使是租房的这几年,也一直保持着定期清理东西的习惯,这是我的第一套房,所以在设计之初,就跟三哥商量不要一切多余的东西。
Q:给现在的家几个关键字吧?
A:Form follows the function. -Louis Sullivan
形式追随功能。
家是我最希望长久相处的地方,无论是一个人、两个人还是一家人,处理好人与空间的关系是最重要的,所以空间形式应该是辅佐生活习惯的,追求极致的设计就需要足够了解自己的生活习惯和各种生活场景,这也是我与三哥在设计过程中反复沟通和修改的。
Q:家对于你而言的意义是?
A:我的生活节奏很快,需要回家做个Spiritual Spa。工作基本上是9/9/7的节奏,处理各种复杂琐碎的事情已经身心俱疲了,所以回家必须全身心的放松,干净整洁、颜色和谐是我最基本的要求,整体灰调让我放松,点缀一点绿色足矣温馨,家对于我而言总结两个字就是:舒服。
Q:最喜欢哪个空间?为什么?
A:Decoration is sin. -Adolf Loos
装饰即是罪恶。
书房隐藏门(开空调、暖气时的节能效应、书房与主卧的隔声效应)、书房飘窗书桌(有限的空间内最大化书桌面积)、主卧电视柜(不要落地电视柜,方便打扫)、主卫格栅(处理卫生间干湿分区带来的卫生间和主卧的视线干扰)、储藏间榻榻米(解决储物与临时需要两间客房的平衡)、客厅电视柜(同主卧电视柜)。摈弃一切为了装饰所做的设计,一切为了功能优先而做的设计我都喜欢。
Q:最喜欢整个房屋设计中的哪些细节?
A:足够的储物空间和没有卫生清理的死角是我所要求的,因此无论从硬装还是软装三哥也一直在帮我规划,每个空间保证足够的整体柜体以方便各个空间的生活需求,也保证了设计的连贯性,而软装家具及电视柜的高脚甚至无脚的设计让无论是机器人还是吸尘器的清理都变得轻而易举,这些细节都是我所在意的,也正是U家所做到的。
Q:为什么会放心将设计交给U家工场?
A:选择U家,其实并不是因为U家是U家,而是因为U家有真真、三哥,高容、思思、葡萄儿、老齐、魏来,当然还有我沟通最多的陈师傅,感谢他们的认真、严谨和负责的态度,让我放心把房子交给他们,是他们实现了我对家的构想,也是他们成就了U家。
洁癖+强迫症+性冷淡,追求极致的简洁和质感,这就是我对家的构想。
PS:
装修之初,面谈过很多设计公司,上来就谈美式、田园、轻奢,让我选风格,太泛了,不够人性化。老牌装修公司设计赶不上潮流,高端定制的设计师收费不透明,因此在选择时挺纠结的,一度想自己做设计,但又苦于没有靠谱的施工团队,好在有U家,有年轻的态度、有当下的设计、有负责的师傅,让我能够在预算内实现设计目标。
年轻是优势也是劣势,持续了一年的装修过程也不是没有问题,具体的问题在售后回访的时候我都提过,你们也胜在处理问题的态度,最后祝你们一步一个脚印吧,未来可期。
设计清单

关于设计师

如果你也喜欢设计师三哥的作品,欢迎来私信我们咨询哦~