受“生活改造家”栏目组的委托,反几建筑师接受了上海市徐汇区乐山路老旧小区的家装改造项目。委托人张先生拥有一套单开间一居室,总面积31平方米,一对夫妻和51只猫咪共享这一狭小的空间。
Entrusted by the popular television program, “Change Your Life”, FANAF Architects accepted a renovation project to breathe new life into a home in Shanghai’s old residential Xuhui District on Leshan Road. A couple and 51 cats shared the client’s single room, which spanned a total of 31 square metres.
▼室内概览,overview

为了体验人猫混居生活,设计师在委托人家生活了一天。通过亲身经历,设计师发现,因为居室没有适当的分格,人的生活空间完全被猫咪侵占。例如,厨房餐具上不难发现猫毛,晚上主人与十多只猫睡在一起。主人没有独自休息的区域,客人也没有下榻之处。其次,为了避免猫咪逃跑,主人几乎不开窗通风。由于房间在一楼,白天室内也基本没有采光。人和猫都处于一个不健康的环境中。
▼改造前后轴测图,axon diagram before and after


To begin the project, the designers lived with the clients and their cats in the space for an entire day. The unique experience allowed the designers to understand the client’s lifestyle needs and areas of concern in sharing a small area with so many cats. Through the experience, the designers identified that the room lacked separate areas. The couple’s living space was completely occupied by cats, causing discomfort for the owner. The extent of the problem meant that it was common to find cat hair on kitchen utensils, and to sleep with more than a dozen cats at night. The owner did not have a place to relax alone and guests could not sit and enjoy conversation or stay for long periods. Secondly, in order to keep the cats from escaping, the windows were constantly shut, meaning the room did not have adequate ventilation. Additionally, as the place was located on the first floor of the building, sunlight could not be enter the room during the day. The closed-off, tightly-knit area resulted in an unhealthy environment for the people and cats living in it.
▼客厅,living room

▼从客厅望向厨房,kitchen seen from living room

▼从厨房望向远处的卧室,distant view of the bedroom from kitchen

反几团队提出了布局上“分居,立室,离合”的策略。分居,将主人的卧室和猫的“卧室”隔开,将厨房餐厅和猫咪嬉戏区域隔开,将猫和人的盥洗隔开。立室,男主人除了爱猫,也爱品茶,建立一个小茶室和会客区。离合,所有的隔断均使用拉伸式,既可以开敞人猫共享,也可以关闭,将人猫分开。
FANAF executed its vision with a three part strategy: separation, functionality and open/closed environments. ‘Separation’ refers to dividing the space between the master bedroom and the cats’ living quarters; the kitchen and dining room and the cats’ play area; and the human bathroom and cat bathroom. ‘Functionality’: The owner wanted a space to indulge in his love of tea, so the designers established a small tea area for hosting guests and entertaining. The rooms were also transformed to become multi-functional, with ‘Open/Close’ environments. Moveable walls and doors were installed to let the cats to move freely and allow more privacy when required.
▼主人的卧室和猫的“卧室”隔开,the master bedroom and the cats’ living quarters are divided from each other

▼卧室细部,detail

▼猫架,cats’ house

▼细部,detail


▼猫屋为51只猫咪提供了生活空间,the cat house provides living spaces for 51 cats


环境改造方面反几团队提出了“造光,通气,活水”的策略。造光,还原加建部分的庭院,既成为猫的主要活动区,也是采光井。通气,入口增加活动格栅门,顶部增加格栅和侧向排风扇,既可以防止猫咪逃脱,又可以有效通风。活水,在猫咪的生活区(庭院)营造活水系统,既可以成为猫咪饮水的地方,又为庭院绿化提供灌溉。
To make the space sustainable, FANAF focused on three elements: light, ventilation and water. Parts of the courtyard were restored to invite the open air and stylish roof lights were installed to direct natural sunlight. This became the cats’ main area of activity. Ventilation was improved with the construction of new doors in the main entrance and kitchen. They now have functions to become like blinds – opening enough to let air in, but not letting the cats escape. Finally, a water-efficient recyclable pump system was installed, with a pebble-filled stream of water running through the main courtyard, allowing the cats to drink water easily. The circular channel also helps the tree in its centre to absorb water, which will then transpire and create oxygen. In this way, the living water system supports green irrigation and provides a modern, eco-friendly living environment. FANAF debuted a new place that now feels cosy, breathable and inviting for all those inhabiting the space.
▼加建部分的庭院,既成为猫的主要活动区,又作为房间的采光井,the courtyard was restored as the cats’ activity area and also a light well

▼光影,light and shadow

▼小茶室和会客区,the small tea house


▼庭院中的秋千,swing in the courtyard

▼庭院细部,detailed view



▼平面改造前后示意,plan before and after


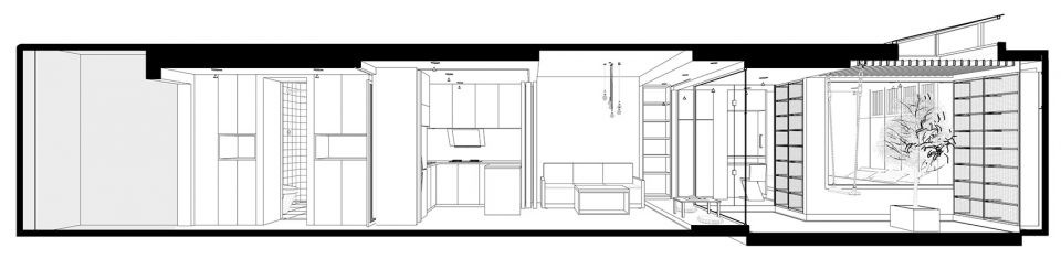
▼剖透视图,sectional perspective

▼剖面图,sections


项目名称: 猫屋
设计单位: 反几建筑设计
竣工时间: 2017
总建筑面积: 31 平方米
摄影师: 金啸文,郑雷
品牌 / 产品:上海诺亚亚克力/ 亚克力穿孔板
张家港木饰面厂 / 橡木木饰面
上海雅兰涂料/ 硅藻泥