一方面,我们试图创造一种适用于商业开发的新型山地居住模式,以兼顾开发商利益与客户居住体验;另一方面,我们对环境保护和建造技术也进行了新的探索。弗兰克·劳埃德·赖特 (Frank Lloyd Wright)曾说, “房子不应该被建造在山上,而应该成为山的一部分。”而吊脚楼的形式,让每一栋建筑都成为一棵树,长在山坡上。
▼项目外观 ©侯博文

设计议题Design Issues
提到“山居”,大家通常会联想到山水城市和山水画。这恰恰指向了中国当代建筑设计理想化、概念化的现实,对于当今大规模的土地开发显然是不奏效的。我国房地产开发长期处在粗放发展的模式下,量和质尚且难以同时保障,更不必说对文脉、空间或营造方式的细致考量,这或许是住宅类建筑鲜受学界讨论的原因之一。为解决数亿人口的住房问题,我们认为“居住”是没有原罪的,而其必然将经历从低水平到高水平,从标准化到个性化,从讲求数量到讲求质量的漫长过程。随着我国进入存量经济时代,传统的设计和建造方式已经不能满足政府和业主的要求,这也反过来促使团队不断优化设计策略。郡安里项目尝试从时代背景出发,基于技术、效率给出一份对环境友好的答案。
▼项目鸟瞰 ©侯博文


项目坐落在避暑胜地莫干山镇,这里自民国以来兴起度假之风。当地的建筑从清末起就表现出对舶来的海派别墅的迷恋,如今更集聚了迎合潮流的网红民宿等等。我们不禁思考,什么样的房子才能经得住审美的流变与时间的考验。能够得以留存的或许只是这里如画的山水,所以最大限度保护山体,让建筑拥抱自然景观成为我们的首要选择。
▼区位图 ©gad

规划策略Planning Strategy
项目规划建筑面积23410m2,由既定的23块大小不同且互相连接的红线范围组成。用地红线与山体及等高线无序关联,且山势陡峭,坡度介于22°-30°之间。高容量和急坡地的用地条件为设计带来了巨大挑战。一方面要让建筑契合场地红线,呈现出与山林和谐的秩序感,既不能过于跳脱,也不能过于呆板;另一方面需因地制宜地经营每一户的高程关系、入户动线和景观视野,并处理好户间的私密性问题,避免不良视线干扰等等,这使得郡安里项目具有了超出预期的设计界面和设计密度。
▼设计分析 ©gad

对山地建筑而言,“人工”与“自然”两者的关系往往是矛盾之所在——从土地集约利用的角度,成片开发的强度不宜过小;从保护生态环境的角度,营造介入的力度又不宜过大。本项目自设计之初便定下了“高保留“、”低介入”的策略,以山水为本成为甲方与设计团队的最高宗旨。于是我们将23个地块以四个落客广场为核心,重新划分为四个组团,进而完成了对场地秩序的第一次定义。这一处理方式化解了由于极高建筑密度和红线的无序带来的密集感和紧张感;与此同时我们根据红线尺寸的公约数推导出九个基本模块,并以此进行组合形成独立地块。疏密有致的建筑群落与西南面莫干山主峰呼应,整体串联起一道视觉通廊。各地块中亦打通了主要的景观视线,同时因借山势,组团内的建筑群彼此错落,每户都有独特的日常景观。
▼组团分析 ©gad

▼视觉通廊分析 ©gad

▼视线分析 ©gad


▼整体顶视 ©侯博文

▼顺应山势的建筑 ©侯博文


▼高低错落的体块 ©侯博文

▼组团内部空间 ©侯博文

▼建筑与山景 ©侯博文


基于总体布局,机动车隔绝在平坦的山脚下,住户由电瓶车统一接驳至各组团,而后通过栈道步行入户。自组团至广场再到步行阶梯路,最后由庭院灰空间到达室内,空间的收放为公区与私属领域间的过渡空间带来了必要的仪式感,成为不染喧嚣的邻里交往空间。同时,各组团间营造了较强的私密性,渲染了“隐于山林,可见不可达”的幽深意境。而串联组团间的平台与栈道则与水库这一主景观相呼应,塑造了一种“漫步于水库边,相遇于山林间”的浪漫场景。
▼组团外部道路, ©侯博文

▼组团内的连廊和电梯 ©侯博文


建筑单体Single Building
我们并不刻意效仿盛行的欧陆风格,或吴冠中笔下的江南民居,契合自然基底才是对土地的尊重。于是方案以吊脚楼手法以及玻璃幕墙营造轻盈放松的建筑风格,将建筑融入山林,将山林请入建筑。巨大的悬挑结构能够最大限度减小落地面,从而保护地貌,令建筑整体架空具有漂浮感。悬挑之下,原生树木绿意盎然;悬挑之上,平面铺陈为群落带来统一的秩序。
▼不同的单体建筑类型

在外部空间营造方面,空间序列得到精心组织,入户空间、灰空间和私密空间更增添了项目的意趣。我们希望每次归家都是对心灵的抚慰,根据山体特点打造了与众不同的入户体验。栈道百转千折,引导着归家人的视线、脚步和情绪。而不规则的场地现状正好提供了每户独有的归家记忆。自然与人工看似对立,建筑利用宽大露台与遮阳系统形成了层次丰富的檐廊式灰空间,令主体与客体情景交融,浑然一体。建筑与景观由此形成良好的互动关系:在垂直方向,底层被绿植紧密环绕,中间层穿透茂密的树冠,屋顶露台则将·密林、水库、远山衔接,远近呼应,一目万里;在水平方向,平面一字展开,窗外场景步移景异,形成连续多样的观看景致。而一字平面仅在二层处做凹入阳台处理,形成了比开敞露台更稳定且更隐秘的使用场景,并且在形体上达到与山林树木相似层级的颗粒度。正是因为建筑与自然之间、建筑内外之间存在大量空隙,使得在如此的密度和容量下,身临其境的居住者能感受到强烈的情绪释放。
▼建筑外观,通透的体量被绿植环绕 ©侯博文


▼引导入户的阶梯 ©侯博文

▼巨大的挑檐和露台 ©侯博文


在内部细节营造方面,为最大化景观面,建筑采用了大面宽、小进深的体形比例,并利用转角打造了1.5倍的景观视野。打开门窗的动作在举手之间便可实现室内外空间的融通,转角落地窗加强了这种体验,山风伴随美景迎面而来。为营造流动空间,楼梯间未定义空间和梯井通高空间与二层内凹露台连通,空间在剖面中经几度弯折,水平和垂直双向展开的空间为使用带来了更大自由度。我们还利用天窗引入自然光线,大面积的落地窗配之以百叶遮阳与精巧布局,在保证私密性的同时打造了丰富的室内光环境和独特的卫浴体验。临近入户栈道一侧特意不设窗或设置半高横向条窗,以保障室内空间的私密。
▼落地窗 ©侯博文

材料与建造Materials and Construction
项目以尊重自然为先,选择对环境压迫感最小的钢结构作为主体结构,同时维护结构选用了耐候性好且维护率低的石材和合金材料,最后以深色铝合金线条勾勒出建筑静美的轮廓。立面设计中,大量采用外设深远飘板,仅点缀少量纯净玻璃体块,飘板在原本简洁硬朗的建筑体量与山林中形成了一道柔软的过度,削弱了其对环境的压迫,而玻璃盒子标示出组团的位置特征和空间记忆。谨慎选用的深灰色火烧面石灰石、配以深色铝合金板材和木质格栅吊顶,让建筑与山林形成了素雅和谐的总体色调。
▼室内楼梯,使用自然材料 ©侯博文

尽管陡峭的山体为施工界面与物料运输带来诸多不利,我们依然在建造实施过程中以技术化解,尽可能避免对环境的开挖扰动。项目桩基为避免大型机械进入破坏环境,采用了人工挖孔桩的手法。为摒弃混凝土支模浇筑对现场的影响,施工完全采用钢结构作业,从而结构与幕墙均可运用装配式构件现场安装。同时我们采用钢筋桁架楼承板,实现现场免支模施工。为保证室内空间的完整性,我们首先对梁柱截面进行尺寸控制,以便防火涂料完成后与砌块同宽,室内不会出现凸梁凸柱的现象,亦方便从楼板到墙面的电管转换。通过优化钢结构节点,梁柱连接处得以隐藏在砌块内。柱内无隔板节点可实现柱内灌注自密实混凝土,灌注后可减薄钢柱外防火涂料厚度,还可防止出现冷桥效应,避免空钢管颤音及传声,创造更良好的室内环境。
▼施工现场 ©gad

城市与乡野本就不是对立,如今伴随着城市化进程与乡村振兴,两者之间正发生着前所未有的密切对话。高度密集的居住场所逐渐漫溢,同质化的肌理令人们对山林间的隐逸生活更多一份遐想。唯有立足场所挖掘其特性,让土地讲述生活,才能在山水之中营造一处契合当下的生活场景,令设计发挥最大价值。
▼夜景 ©侯博文

▼总平面图 ©gad

▼单个组团总平面图 ©gad

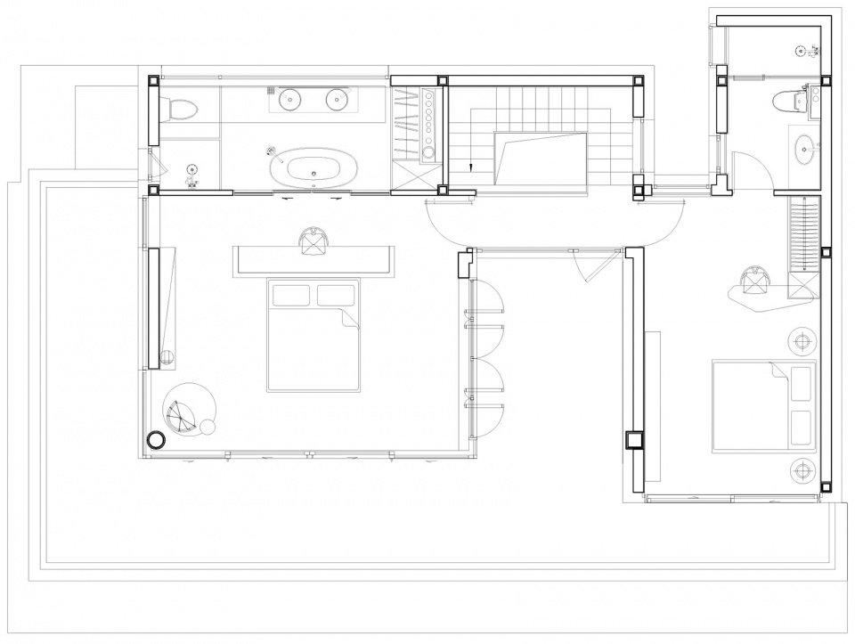
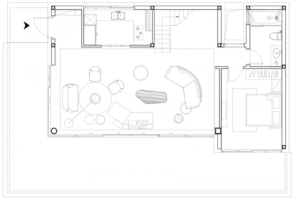
▼单体建筑平面图 ©gad


项目名称:郡安里项目地点:浙江德清莫干山详细地址:德清县莫干山镇北1.2公里项目类型:低密度住宅设计时间:2017~2018建成时间:2020项目规模:23410㎡设计单位:gad项目总监:蒋愈项目主创:蒋愈、任宏、丁凤明
完整团队成员建筑:张兴军、黄岳彪、杨宇、金通、奥珅颖、王媛(实习)、鲍华英(实习)结构:吴映栋、胡狄、李小玲、朱奇杜小艺(铁木辛柯)吴方忠(铁木辛柯)、张景一(铁木辛柯)、谢宇(铁木辛柯)给排水:胡敏、孙博暖通: 季明星电气: 童昕宏、陈谨菡、刘荣
其他参与者室内设计:集美组、唐忠汉景观设计:绿城景观&绿城爱境业主:德清御隆旅游开发有限公司代建:蓝城青州摄影:侯博文结构手法:钢结构、吊脚楼、装配式建筑材料:石材、铝板、玻璃