今天,小编给大家讲一个白云区的楼盘:华润悠山悦景。
小编一直都很喜欢华润的产品,这可能就叫情怀!华润这个企业,不多说,我国最有钱的四大企业之一,甩阿里巴巴、腾讯等几十条街,它的行业涉足太多,作为国企,华润旗下的华润置地开发的产品一直深受广大消费者的喜爱!
华润进入贵阳后,先后在观山湖区开发了华润国际社区和华润悦府,白云区开发了华润悠山悦景,以及目前正在动工的体育馆华润综合体项目,项目投资力度一个比一个大!观山湖区的两个项目已经售罄,地段优势非常明显,处于贵阳一中同路口斜对角,金阳医院和奥体中心旁!而白云区这个项目是华润的第三个项目,同时也是白云区截至目前的地王项目,楼面价高达7053元/平,这个价格比前段时间龙湖在观山湖区*党**校地块的拿地价还高3元/平!当然,这块地在现在看来拿地价是偏高了,但是作为白云区的地王,同时也是白云区目前逼格最高的房开商,这个价格拿地,肯定这里的配套是要给足的,政府后期对该板块的打造值得期待!

看上图,华润这个盘属于白云区的黑石头板块,该板块,目前有三个楼盘,华润、融创和俊发城,这三个盘都是挨着的,享受同一个十字路口!俊发城已开发多年,目前还有少量住宅现房在售,即将清盘!价格也是三个盘最低的,精装修的准现房清盘的低楼层2楼左右,8000多就可以拿下!稍微好点的楼层,之前还是一万出头,不过现在没有房了!另外还有公寓在售!价格5000多点!该盘的品质肯定与旁边的华润和融创不在一个档次,看外观就能看出来!融创这个盘刚开盘和华润其实定价是差不多的,但是去年9月份搞了一波低首付这种神操作,一下子去化大部分产品,到去年11月份,差不多整个楼盘就只剩下大平层在售了!目前可以买的也是大平层!而华润作为国企,肯定不能搞这种低首付,所以它的去化率就要差一些,虽然产品力可以,但是在价格战面前,不得不低头!
接下来,我们仔细说说这个楼盘!看下图,我们先来谈谈交通路线!以三个楼盘的十字路口为基点:
① 通过黄色箭头1号线路,即可直达贵阳北站,车程10分钟!
② 通过黄色1号线路转向黄色2号线路(林城东路)即可以直达会展城商圈和金融城商圈,车程也是10分钟左右!
③ 通过黄色3号线路(北二环),通过偏坡隧道可以达乌当区,也可以通过盐沙立交,到绕城高速,去贵阳周边每个角落!
④ 通过黄色4号线路(即与融创之间的道路),可以深入长坡岭国家森林公园去玩耍!
⑤ 通过蓝色1号线路(北二环)也可以直达金融城商圈,车程也在10分钟!
⑥ 通过蓝色1号线路(北二环)左转连接西二环,通过这条路可以到老城区黔灵山公园以及花果园等

以上就是交通路线图,都是修好的路,除了黄4线路外,其他都是至少四车道的路,交通也不堵!图上有几条铁路线,但是这个铁路线对项目是没有任何影响的,因为距离居住区最近的距离有700米左右,关键还是被山隔了的,所以这点不用担心!

下面我们说说地铁,贵阳轨道交通S2号线的黑石头站就在项目旁边,除了这三个楼盘外,19年3月份,贵阳地铁置业拿下白云黑石头片区用地,具体位置如下图,按照图上的位置,我猜想应该就是在这个十字路口的东南侧,这样形成四个楼盘的未来生活圈!所以地铁站的具体位置,虽然目前站点具体位置还没有规划,但是按照服务受众的角度来看,这个站毫无意外,所以兼顾这四大楼盘的距离,所以位置肯定不会太远!会取折中位置!而这个十字路口的交叉处成为了最有可能的选项!后面这四个楼盘一旦成熟,这个生活圈就很热闹了,因为现在这里只有俊发城交房了,明年3月份华润交房,以及明年和后年的融创交房,该板快就会很热闹,当然贵阳地铁这个盘加入就会更热闹了!S2号线通车预计还需要5年左右!具体通车时间以官方为准!



接下来,我们说说华润这个盘的具体规划!华润这个盘依靠长坡岭森林公园,项目的住宅产品沿山体而建,北侧和南侧为高层,中间为洋房!整个项目中间地块为教育用地,包括幼儿园和小学初中!从下图这个角度视野可以看到金融城,本身金融城和这个项目就是被这个山体公园阻隔!我们尝试把这个效果图放置到地图上,就成了下面第3张图!方位和效果一目了然!具体方位图上表示不清楚,以实际为准!



整个项目目前在售户型有高层113和137平,洋房137和210平,还有跃层131平,13000左右,高层均价在9000~10000,洋房11000~12000,高层一共26层,洋房9+1,项目都是毛坯交付,22年3月1日交付,整个小区是统一交付,可以说是准现房,基本上过完年就可以拿房装修!最快明年劳动节就可以搬进新房啦!下图ABC三个地块中间的建筑就是售楼部,后期会作为休闲健身娱乐场所,以及小孩玩的项目等,像游泳池、健身房这些都是城市生活的标配!


说说学校吧,该楼盘签约的是华中师大学校的教育资源,该学校在全国师范类院校中排名前三!于北京师范大学,华东师范大学这两所学校同档次!目前该校在贵阳的高新区和龙洞堡有两个校区,均为私立学校,收费标准各类项目加起来总费用在5~6万/年!而华润悠山悦景这个盘让华中师范在这里办公立学校,这就很给力!目前贵阳引进的名牌高校在贵阳办的公立学校的学区房基本上都在13500~20000这个区间的价格,也是毛坯!比如就读华东师范大学的学区房,观山湖区的金色时代,14500+毛坯!就读北师大的学校学区房,云著和金华园的二手房,18000~20000!就读清华大学教育师资的中海映山湖,13500+!而华润的白云区这个盘,1万左右,就可以搞定名校学区!个人觉得还是很不错的!


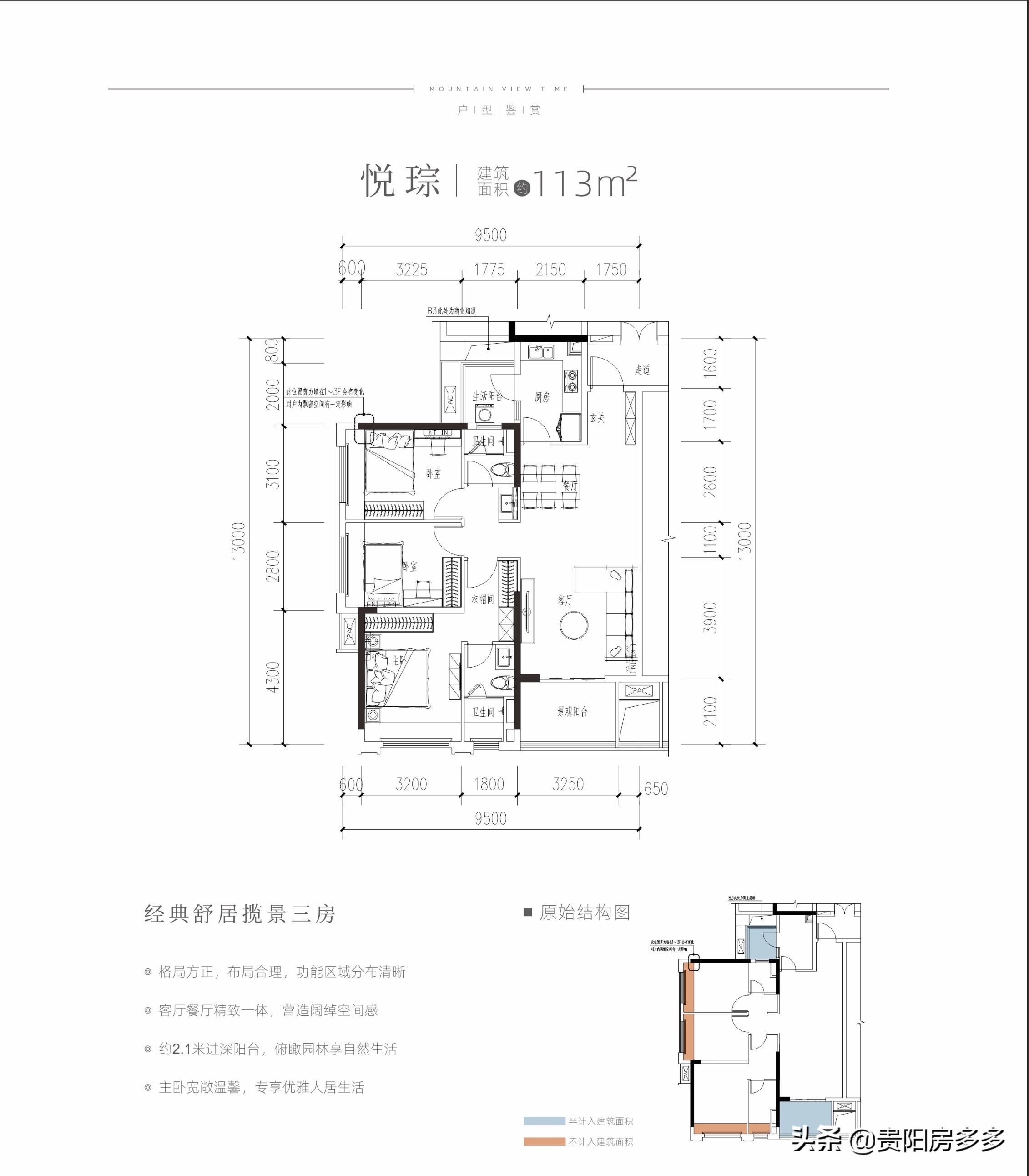
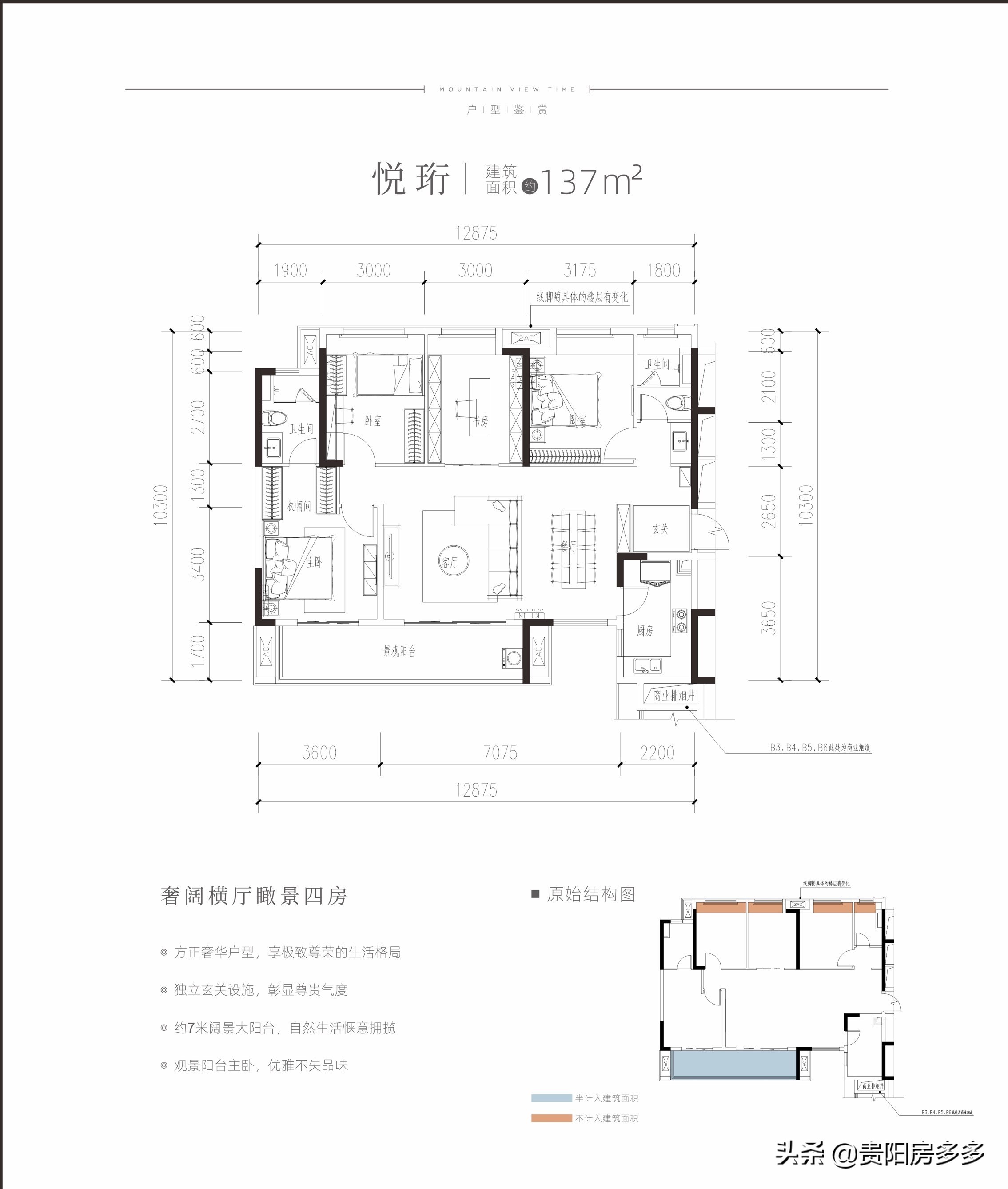
最后,我们来看看华润悠山悦景的户型图:

高层户型

高层户型

洋房户型

洋房户型

跃层户型
以上就是该小区,小编要给大家分享的内容,最后发一点实拍照给大家:


售楼部和A地块住宅





远处这个砖红色的建筑就是俊发城
--------------------------------------
从上图可以看出,华润打造的小区品质还是很不错,有很质感,环境也很好,青山环绕,相比金融城附近的在售楼盘,13000+的毛坯价格,而这个离金融城也不远的华润楼盘,我觉得性价比还不错!该盘适合想要在一年左右时间入住、对学区有要求、偏改善型的客户群体!刚需如果看上的话,请量力而行!毕竟买了房,还房贷,明年又是一大笔装修费用!
以上内容纯原创,感谢你的支持和信任,小编专注贵阳房产多年,不对之处,还望多多指教!希望给你带来最满意的购房之旅,我们下期再见!