朝向: 南北向| 178平米 | 三房两卫带保姆间
特点:
▪️ “聚宝盆”之称高端小区
▪️大三房户型 带保姆套间 居住舒适
▪️绿树环绕 如诗如画 住进风景里
▪️特殊楼层带40平平台花园
▪️全新高端定制家具
『 每次歸途春風十里 』
下面让我们一起参观吧:
➖ 客厅餐厅 • LIVING ROOM ➖











➖ 主卧• MASTER BEDROOM➖宽敞的主卧套房 带步入式衣帽间南北对流 高档大气出口定制大床 双洗手盆带浴缸





➖ 次卧• ROOM 2➖


➖ 多功能房• FUNCTION ROOM ➖


➖ 洗手间• REST ROOM ➖

➖ 厨房 • KITCHEN ➖带生活阳台 及 保姆房带独立洗手间40平方平台花园


➖ 多功能房• FUNCTION ROOM ➖


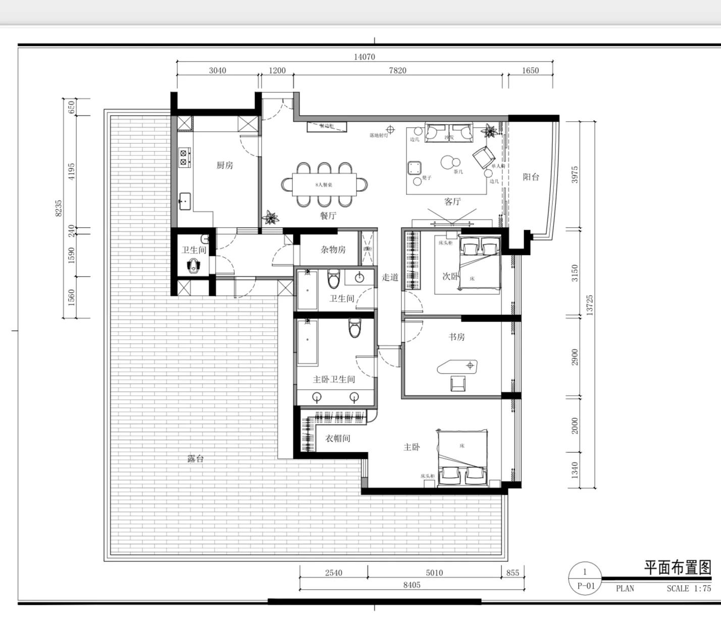
➖ 户型图 • FLOORPLAN ➖

➖ 小区介绍 • NEIGHBORHOOD ➖ 枫丹丽舍位于城市最繁华的珠江新城CBD核心,是由新世界中国地产经过十年淬炼,精心打造而成。它与广粤天地、广粤会、广粤公馆、广粤尊府等各大体系共同构成了完整的广粤国际社区。项目别具匠心地将原本分开的13块地完美相连,巧妙的构成一个整体,完美地诠释了融合的概念;这里是广州市中心难得一见的南向望江物业,绝大多数单位均拥有一江两园的极致景观,拥有广州市最大4.8万平方米的大型小区中心园林,大公园造就东西135米、南北450米超宽楼距。项目的绿化面积达到11万㎡、双层共拥100%绿化率,和2.83的城市社区至低容积率。入住率中约3成来自于欧美等地的世界500强高管和领事。


