生活基调的不同,造就了不同的装修效果,每个家都有属于自己的独特气质。可以是高冷、可以是优雅、也可以是少女心。这次分享的案例,除了干净明朗,舒适惬意外,家里的每一件物品都表现了可爱的少女心,温柔宠溺夹杂着一丝慵懒,67平的两房一厅,用简装诠释生活,这大概是我见过最温柔的家了!(图:白菜适家)

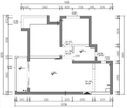
原户型结构,67平的两房一厅,整体布局合理,装修改动不大。

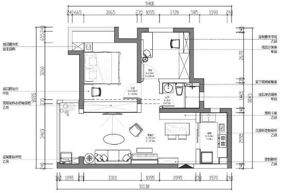
装修平面图,拆除原有电视墙,新建隔断柜与阳台门垛保持同一水平,视觉效果更统一,增加收纳的同时,扩大主卧空间。

客厅全景,温柔不失自然。浅灰色与木质色彩叠加,营造了温暖舒适的居家氛围。客厅阳台连通,采光和通透性得到了很大的改善,慵懒的午后躺坐在珊瑚红豆包上,享受舒适惬意。

舍弃茶几和电视柜,将空间还给客厅。装修大方自然,既有着质朴的通透感,又不影响通风采光,一盆绿植的点缀,给客厅平添了些许清新感。

拆除原有电视墙,新建隔断柜保持与阳台门垛同一水平,空间整齐统一,视觉效果整洁大气。白色与原木色结合,舒适自然很耐看。壁龛式收纳设计,增加收纳的同时节省了空间。

进门一侧,定制上下柜,实用空间更显通透。柜子边上摆放了女主的钢琴,复古风格的色调,给整洁的空间增添了一份大气感。

餐厅卡座设计,让空间利用率更高。充当椅子的同时,为餐厅增添收纳。木质桌椅,温润质朴很有温度感。简易造型设计,占用面积少,让餐厅空间更通透。

背景墙定制软木板,打造成照片墙,除了装饰作用外,还可以记录生活的美好时刻,为居家生活增添幸福感。一边享受美食,一边看着照片墙,可以勾起美好的回忆。

厨房干净整洁,整体色调搭配很和谐。假小白砖、大理石操作台、拼花地砖,让厨房不显单调乏味。


卫生间精致简约,放弃硬质隔断,选择浴帘做隔断,灵活实用空间也宽敞。几何造型地砖,给空间增加了一些趣味感。灰蓝色的浴室柜搭配金属质感的门把手,在展现清新感的同时,也体现了精致。

主卧灰白原木结合,营造出优雅简洁舒适的睡眠空间。床头采用单一的吊灯设计,避免了对称呆板视觉效果。窗帘严重转角飘窗设计,避免过长带来拥挤感。

衣柜延伸做简易化妆桌,镂空部分可以摆放化妆品,保持桌面的整洁。

小卧室打造成书房和休闲空间,大面积白色揉合一抹跳色,让空间不沉闷呆板。大面积的通高储物柜,为居家收纳提供了保障。简易书桌和吊柜,增加日常实用性。