在三叉街板块,有两个新盘,一个是中骏世界城,一个是融侨则徐道一号,前者在售的为璟悦一期,只剩下尾盘了,璟悦二期可能会在短期内开盘;
则徐道一号在售的为A区,2号楼只有个别不好的楼层了,1号楼开盘有一段时间了,还有蛮多房源客源可以选择的;
有网友问,自己是改善型购房者,想在中骏世界城璟悦二期(一期没有想要的楼层了)和则徐道一号之间选择一个大户型,满足一家四口的改善需求,该怎么选择?
如果要对比这两个楼盘的大户型,那么至少得对这两个楼盘有所了解吧,我们分析一下这两个楼盘的优缺点吧!
1.基本信息对比

图片为踩盘实拍
中骏世界城位于上三路和南台大道交界处的西南侧,该楼盘为纯商品房社区,建筑类型为小高层,容积率为2.3,绿化率为30%;
总户数为1900户,车位为2400个,璟悦在售户型为5个,大户型为128平米的四房,交房时间为2023年12月;

图片为踩盘实拍
则徐道一号位于则徐大道193号,该楼盘分为A,B两个区,在售的A区也是纯商品房,建筑类型为高层,容积率为2.9,绿化率为30%;
总户数为594个,车位占比为1:1.2,在售的均为大户型,分为130平米和143平米两种,交房时间为2022年10月。
从小区对比来看,中骏世界城的小高层以及2.3的容积率的居住体验感会更好一点,但是从地段来说,则徐道一号位于则徐大道上,该地段的成熟性会比南台大道高一点。
2.商业配套对比

在中骏世界城璟悦二期的东侧,有中骏世界城自己的商圈,该项目有14万方的综合体,算是一个体量比较大的商圈;
如果这个商圈未来发展成型的话,能满足小区周边居民的吃喝玩乐购一站式需求;

图片为实地拍摄
在则徐道一号的西南面,有一个万达广场,从上图可以看出,该万达广场主体已经完工,预计在今年年底能投入使用;
中骏世界城这个商圈对于大多数老福州人来说没听过,认可度不高,白湖亭万达的认可度可能会更高一点,但是从体量上看,中骏世界城商圈是比白湖亭万达高很多的;
不过因为本身距离不算远,两个楼盘的业主除了家门口的商圈外,到另外一个商圈步行时间也大概只有十分钟左右。
所以在商圈的对比上,各有优势,没有说哪个楼盘会更好一点。
3.教育配套对比

临近中骏世界城地块的有一个东升小学,不过从师资力量上看,这算不上优质的教育资源;
不过在中骏世界城璟悦地块南北两侧都有小学规划用地,但是对于新的学校来说,未来的教育资源还存在不确定因素;

图片为实地拍摄
则徐道一号地块以前是三叉街新村,在*迁拆**之前该地块的划片为仓山实验小学,虽然算不上特别优质的教育资源,但是对比东升小学还是有一定的优势;
不过,在未来划片上,并不是商家说了算,这个要等交付后,由教育部门做决定的,现在中介只要看到未来有学校规划,都会说成优质教育资源,这点切莫相信!
4.交通配套对比

图片来源于幸福里APP
我们从幸福里APP上可以看到,中骏世界城离三叉街地铁站为450米左右,但是这里指的是直线距离;
实际上目前从该楼盘到三叉街地铁站要经过南台大道,上三路和则徐大道,实际步行时间要十分钟左右,至于后期会不会开下穿隧道,开通后要多久,现在还不能给出具体数值;

图片来源于幸福里APP
在幸福里APP上看到则徐道一号离三叉街地铁口在350米左右,因为这个楼盘正处于则徐大道上,所以没有什么拐弯,步行到地铁口大概在五分钟左右;
从公交线路上看,中骏世界城璟悦靠近南台大道和上三路,有两个站点,公交线路比较多,而则徐道一号附近只有三叉街新城站,虽然公交线路不少,但是对比前者两个站点略显一筹;
从自驾出行上看,中骏世界城璟悦紧邻南台大道,可通过此路直接上二环路,而则徐道一号南面也可以上二环路;
所以在交通配套上看,则徐道一号更靠近一号线地铁口有优势,公交出行的话中骏世界城璟悦地块会多一个站点优势,在自驾出行上两个楼盘差不多。
5.户型对比

要说到改善型大户型的话,中骏世界城璟悦目前能达到这个条件的就是128平米的四房户型,因为118户型做四房的话比较紧凑,谈不上改善型;
上图为中骏世界城璟悦128平米的户型图,结合右下角的楼层平米图可以看出,这个户型为南北通透的端头户型,两房朝南两房朝北,户型还比较方正;
因为是端头户型,采光上基本没问题,但是这个户型也有缺点,首先,从入户玄关到主卧需要很长的距离,其次,朝南的次卧和公卫门对门设计,会让人感到尴尬;

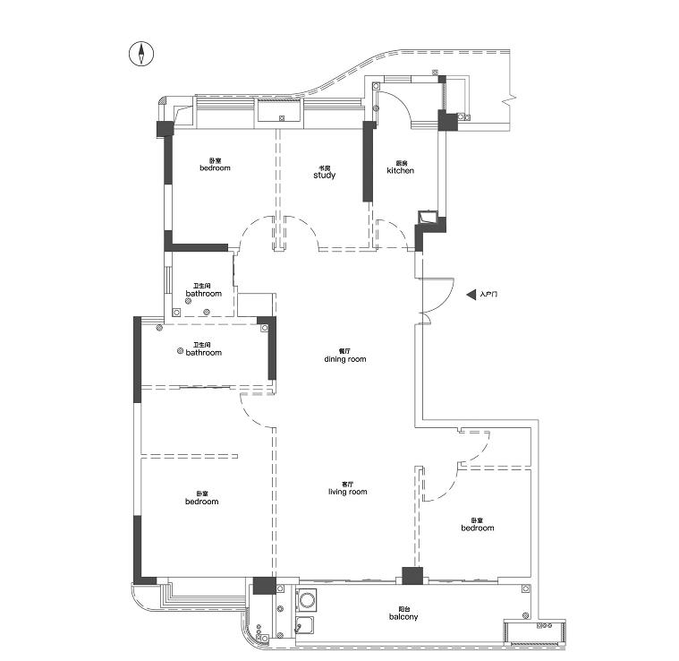
上图为则徐道一号A区130的户型图,从上图可以看出是两房朝南两房朝北的设计,但整体看这个户型图不够方正,就会造成空间的浪费;
南北通透的户型采光基本都还可以,不过这个户型开门就能看到卫生间,也会令人感到尴尬,还有就是主卧和客厅相邻,没办法做到动静分离,也是一个缺点;

上图为则徐道一号143平米的户型,做到了四房三卫,毕竟面积大一点,多做了一个卫生间,双主卧的设计是一个优势;
但是朝北的书房和儿童房就显得过于狭小了,还有虽然是双主卧,但有一个主卧是暗卫,还有就是这两个卧室都紧挨客厅,也没做到动静分离;
从户型上对比可以看到,中骏世界城璟悦128户型做到了动静分离,户型比较方正,则徐道一号130的户型不够方正,143的户型有暗卫,且这两个户型没有明显的动静分离;
但从厨房采光上看,则徐道一号的两个户型都是直接朝北采光,而中骏世界城璟悦128户型是侧面采光,效果就会差一点;
从梯户比上看,中骏世界城为两梯四户,而则徐道一号为一梯一户,这点上看,后者可能会更受改善型购房者青睐。
6.物业对比

图片为实地拍摄
从物业口碑上来说,则徐道一号用的是融侨物业,虽然今年来口碑有所下滑,但是还是有不少福州人比较认可;
中骏世界城作为该企业刚进入福州的首个项目,目前没有口碑积累,但从其他城市的反应来看,应该也不会太差。
7.价格对比

图片来源于幸福里APP
从价格对比上看,中骏世界城璟悦一期的售价在三万两千五左右,这个价格已经不便宜了;
虽然商家说是带精装修,但实际上不要对这所谓“精装修”抱太大希望,这只是商家提高价格的一个筹码而已;
置业顾问说璟悦二期开盘后准备卖到三万五,其实这只是一个噱头而已,一期和二期地块那么近,怎么可能会有那么大的差距呢?
如果璟悦一期没有好的楼层户型,可以等二期再做选择,不要被销售给误导了!

图片来源于幸福里APP
则徐道一号的售价和璟悦一期差不多,同样是三万两千五左右,但是这个价格没有包含装修,换句话说,则徐道一号毛坯的价格和中骏世界城带装修的价格是差不多的;
如果同样的价格,一个是带装修交付的,一个是毛坯交付的,前者有轻微优势,但是现在很多改善型购房者更喜欢毛坯交付,自己装修,这点就看你怎么取舍吧!
8.总结
作为改善型购房者,一定要结合自身需求去对比楼盘,每个楼盘都有自己的优缺点,建议实地看房,问清楚有哪些不利因素,看看自己能不能接受;
改善型购房者要尽量做到一步到位,因为这一套房子可能会伴随你好长时间,买错的话要想再置换需要很大的成本。