
“上善若水,
水善利万物而不争。”
——《道德经》
老子世事通透的智慧
挣脱物欲的枷锁和焦虑的干扰
于简单之中求得心灵的宁静
远方有诗
诗里有烟火
家是独属的美好与温柔
玄关
HALLWAY

设计师尝试更多的方式
让空间“跳出”固有设计思想的束缚
以顺其自然的方式自由组合
设立玄关柜满足收纳需求
又巧妙划分了空间布局
隔而不断
条而有序
木材纹理独有的质朴情怀
为过廊增添一抹旧时光的老味道
客厅
LIVING ROOM



大理石地面以高级灰为肌底
予人冷静安谧的视觉感受
完美表达现代美学中理性克制的基调
错落有致的纹理拼接
达成空间与意境的天人合一
进一步凸显金属家私的精致奢华
由内而外彰显出空间的高级


书架的向外延伸
避免直面卫浴间
又为客卧营造了静谧安逸的环境



窝在舒适又有颜值的沙发里看剧
生活有滋有味
惬意放松的情境氛围里
空间与人产生自然互动
餐厅
DINING ROOM



设计师将餐厅纳入厨房
加强区域间的交流
形成独具艺术气息的烟火空间
冷硬的质感大理石
搭配自然醇厚的实木餐桌
赋予用餐空间气度与温度
茶室
TEA ROOM




原木家具与白墙托起简约自然
悬空的灯光释放着温暖自在的气息
曲径通幽处
茶香绕其间
最纯粹的快乐
源于对生活最真实的热爱
楼梯
STAIRWAY



淡淡的木香扑鼻而来
保持了原始质感的几何木块
带来耳目一新的美好感受
通过有生命的原木
唤醒时光里的确幸
凝结有情感的故事



在水平和竖直方向构建新空间
当光线从不同的角度渗透进来
形成层次更加生动的通透与开放
有效节省空间的同时
打破人与空间的隔阂
相处更加轻松自在
二层走廊
CORRIDOR



在纯白的走廊空间里
对造型和尺寸严谨打磨
令空间的结构层次更丰富
巧妙运用色彩与角度
打造工作区与休闲区
将现代美学符号刻印在空间装饰里
主卧
MASTER BEDROOM




干净利落的线条
低饱和皮质的床头靠背
给卧室带来宁静舒适的睡眠氛围
绕过开放式电视背景墙隔断
即可步入衣帽间
尽享高雅的生活情调
儿童房
CHILDREN'S ROOM


平静的浅灰色墙面
光线也更舒服
优雅而简单的空间
有利于缓解小朋友的情绪压力
纯粹的留白意境
拥有更多的想象创造空间
卫生间
BATHROOM


干湿分离设计更易于保持干净的环境
藤编筐收纳高颜值又不易吸水
整体设计与室内的简约氛围极为相衬
真切地感知到认真对待生活的态度
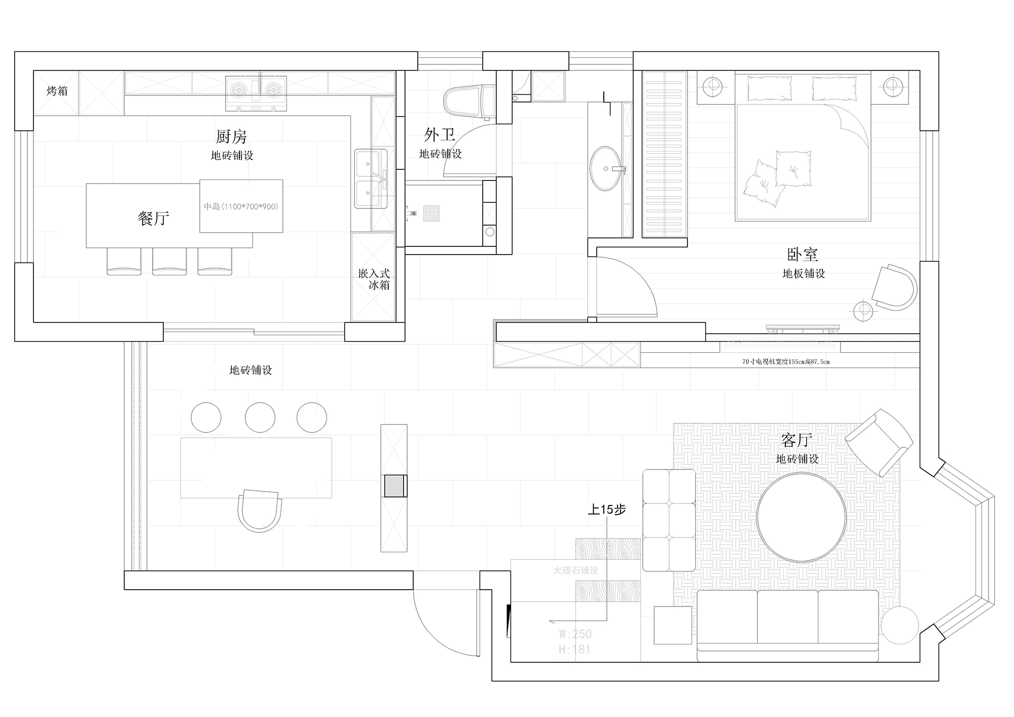
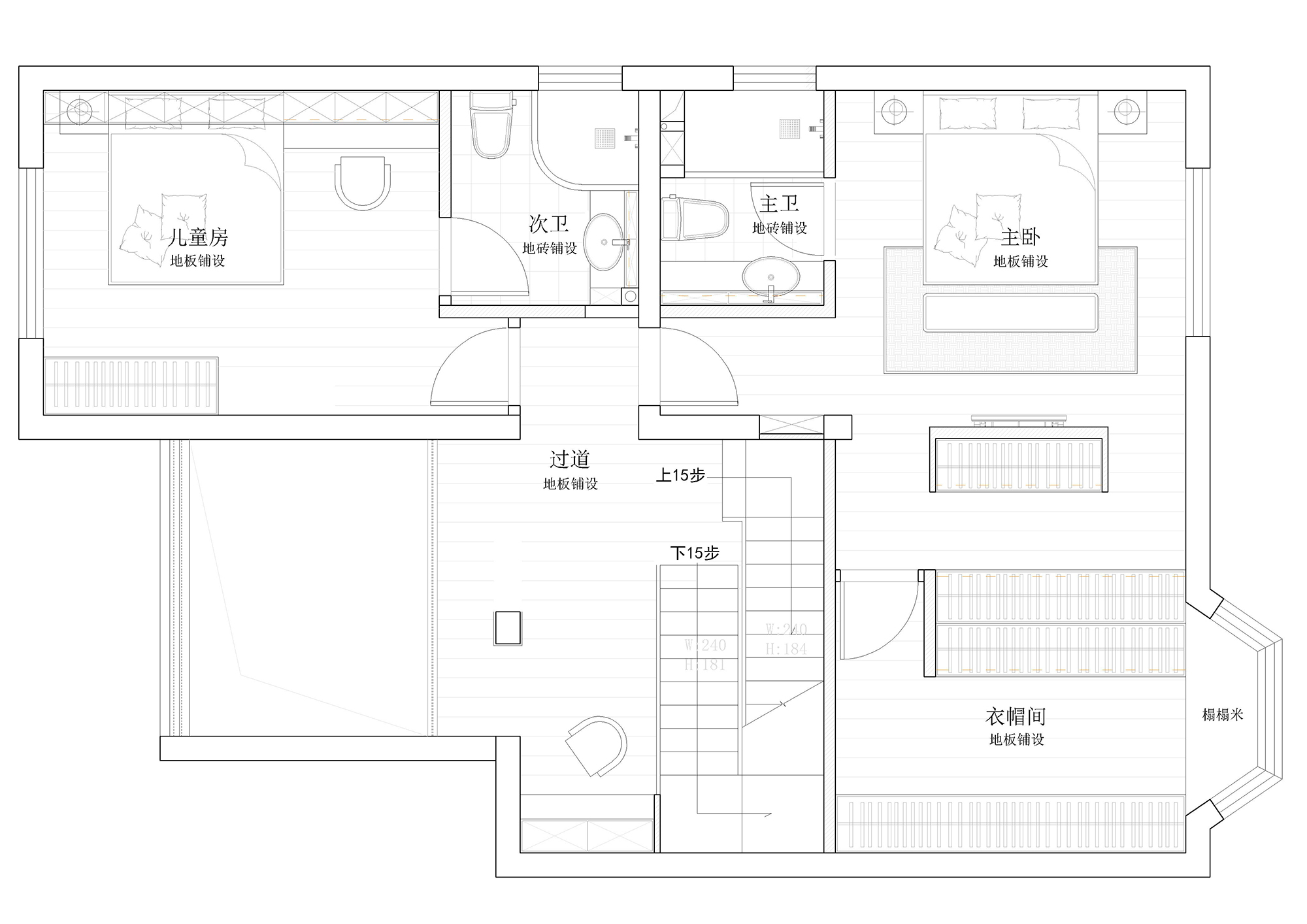
平面布置图
FLOOR PLAN



项目名称 / 时光与你都很美
项目地址 / 苏州·美之国
项目面积 / 230㎡
项目风格 / 现代风
设计主创 / 陈静
方案深化 / 周瑜、张娜娜
空间摄影 / TS建筑摄影

陈静
禾景装饰工程有限公司 创始人 总经理
大陈设计事务所 创始人 创意总监
常熟装饰设计行业协会 副会长
苏州装饰设计行业协会 理事