日清设计
日清设计成立于上海。始终秉承“删繁就简,溯本清源”的建筑哲学,立足本土并以创造一流建筑为目标。经过十多年的发展,已拥有700余名建筑师,并在国内积累了众多大型建成项目及高端客户。

华侨城滁州·欢乐明湖体验中心
OCT Chuzhou Minghu Experience Center
中国,安徽
Anhui,China
“建筑与基地间应当有着某种经验上的联系,一种形而上的联系,一种诗意的连结!”。
----建筑大师斯蒂文·霍尔
现代主义只是一种语汇,而非固化的一种建筑风格。相较于被简单的现代风格所定义,我们更愿意用当代建筑去解读我们当下所做的设计。华侨城滁州·欢乐明湖体验中心项目正是应对了这样的设计理念。

落子:融于自然的雕琢


项目坐落明湖,地处规划新城的东南部,毗邻滁扬高速与京沪高铁,地块总用地面积2000平方米。
基地景观环境优渥,原野茂郁,拥有简单质朴的自然美,任何人工建筑在此似乎都会显得唐突。于是,设计希望从“人的体验路径”入手,建成后的体验中心将成为游客行为的引导者,它以一种自然的形态出现,阴雨天好像一团萦绕于湿地上的飘渺雾气,晴日里如同生长这里已久的田间磐石。


体验中心联系着公众与明湖,建筑与场地,游览者与景观通过建筑自然地展开对话。
建筑是对周边环境的一种回应,增加了天际线的变化,保留场地的生态感、自然感,以此回应此地的山水。

建筑融于自然,同样也体现在游客在室内的心里感受。立面巧妙的开窗虚实变化兼顾了室内空间光照与取景的需求,回应四周不同景致的感知。游客可以由里及外感受到自己所处的自然环境之中。


生长:精巧的形体雕塑

◎手绘稿
“过去我认定有无重力的物体存在,而现在我已经可以确信建筑就是无重力的,是可以飘浮的。”
——Zaha hadid

◎体块分析图
项目场地容积率为1.5,限高24m,需要在1000平方米的空间内满足3000平方米的建筑体量,该体量则需要3层以上的空间,基本上成一个方盒子形体。

◎流线分析图

◎轴测图
项目形体的深化以传统印章和文字为灵感,设计师对形体进行解构,以消除大体量建筑的压迫感。
实与虚的横向体量分割,让建筑仿佛无重力地依附在空中,在厚重与轻灵的矛盾中和谐统一。

通过折线扭转,拼接与消除等手法细化,建筑呈现出从场地生长而出的运动趋势。内部螺旋向上的功能布局,对游客聚集、活动、望远等游览行为形成了空间引导。


成形:质朴与通透的互补
项目极力追求自然,采集天然光感,隐藏人工痕迹,多采用绿色可循环材料,如玻璃幕墙、人工石材、石膏制品、木材等。

◎模型照片
人工石材具有天然石材的质感,锐利有力,其“美在于自然景观与艺术表现的结合”。可以根据建筑需求变换不同形状,尽可能提取滁州人文特征元素,成为建筑的一部分,也能成为滁州山水自然肌理的延伸。


通透的玻璃幕墙展现生机,同时增加户外对建筑内部功能的感知,将建筑美学、建筑功能、建筑节能和建筑结构等因素有机地统一起来,建筑物从不同角度呈现出不同的色调,随阳光、月色、灯光的变化给人以动态之美。
◎建构体系


以明湖为始,探索“好城之道”
《醉翁亭记》载:“若夫日出而林霏开,云归而岩穴暝,晦明变化者,山间之朝暮也……”
在滁州,山水人文对建筑有提纲挈领的展现,华侨城滁州·欢乐明湖体验中心的设计早已呈现在滁州的山水人文精神之中,真正成型不过源自建筑师对滁州珠玉的拾取。建筑形式写意洒脱,契合当地文人墨客的思想境界,用有力量和韵律感的型与线去勾勒山水人文,如同一抹中国字有力的运笔。






◎向左滑动查看更多建造过程内容←

不只是华侨城滁州·欢乐明湖体验中心,明湖未来还会有亲子度假基地、康养医护综合体、高端理疗中心及膳食养生中心、酒店及湿地展馆等建筑,它们一起构成明湖生态,以明湖为始,探索滁州“好城之道”。


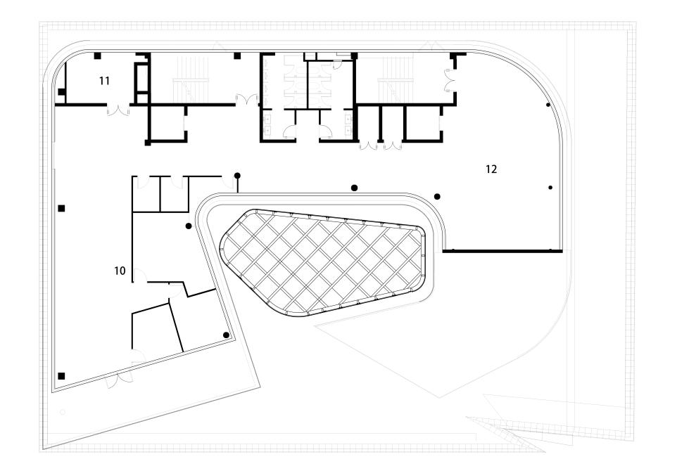
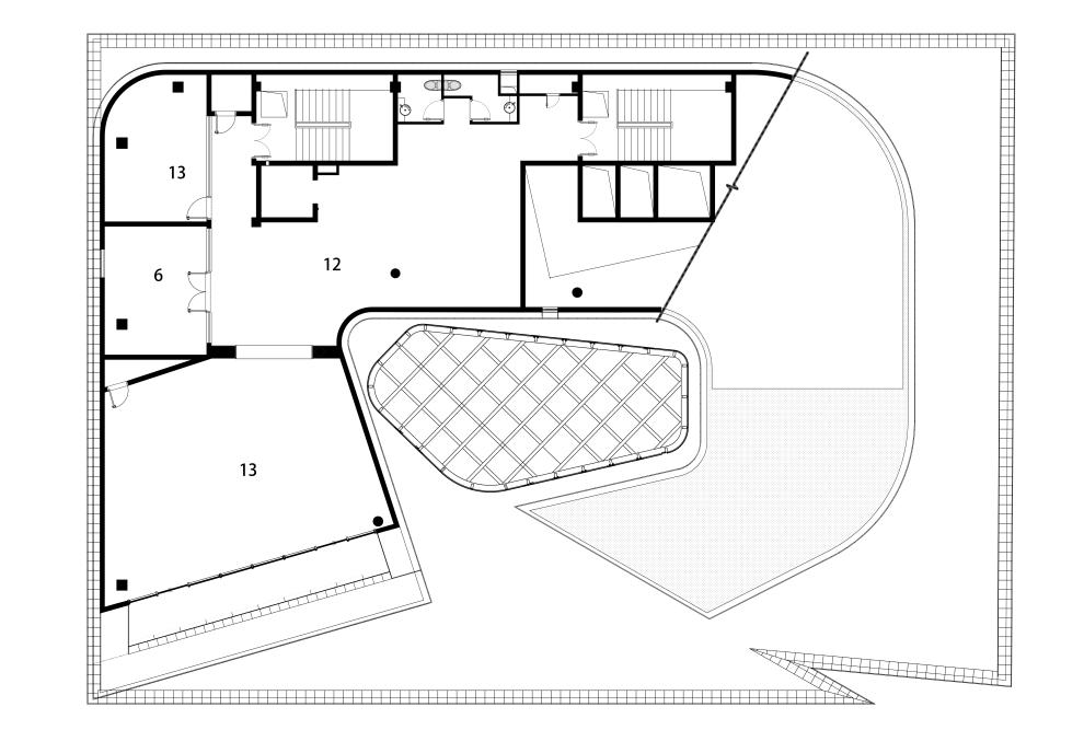
技术图纸
_

◎总平面图

◎首层平面图

◎二层平面图

◎三层平面图

◎顶层平面图

◎南立面图

◎西立面图

◎东立面图

◎北立面图

◎剖面图
工程档案
项目名称丨华侨城滁州·欢乐明湖体验中心
项目位置丨滁州市南谯区滁州大道
业主单位丨华侨城滁州
设计单位丨上海日清建筑设计有限公司
项目总 负责丨宋照青
项目负责人丨陈斌 鲁健
设计团队丨林静滨 狄中华 车喜刚 柯菲
甲方设计团队丨郝东旭 潘力 张勇 黄志成
施工图设计丨同济大学建筑设计研究院(集团)有限公司
施工图团队丨建筑:张镇 王丽莉 结构:杨晖柱 朱丙虎 李韵竹
现场管理丨李冬冬 唐旭 张圆圆
景观设计丨上海骏地建筑设计事务所股份有限公司
幕墙单位丨上海中原雄狮企业发展集团有限公司
室内设计丨苏州金螳螂建筑装饰股份有限公司上海设计公司
建筑面积丨3864.5m²
建成时间丨2020年7月
建筑摄影丨是然建筑摄影 Schran Image
#沈阳建筑大学# #滁州# #建筑#