如果说最能代表现在农村人生活水平的一件东西是什么?那肯定是房子。
诚然,现在的农村房,都是高楼小院,有条件的盖个别墅都不足为奇。在我们陕西那边,大家都从窑洞土院搬到了城市生活,有的人也会在村里盖一栋新房出来。
我父母就是这样,拆掉了自己的老家,建了一栋大气的三层农村住宅。挑空客厅+旋转楼梯的设计在村里很是惹眼。

房子占地13X14.1米,占地面积183.8㎡,建筑面积419㎡。
简欧的风格设计,用真石漆+文化石来进行装饰,三层设计满足家里人的居住需求。
而且这个卧室有五个房间,父母跟我还是我的孩子都有地方住。

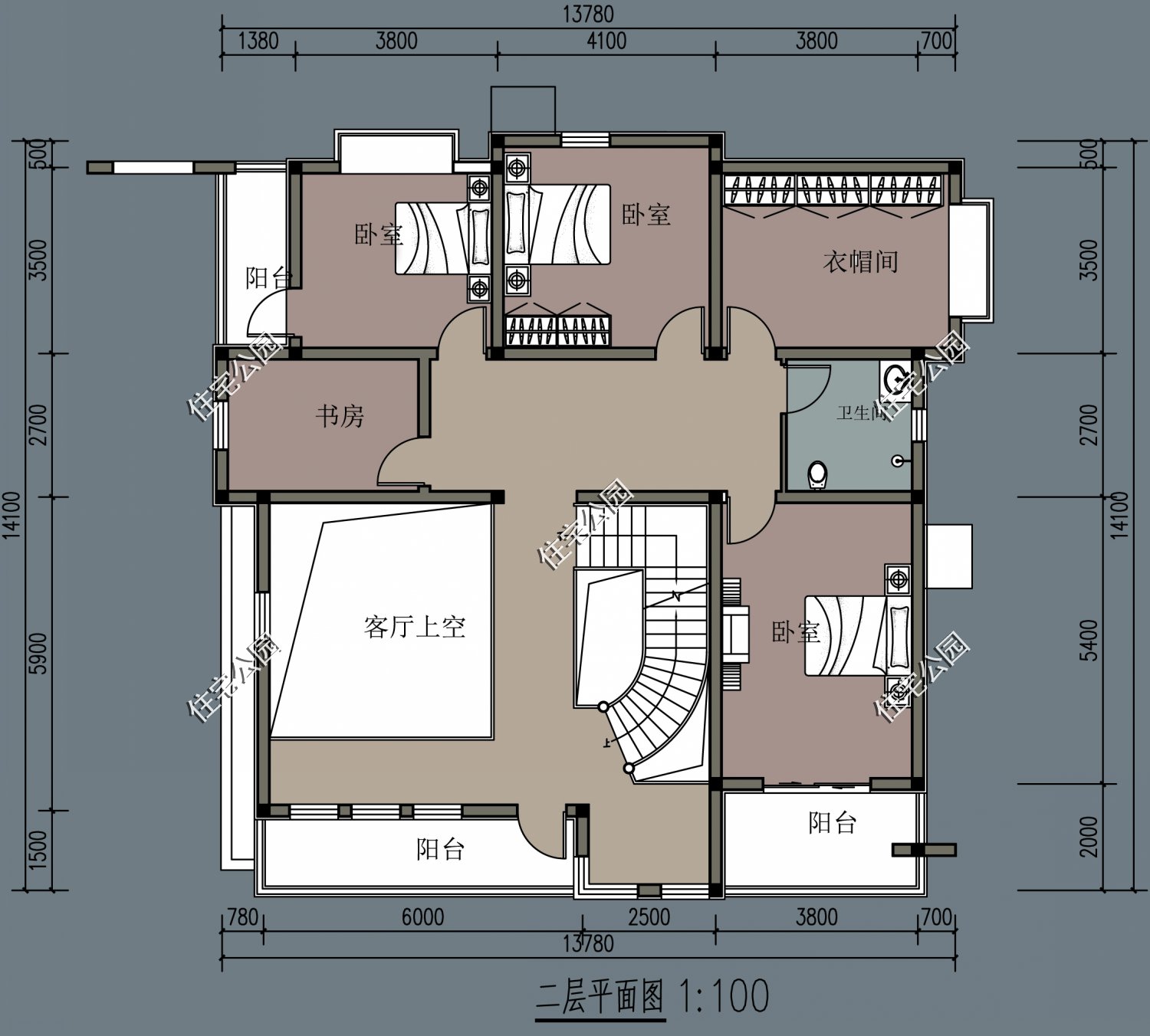
平面布局图:
旋转楼梯与挑空客厅的设计,让这栋房子愈发显得美观又大气。
细心的朋友可能会发现,这栋房子有着三个 入户门,可以保证父母的出行便利,直接从侧院即可进入室内空间。

二层自然是重要的居住空间,这套户型在二层一共设计了三间卧室。
大主卧位于房屋的南面,带一个阳台,舒适生活很是贴心。
另外两间小卧室设计在一起,提升居住舒适度。

三层是一个休闲空间,露台分隔成了三个部分,露台花园、晾晒、休闲,极大的丰富了日常起居生活。

大家觉得这套户型如何呢?关注住宅公园,1000套农村自建房户型图欣赏。