本案例为郑州林溪湾220平装修效果,本户型是户主对整个空间的风格进行了相互融合,相互搭配。设计师以港式风以硬朗的线条将整个空间加上空间上不同的装饰设计,打造不一样的生活环境。

一楼楼梯设计
利用有利的空间将楼梯设计在空闲区域,不占用空间。
【装修方式】:基础装修
【项目名称】:林溪湾
【建筑面积】:220平
【装修风格】:混搭
河南(安阳、新乡、洛阳、南阳、许昌、濮阳、鹤壁、焦作、驻马店、漯河、平顶山)北京、上海(浦东、浦西)浙江杭州,安徽、江门、济南

客厅
将不同风格融入到一起,形成了不一样的生活方式。

客厅

餐厅

餐厅

男孩房

男孩空间


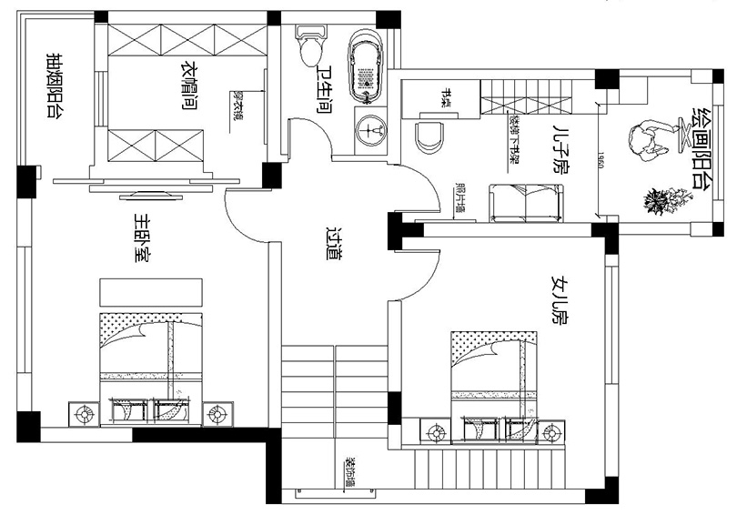
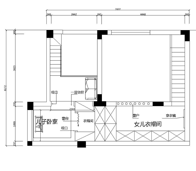
平面户型图

平面户型图

女儿房

卧室
--------------温馨提示---------------
▲可免费验房,量房,做平面布局方案出报价
▲更多装修咨询请点击小编头像屏幕下方有报名方式,或者查看置顶文章添加小编咨询,谢谢!
电脑端复制链接添加装修预约:
http://www.jsform.com/web/formview/5913d1c4e7aea938dd06d37a