
墨尔本锌盒子住宅
Stacked zinc boxes form multi-generational house in Melbourne
由专筑网邵红佳,小R编译
澳大利亚建筑师Matt Gibson在墨尔本的某个狭窄地块,设计了一座可供多代人居住的住宅,该住宅由一系列镀锌盒子堆叠而成。
建筑师说,目前在澳大利亚,多代人同居的生活方式越来越流行。据此,他在Wellington的狭长地块上设计了这座建筑。
Australian architect Matt Gibson has created a multi-generational home from a stack of zinc-clad boxes on a narrow infill site in Melbourne.
According to the architect multi-generational living, which is becoming increasingly prevalent in Australia, lent itself to the thin site on Wellington Street.

盒子不规则地堆叠起来,并在竖直方向上分割,以适应多代家庭。
住宅北部是宅间道路,南面有一条繁忙的高速路,他试图寻求一种方法,使得住宅能够最大程度拥抱阳光和户外环境,同时尽量减少噪音和外部视线的干扰。
The irregularly stacked boxes that form the house allow it to be segmented vertically to cater to different generations of the family.
With a residential street to the north and a busy freeway to the south, Gibson sought to maximise a connection with sunlight and the outdoors while minimising any acoustic disruption or overlooking.

南立面的阶梯状盒子遮挡了邻居的视线,同时满足照明的需求。
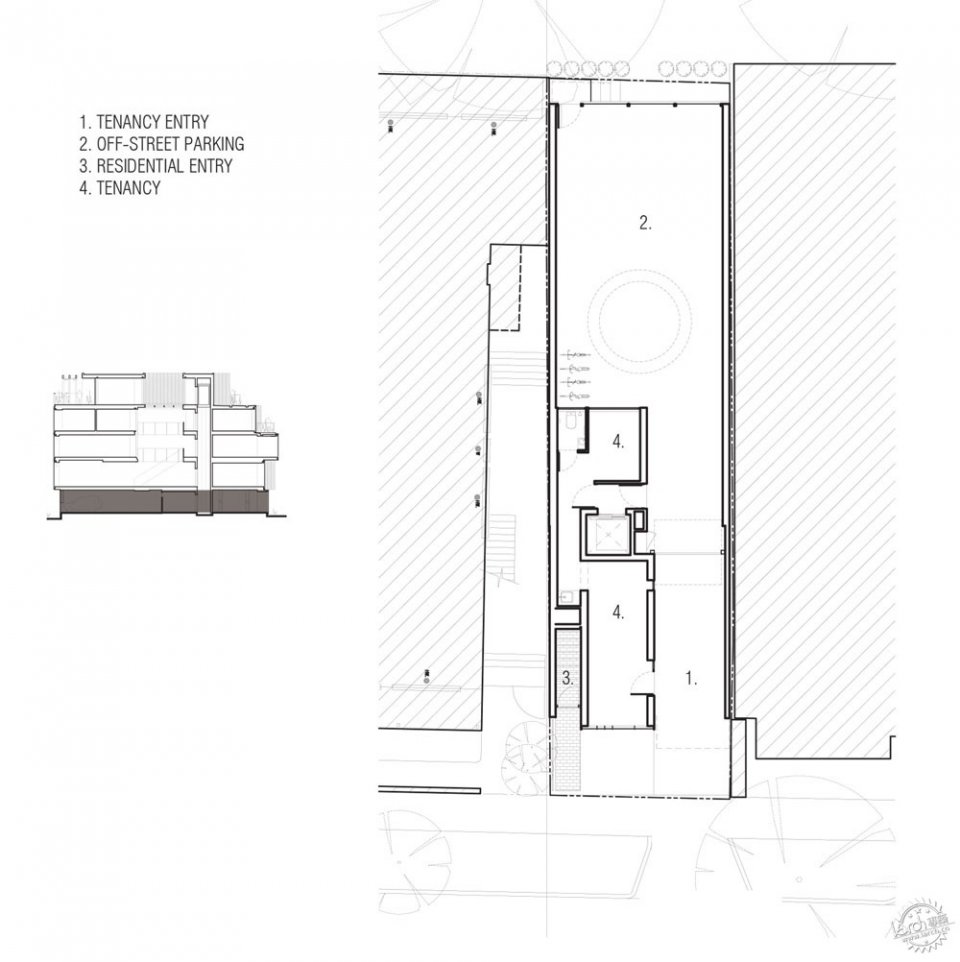
由于场地为商业用地,因此建筑至少有一层能够用作商业。
The stepped arrangement of boxes on the southern facade responds to the neighbour's views and lighting requirements.
Due to the zoning regulations of the site, Gibson was required to create a building that would be used for business purposes on at least one level.

因此,Wellington街的这座房子在地面层有着商业空间,上面四层为住宅。
这个商业单元位于共享车库旁。共享车库和商业单元采取了单独入口,使之与北边的街道产生更紧密的连接。
So the house on Wellington Street has a commercial space at ground level with four floors of residential arranged above.
The commercial unit sits alongside a shared garage. Separate entrances to the shared garage and commercial unit are designed to generate a greater connection with the street to the north.



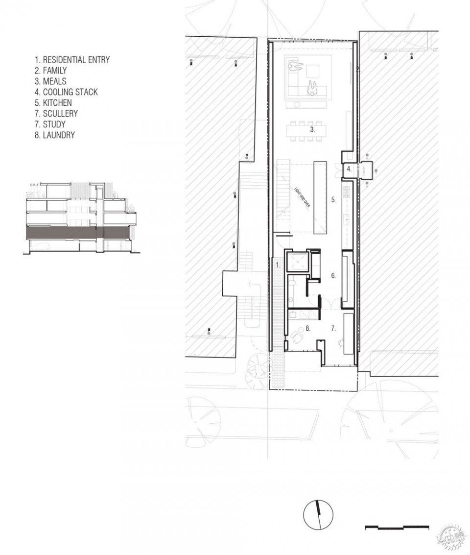
建筑旁边保留了一条现有的红砖墙,形成了一条通往二楼住宅区的楼梯的狭长小巷。
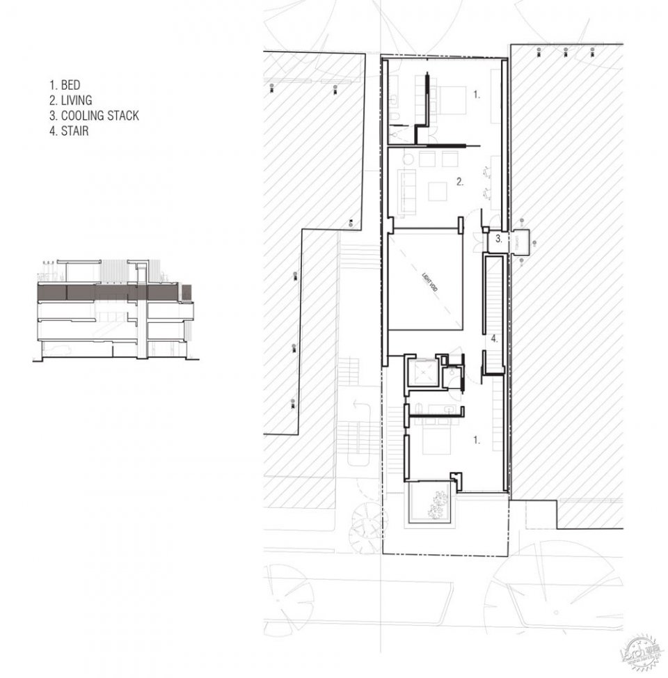
二层到四层有三个明确的公共空间,客厅、餐厅、私人卧室、以及休息空间,它们都设置在不同的盒子里。
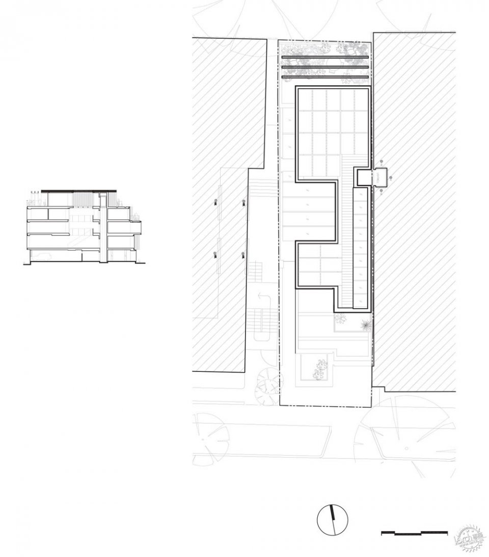
三楼和四楼的屋顶露台是一个可以欣赏城市美景的休闲场所。
A strip of existing redbrick wall alongside the building has been retained, creating a slim alleyway leading to a stair up to the first floor residential areas.
The first to third storeys have three clearly defined zones. The communal spaces such as the living and dining room, the private bedroom spaces, and finally the "retreat" spaces are all arranged inside different boxes.
Roof terraces on the second and third floor provide outdoor places to relax with views over the city.


在平面的中心有着中庭,将光线引入所有的起居空间,并在各个水平面之间构成视觉连接。
它像一个通风的冷却塔,中庭的上方安装了机械遮光罩,能够在夏天遮挡烈日的直射。
An atrium at the centre of the plan brings light into all of the living spaces, and gives a visual connection between the house's levels.
It doubles as a cooling stack for ventilation, and mechanical shades have been installed above this atrium so protect it when the sun is at its highest during summer

Matt Gibson于2003年创立了他的公司。之前的项目包括墨尔本的某扩建项目,该项目的特点是有着编织钢丝网窗帘,以及一座受巴西现代主义启发的墨尔本郊区的混凝土和石头住宅。
图片版权:Matt Gibson
Matt Gibson founded his practice in 2003. Previous projects include a house extension in Melbourne featuring a woven steel-mesh curtain, and a concrete and stone home in Melbourne's suburbs inspired by Brazilian Modernism.
Photography is courtesy of Matt Gibson.






