前言
本案为美式风四层别墅大宅,女业主在外企工作,颇爱美式风范的现代家居,初期与设计师沟通时不难发现,她对美式风格的设计方式格外动容,设计师根据业主的整体需求,将房屋风格定义为美式,居室色彩主调为米色,室内家具多采用古典弯腿式,家具、门、窗漆成色和谐统一,表现出华美、富丽、浪漫的家居气氛。

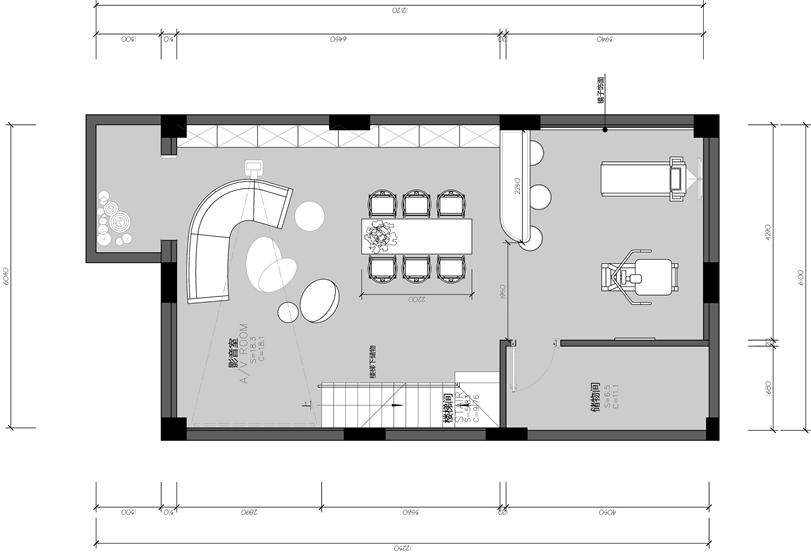
(负层户型图)
负层设有影音室、会议区、健身区和储物间,空间面积宽敞,动线流畅。

负层空间以米色为主,营造出的静宁舒适观感气质,墙面融入艺术画场景后,置身空间中身心能得到放松。

木质元素自带简约而高级的禅意气质,茶桌椅与背景柜体选择统一的材质,在色调比例与线条交织中形成独特的视觉观感。

(一层户型图)
入户设有玄关,增加了空间的独立性,客餐一体化设计,开放式厨房开阔了视野。

厨房、餐厅和客厅处于一条直线,背景选择高级而温馨的米色调打造,石膏线勾勒出优雅的气息。

设计师着力构建人与空间的自然对话,在静谧且富有优雅质感的雅居中,不同材质的家具相融,呈现出独有的美式韵味。

餐厅中部采用挑空设计,在视觉上呈现出纵向维度的开阔感,增加了空间的情绪张力。

客厅配色简雅美观,整体以米白色为主,营造出自然休闲的观感氛围,软装的点缀带来无与伦比的居住体验。

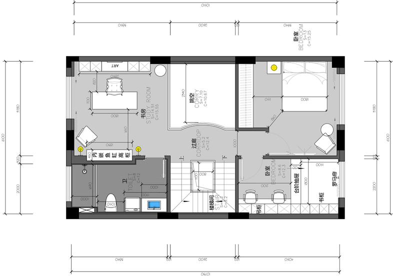
(二层户型图)
二层楼为主要休息区,设有书房、卫生间和卧室,功能区面积宽敞,居住舒适。

白色、木色与浅米色形成空间立面,美式元素灵动地呈现出卓越的空间格调,呈现出美式卧室应有的豁达气质。

卧室运用多层次榻榻米一体柜设计,高低错落之间,丰富了整体的设计感与美学呈现。

厨房开阔,木质元素的大量应用呈现出休闲的美式格调,书桌椅呈现出庄重感与仪式感。

卫浴空间引光入室,呈现通透明亮的质感,洗手台设计层次分明,还特意留出洗衣机位,营造出浓郁的生活氛围。

(三层户型图)
三楼功能区较多,除了两个卧室外,还在过道处增加了阅读区,提升了过道的功能性。

吊顶造型大气,保证空间的整体感,背景墙对称设计,大气档次,形成了强大的视觉平衡。

浅蓝色背景墙彰显出美式的优雅精神,令空间立面具有较高的颜值,视野也更加通透,配以米白色床品,空间充满艺术格调。

背景墙设计气质出众,搭配丝绒质感的沙发座椅,在光影的变化下呈现出美式休闲的内在蕴涵。

卫浴空间采用简练内敛的设计语言,以灰白为主,呈现出温润与高级的空间观感,在光影的调和下,格外雅致静谧。
本案设计师简介
首席设计师:王威
从业年限:8年
擅长风格:现代,简美,新中式
擅长类型:别墅,平层,户型改造
设计见解:用有限的空间,做无限的设计,成就梦想之家。
成功项目楼盘:
北京市朝阳区——融科橄榄城
北京市昌平区——碧水庄园
北京市昌平区——保利垄上
北京市通州区——格拉斯小镇
廊坊市永清县——林栖颐园
廊坊市永清县——森林新都孔雀城
天津市武清区——凤河孔雀城
天津市武清区——世侨唐墅