现在农村家家户户都建起了新房子,但是有的地方宅基地有限制,如果家里人多的话可以往高了建,毕竟户型小在建的低住起来会显得很拥挤,所以今天就给大家推荐三款四层小户型普通楼房设计图,虽然占地不大但是功能非常齐全,非常适合大家庭建造,住起来也舒适,要建房的朋友可以收藏。
第一款:农村四层别墅设计图,占地80平米左右,户型简单实用
图纸介绍:这款四层别墅占地80平米左右,外观美观大气,户型简单实用,室内布局合理,功能齐全,二三层布局一样,四层带一个储藏间,可以存放杂物,大露台方便晾晒。
占地面积:10.6m*7.6m,80平方米左右;
建筑层高:四层;
建筑高度:13.8米(含屋顶);
设计功能:
一层户型展示:客厅、厨房、餐厅、卧室、卫生间;
二层户型展示:客厅、卧室×3、卫生间;
三层户型展示:客厅、卧室×3、卫生间(同二层一样);
四层户型展示:卧室(带卫生间)、储藏间、露台;




四层别墅设计图
第二款:农村四层自建别墅设计图,占地90平米左右,小户型设计
图纸介绍:本户型占地90平方米左右,户型简单造价低,外观温馨,居住起来十分舒适。多窗多柱的设计,营造了满满的欧式浪漫气息。一层餐厅与厨房相连,干净卫生;客厅宽敞,可供家人放松休息。二层设有3间卧室,大小合理;阳台和客厅相连,光线充足;三层卧室设置充裕;四层大露台宽敞,可以打造成空中花园、露台烧烤等。
占地面积:9.35m*10.62m,92.17平方米左右;
建筑层高:四层;
建筑高度:15.836米(含屋顶);
设计功能:
一层户型:客厅、厨房、餐厅、茶室、卧室、卫生间;
二层户型:客厅、卧室(带卫生间)、卧室x2、卫生间、阳台;
三层户型:卧室(带卫生间)、卧室x3、卫生间、阳台;
四层户型:健身房、多功能区、卫生间、露台、阳台;





四层别墅设计图
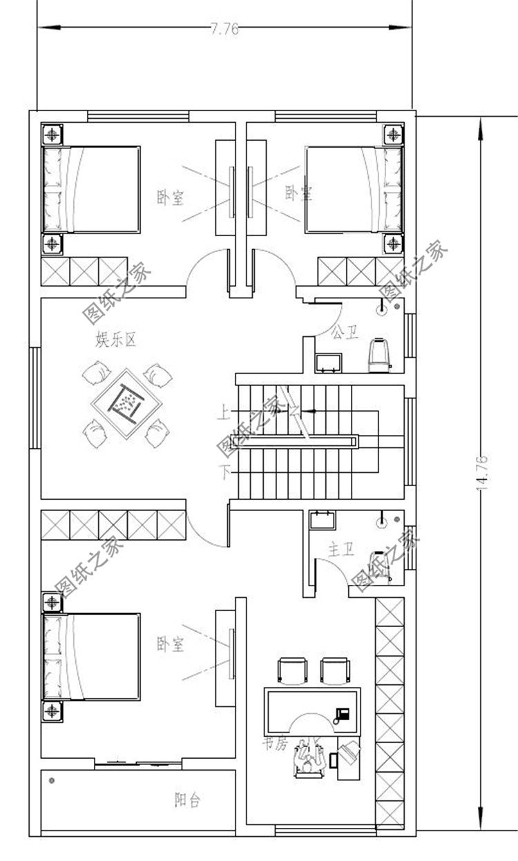
第三款:农村两开间四层别墅设计图,占地109平米,小面宽设计
图纸介绍:本户型占地109平米,小面宽平屋顶别墅设计,简约现代风,配色古朴淡雅,还有大面积的玻璃落地窗。入户平台进入即为客厅,客厅面积较为充足,方便接待来访客人或朋友,二三层主要以生活居住为主要功能,四层设有水池和露台,极大的装点并美化了别墅。
占地面积:7.76m*14.76m,109.29平方米左右;
建筑层高:四层;
建筑高度:13.8米(含屋顶);
设计功能:
一层户型:客厅、厨房、餐厅、卧室x2、卫生间;
二层户型:娱乐区、卧室(带书房、卫生间)、卧室x2、卫生间、阳台;
三层户型:娱乐区、卧室(带书房、卫生间)、卧室x2、卫生间、阳台;
四层户型:娱乐区、卧室x2、卫生间、露台、水池;





四层别墅设计图
喜欢这三款户型的朋友可以收藏,等到建房的时候可以参考。本文由图纸之家官网原创,欢迎关注,带你一起长知识!