三室婚房,虽然空间挺大,但是不喜欢太过于深沉的颜色,想要空间清爽干净,所以采用马卡龙色系,这样装修的各种家具配饰成本也能相对低一点。

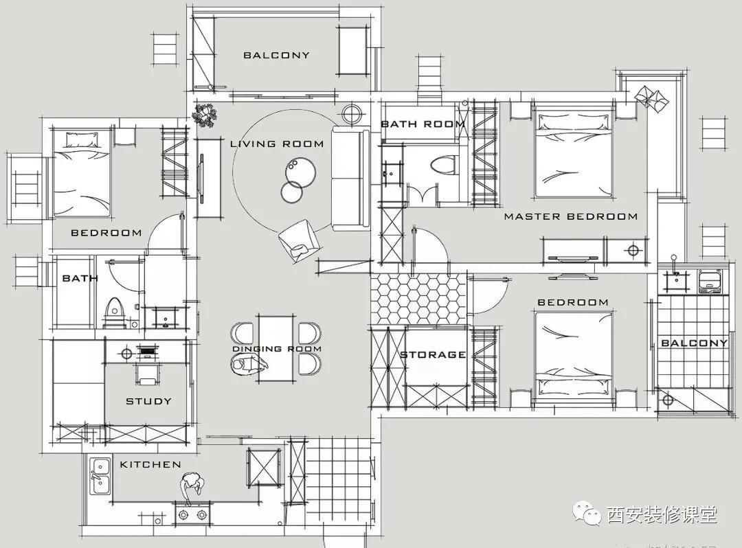
▲其实格局非常方正几乎没有什么太大的改造地方,唯一移动的就是进门厨房墙体,满足了鞋柜的收纳,其他几乎都是原始状态,满足了几乎所有功能

▲移动厨房墙体实现的进门收纳,白色浅造型,满足进门鞋子以及随手置物即可

▲移动墙体实现鞋柜的镶嵌,同时实现门厅的空间最大化,墙面大面积蓝色系布局,厨房一面墙采用黑板漆与亮黄色谷仓门搭配,非常跳跃有质感;厨房隔壁是小书房空间,玻璃通透移门满足光线和视觉的开阔

▲白色与木质结合的餐桌,搭配马卡龙色系的餐椅,视觉非常生动有活力

▲原有衣帽间位置利用空间打造朝向餐厅的收纳,满足餐边柜功能,同时和鞋柜呼应,镶嵌处理,可以保证空间更开阔,同时视觉上不会产生凌乱压抑感

▲过道空间收纳展示柜与挂画搭配,视觉非常清新,同时挂画的粉色与蓝色同时与空间完美呼应

▲原有沙发区域放置了铁艺的镂空置物架,一是为了方便放书和装饰品,最重要的是作为进门沙发的遮挡使用,小年轻还是老一辈的做法,感觉没有遮挡心里不舒服

▲电视墙采用仿文化石的石膏造型,局部铺贴加上灵活的造型处理,非常清新,同时又能保证空间的层次感

▲灰色的布艺沙发搭配粉色的单椅,同时灰色与亮黄色铁艺圆几搭配,每一个颜色都有相互呼应点;黑色极简装饰画与落地灯同时与铁艺的置物架完美呼应,颜色多但不会显得凌乱

▲整体清新不会显得呆板和厚重,透过阳台纱帘,整体更温馨有活力

▲客厅全景,大面积浅色,马卡龙色系始终让空间更显年轻,更有活力

▲主卧空间延续清新风格,大面积白色系,背景采用乳胶漆拼色搭配,提升视觉活力;超大的L型飘窗光线一览无余,可以弥补空间小的遗憾

▲次卧颜色没有那么杂乱,主要是考虑到老人居住,所以基本以木色和灰色为主,视觉上能稳重一点

▲这是餐厅跟前的书房空间,布局了收纳以及简单的书桌,靠窗做了卡座休闲布局,颜色还是延续整体风格

▲打开谷仓门就是厨房空间,采用经典的小白砖搭配白色浅造型橱柜,深黑色的台面,非常有层次感

▲客卫干区半截墙瓷砖搭配灰蓝色乳胶漆,白色浴柜定制,黑色的颜值镜子与毛巾架一体,同样清新美观

▲主卫空间灰色瓷砖,局部花砖点缀,玻璃隔断分区布局,满足基本功能
原创专辑目录,不断更新12.29