
项目名称:浙江大学医学院附属口腔医院(浙江大学口腔医学中心)
建设单位:浙江大学医学院附属口腔医院
建设规模:51649平方米
设计时间:2015年
落成时间:2020年
由我院原创设计的浙江大学医学院附属口腔医院(浙江大学口腔医学中心)扩建工程项目,自2015年设计中标,历时5年,于2020年12月19日正式启用。全国人大常委、浙江省人大常委会副主任姒健敏,浙江省人民政府副省长成岳冲,中国科学院院士、浙江大学校长吴朝晖,中国科学院院士王松灵等领导、专家共同出席了当日举行的“浙大口腔医院建院四十周年学术报告会暨新院区启用仪式”。我院*党**委书记、院长张金星受邀出席此次启用活动。


项目概况
浙江大学医学院附属口腔医院(浙江大学口腔医学中心)扩建工程项目基地地处杭州市区核心地段,定位为集医疗、预防、教学、科研、保健为一体的国内一流三级甲等大型口腔专科医院。医院总用地面积8787平方米,设计总建筑面积51649平方米,其中地上30754平方米,地下20895平方米,设计牙椅330张,病床床位数98床。

沿秋涛路透视效果图

沿昙花庵路实景照片

夜景照片
受地形与容积率压力的控制,本案建筑体量顺应基地沿南北向呈矩形体量布置。一方面,严格控制与东侧现有建筑的间距,从而尽可能的减小新建筑体量对现有社区空间的压迫,另一方面,在满足相同面积需求的前提下,拉伸长度以控制总体高度,保证东侧住宅建筑的日照需求。

容量测试
形态处理上,在有限的空间内,我们使北侧的高层部分与南侧的低层部分向西扭动。为北侧的高层与现有住宅之间获得更大间距,留出阳光射入的空间;而南侧低层的扭动则在东面道路与建筑体量间退让出充裕的入口空间。面对高架,这样的扭动带来立面富有韵律的变化,为运动中的车流提供了有趣而律动的界面。


形体空间关系

鸟瞰效果图
由于地形方向限制,本案的空间布局以东西向房间为主,为更好的应对地域日照特点给建筑内部空间带来的不利影响,我们采用了整体竖向遮阳板,也成为本案标志性的外立面特征,简洁、大气,并且配合建筑形体的错动,随着观察者时间、位置的改变而使建筑立面产生流动性的光影变化,正是这样的流动界面,体现出口腔医院时尚创新的一面。而单元内的横向遮阳,既能防止东西侧光照产生的眩光与夏季热辐射,也可以有效的减少高架车流噪音对室内的干扰。

立面细节肌理
配合流动的形体变化,立面竖向遮阳构件采用纯洁的白色与蓝色渐变相结合的效果,蓝色,取自大气而富有底蕴的传统口腔医院院标色彩意向,象征传承、严谨与沉稳。洁白,取自医院洁净、健康的色彩意向,富有未来感的白色流动界面,象征着口腔医院先进时尚的专业形象。蓝色与白色的自然融合,正体现出浙江大学附属口腔医院的专业性与现代性。

立面细节肌理

构造节点模型
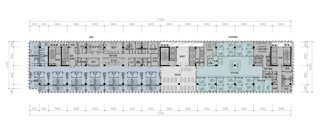
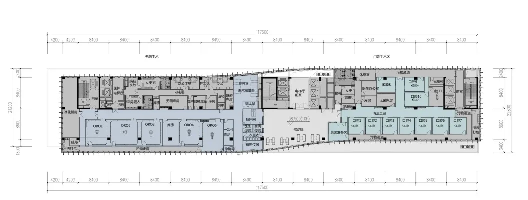
本案在平面功能排布与竖向功能分区两方面都做了研究与布置,门诊大厅、医技功能,各就诊科室、住院病房以及行政科研单元都合理分区。门诊主通道环境舒适,通道内就近设有就诊客梯、楼梯等垂直交通。医护工作区则与专门的医护电梯相接,此外,还设有独立的物梯和行政员工梯,患者和医生只有在诊疗空间内才会有面对面的接触。病房层员工区和病房区分区明确,通道相互独立并分设有公共电梯和员工电梯。医患通道的相互独立大大提高了员工的工作效率,也保证了公共空间舒适整洁的环境。

电梯厅实景

病房走道实景

候诊区实景
我们选择自然的形体流动,明快的色彩变化,既和谐回应了场地周边的各项设计条件,也体现了项目本身的建筑形态需求。我们创造简洁的功能布局,清晰的流线区分,既提供了便利的日常就诊环境,也创造了人性的医护工作环境。

总平面示意

首层平面图

标准诊室楼层平面图

标准病房楼层平面图

手术楼层平面图

行政楼层平面图