设计理念
本案属简洁明了的北欧风格!用比较冷静的黑白灰诠释,添加了些许暖色调的原木色调和,给人以简洁舒适,脱离繁琐的生活节奏,使身心更舒畅。
装修方式:半包+个性化
装修风格:北欧风格
小区户型:三室两厅
建筑面积:143平
小区位置:驻马店世纪景苑
详情咨询:私信

玄关

沙发背景墙

客餐厅

电视背景墙

餐厅

主卧

次卧

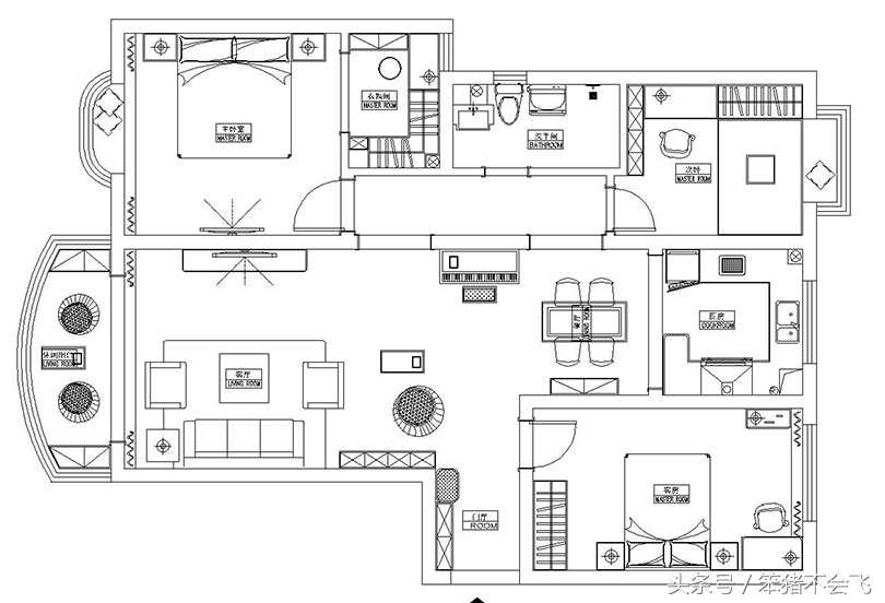
户型布局方案

书房
服务范围:河南(郑州 新乡 安阳 南阳 鹤壁 焦作 )
如果您准备装修,可点开作者头像进入主页,点击正下方,“2个选项任选其一”即可直接预约设计师!
点开作者头像,观看置顶文章,底部加小编微信,免费讲装修。