昨晚,福州不动产更新了凯佳江南里剩余两栋住宅的备案,这两栋楼就是社区要求配建的限价商品房,后续预计也会上市,下面聊聊。
备案情况
两栋限价房,分别位于AB区,合计268套,无架空,均价1.9W。
5#:17层,136套,均价18412,公摊21%,一层8户,46,57平米
9#:17层,132套,均价19941,公摊19%,一层8户,46、56、67平米
分析:对于项目的限价房,均价1.9W左右,对比商品房2.7W的备案价,打7折,与之前土拍定位一致。
对于两栋限价房,A区的5号楼均价1.84W,不过只有两种户型,没有70左右的三人型,所以导致楼栋的公摊会更高。
B区的9号楼,均价1.99W,只有西端头是一人型,剩余就是两人、三人型,公摊相对更低一些。

房源情况
对于限价商品房,分成三个类别:50平的一人型、60平的二人型,70平的三人型。
5#:一人型68套,二人型68套
9#:一人型14套,二人型68套,三人型50套合计:一人型82套,二人型136套,三人型50套
分析:限价商品房,去年养云二期的选房情况,一人型做到热销,剩余的产品去化一般,作为对比。
养云二期:3栋530套,一人型106套、二人型159套、三人型265套
禹洲融信玺湾:3栋237套,一人型64套,二人型124套,三人型49套
通过之前的项目分布情况,可以看出,每个项目的房源配比都有所不同,这次项目的配比与同样位于江南CBD板块的玺湾比较接近,二人型52%,一人型30%,三人型18%。
由于去年人才房的规则有所变更,取消了家庭人口对应购买户型面积, 所以面对三种类型的房源,都可以选择 ,从目前的机制来看,这样的配比定位,也挺符合一些特殊的购房需求。
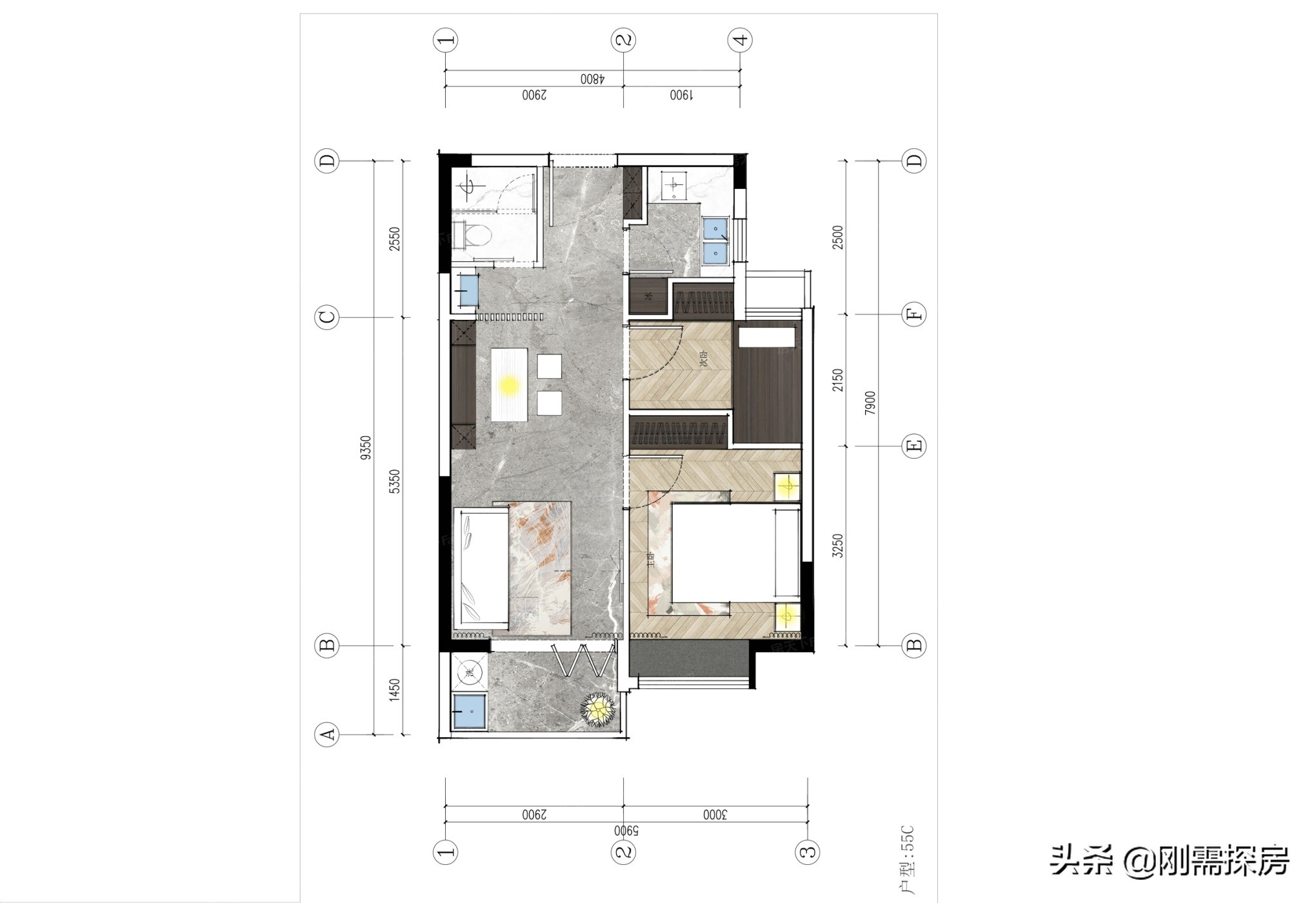
户型情况
45平米:一房一厅一卫,这次分成了三种户型,两种布局,其中5号楼端头缩短进深,与此前的养云人才房等不同,剩余两种依然采用大进深的布局,算是比较常见的单身公寓。

55平米:两房一厅一卫,双开间朝南布局,缺点在于卫生间是暗卫,其中一房偏小,整体的布局也算不错。

65平米:两房一厅一卫,55的升级版,卫生间有了采光,与养云人才房布局基本一样。

价格分析
选5号楼做个楼层差价对比:
1层:落地一层,单价最低,但是跟2层价格持平,不建议
2层:单价不变,有一定特色,但是并不优
3层:贵827-1827,差价波动层,其中02单元波动最大,选择来说不建议
4层:差价0,敏感数字层,没有优惠,不建议
5层:贵1000,差价波动层,把全部差价都吃了,不建议
6-16层:层差100,层差不大,建议选高层
17层:优惠900,顶楼,优惠力度中规中矩

分析:对于这次的楼层差价,对比养云二期人才房,差价更大,5层的差价已经1800-2800,对比养云当时5层的差价1100-2400,后面的楼层的都是层差100,可以说高楼层的价格优势不如养云二期。
当然如果对比项目自身的商品房,6层的位置,差价3500,后面楼层都是层差250,人才房高楼层优势更大。
对于这样的限价房,虽然楼层差价不算最优,但是选择来说,很明显还是建议选高层。
对于楼层单元选择,一人型的户型,由于户型差异,端头比隔壁02单元还便宜,对于购房者而言,可以评估实际楼栋布局再做选择。
特殊情况
在分析房源的价格时候,发现了特殊情况,位于5号楼次顶楼的1608单元,单价10690,从价格分布来看,应该是19690,不懂是否是系统出错。

对于这次的楼栋端头和中户,5号楼端头是一人型,不过从备案价来看,同楼层里面02单元反而单价最高,户型的差异,造就价格差异,也是一次特殊情况。

盘点总结
对于限价商品房,从玺湾开始的热销,到去年养云二期精装2.66W,出现了一定分化,后来官方修改了人才房的规则,其中户型的选择只针对2022年的商品房,可以说江南里这次人才房就是新规则下的产物。
回顾新规变化: 取消按家庭人口对应购买户型面积,10年改成5年不得上市交易,取消购买商品房的约束。
这样一系列的调整,可以说人才房一定程度变成了投资房,从之前两个项目的去化来看,其实就已经有不少是投资购房,只不过在新规之下,投资的限制放宽,预计项目的去化会有所改善。
对于限价房的出现,目前最大的竞品,就是同板块的建总领筑,南地块主打小户型,宣称2.7W左右,如果仅仅是自住需求,从选择来说,江南里明显优势更明显。
后续预计会公布相关限价商品房的整体情况,有意向的购房者可以保持关注。