【 前言 】
不知不觉住进新屋已经5个月了,从当初因为宝贝女儿的出生萌生买一所稍大些的房子,到整整9个月的装修经历,仿佛就像是昨天。来看看买房并装修的源动力吧……
宝贝女儿~

比起装修过程中的各种烦心事儿,装修对于我来说,心情更多是兴奋、探索、乐趣、成就感。经过了这么一轮装修,爱上了重塑自己喜欢的生活,喜欢倒腾,喜欢不断的寻觅高性价比的东西。
如果你已经厌倦了千篇一律的设计,如果你也对北欧情有独钟,如果你也想打造不一样的家,那就和我一样行动吧。
先来介绍下我新房的情况
房子位置:上海市松江区奥林匹克花园
房型:136㎡三房两厅
装修花费总时长:9个月
装修花费总金额:50万

【 设计方案的需求 】
北欧的装修风格是自己喜爱的,相信更会是未来3-5年的主流。但是北欧风格的“简洁”对这套同时要容纳3代人,常驻人口4人的房子来说,在实用性上提出了很大的挑战。
4口人同住的生活需求是多样性的,需要兼顾:
1、楼楼需要更多的活动空间,之前的两房因为宝宝的出生,使得楼楼的活动空间只能在客厅沙发,有非常多的局限性;
2、我们都喜欢喝咖啡,而楼楼更喜欢做咖啡。所以一个可以兼顾做咖啡和小憩的区域是必要的;
3、楼楼酷爱电影和音乐,客厅有家庭影院,而书房需要可以未来兼顾放置胆机和书架箱的需要;
4、未来3-5年,老人和小孩住,要照顾两人的住宿和习惯,并具备一定扩充性。同时随着宝宝越来越大,大人也需要独立和私密性;
5、干区必须分离。次卫淋浴,主卫浴缸。主卫必须要双台盆(楼楼和妍早上需要同时起床洗漱);
6、大量的储物空间,越多越好,有了孩子东西太多了。楼楼有点强迫症,看得见的地方不能有太多杂物,最好尽量能塞到柜子里;
看到这么多需求,是不是有点晕(楼楼回看当时日记的时候,发觉给设计师发了一份多达近20条需求的邮件)。多亏了叶大师帮我完成了全部布局的规划和动线的设计。经过与设计师周密的探讨,和装修过程中的因地制宜,才拥有了让全家人满意的调性和实用性。
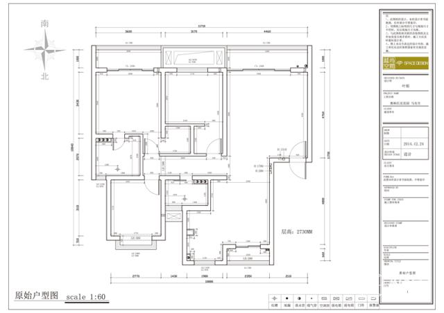
【 户型图前后对比 】
改造前原始户型图

重新规划后的户型图

不难看出重新规划后的户型,几乎是把所有能够用到的空间都用上了,设计师在设计上兼顾了实用性和动线。
改动的重点如下:
1、厨房和餐厅位置的对调。之前餐厅旁的工作阳台是个鸡肋,既无法晾衣服,又不能储物。所以将厨房整个搬到此处,不仅厨房的采光很好,同时与西厨的动线一气呵成。而卡座餐厅,设定了储物的功能。用餐和平时小憩的舒适性都兼顾了;
2、走廊变干区,小孩和老人的动线合理,曲径通幽更节能,缩小的次卫反倒为西厨区域腾出来一个足够大的冰箱位置。这点非常佩服设计师的大胆实践;
3、原本的主卧、主卫和书房变成了一个完整的套房,给楼楼和妍一个相对独立的生活空间;
4、大量的储物空间,分布在全屋的各个地方,确保了储物的功能性。与各区域自然的融合又不会让你不会感觉到储物柜的堆砌感;
整套房子有太多太多的细节,楼楼从进门开始挑重点的来说说吧。
【 客厅 · 篇 】

“大黑门”,这是挣扎出来的产物。原因在于外面几千块的所谓品牌防盗门,简直丑到爆,样子太老气。内部填充用的是钢蜂窝纸,用手敲起来声音是“空”的,处处透露出老派和廉价感。外貌协会的我怎能忍受。
而进口的日本门,价格只适合土豪。当时真是把我给逼疯了,最后偶然发现了其他人用防火门做入户门,于是顺着轨迹寻觅工厂,经过跟防盗门厂家很多次的探讨才出来了现在效果的门,防盗门厂也差点被我逼疯了。
现在的门板1.0厚度,门框1.2厚度,内部填充已经再也不是廉价的钢蜂窝纸,而是改用了隔音板+隔音棉的组合。楼楼喜欢看电影,家庭影院声音比较响,这也是做隔音防盗门的原因。现在的门很厚实,安装的时候师傅说大概有快100斤。
装修队长说这样的品质一般外面总归4000朝上。当然楼楼是坑子,仅仅用了一半的价格搞定了这扇酷酷的大门。

三星电子锁P718,最初看到还是在“来自星星的你”,黑银色的电子锁配黑门简直是绝配。这款电子锁市面上价格很乱,楼楼用了几乎是市场上最低的价格买下了这款锁。

传统的北欧风对储物的实用性来说是个极大的挑战。而有了宝宝之后的家就别指望东西会少。鉴于客厅的宽度有4.6米的,因此拿出来60公分,来做电视背景柜。侧面的鞋柜设计通过也满足了玄关的作用。
从左到右的柜子里,依次将被子、平时的外套、1个28寸旅行箱、2个24寸旅行箱,楼楼平时玩皮具的工具,戴森吸尘器、蓝光碟、平时的用的包全部填入这个大胃王里面。

墙上的白藤纯属妙手偶得。除了特别之外,喜欢它是因为我觉得她是生命的另一种延伸。原本已经干枯老死的藤蔓,现在好似一根绸带飘舞在空中,给生活增添一丝新生的活力。
落地台灯是“何以笙箫默”电视剧里的同款,换了LED的灯,可以调节明暗。
看过很多案例,发觉许多人不经意间容易将沙发挑选得特别大的,虽不至于说跟房子不和谐,但现实情况是减少了空间的通透性,所以楼楼选沙发自打一开始就没想着要买太大。
长住人口就4个人。很多人会说来人了怎么办?我想说千万不要为了一个特殊偶尔的场景去设计你的家,那只会毁了你的生活,房子更应该符合你常态化的生活场景和习惯。
而多出来的空间我更希望留给小朋友,可以在地板上看书、玩玩具、画画……

电视机用的乐视60寸,用了很棒的伸缩挂架,平时楼楼周末在吧台吃早餐,或是老妈跳郑多燕的时候,直接把电视机整个拉出来转向人在的位置便可。
设备台背后的插座加线孔共计12个。满足楼楼日常的影音需要,分别摆放了蓝光DVD、BOSE主机、BOSE中置、智能插座和智能摄像头(配合智能模块,当陌生人闯入即刻拍照并通过APP通知)

补一张幕布照片,120寸,其实压根儿不觉得大。之前老房子2.8米的观看距离84寸,一开始看觉得还挺大的,但是幕布这东西是越看越小。目前的观看距离3.8米,120寸只能说差不多,其实130寸我觉得也没什么大问题。
幕布性价比很高,之前一套房子的幕布也是这家买的,老板挺靠谱。新买的这个比之前电机的声音要小。
补充一个细节:幕布和投影的插座都要留一个开关在墙壁上,不用的时候可以直接关掉。否则设备一直通电对机器不好。

陪女儿一起看电视,就很幸福!看得如此入神……

家里面很喜欢的一个局部,非常符合北欧风格。比较推荐大家在实体店买画。当初在淘宝上找画都快找吐了,画风基本就是大同小异,实在无感。最后在上海画家一条街找到了这家“红墙”的画廊。作品非常多,有临摹也有原创,之前据说一直给设计师提供画作,画的独特性和丰富度都不错。这幅画除了打底的色彩外,表面用了干草铺面,很是特别,此画仅一副,独一无二。
进门的时候看到画总能很快速让心情从户外切换到家里的空间。

回头看下全景,为了实用性做的西厨,多少让中间的过道变窄了,让原本宽敞的客餐厅缺少了些通透感。但照顾到实用性也算是值了。装修房子嘛,楼楼的其中一个心得就是,要有舍有得,尽量前期考虑周全,后期学会妥协。
顺便强调一个细节,中空的风口一定要做整排,道理很简单,因为……“大气”,这是在装修之前楼楼特地看了很多酒店、朋友的精装房得出的结论,相对小出风口,整排的大风口更好。
来张平时宝宝在地上玩的照片吧,看到这个你就知道家里留出足够多的空间的好处了。

开画展喽,各种抽象派、印象派,有木有,有木有……
来个小细节,不知道大家如果买二手房是不是遇到过对讲机泛黄了,甚至很破旧,但是因为对讲机需要对码,自己根本没法在外面重新买个新的,剩下的是更多的无奈?
楼楼这样的颜值控对这种问题怎么能忍!上图!上图……当当当当~

大家能看得出我是重新自己喷得漆吗?是不是还挺有质感的。
当初的样子是这样:

看到了没,发到帖子我都觉得有点拉低我帖子的档次了。但估计小伙伴们只要买二手房的基本都会碰到这种“顽疾”。楼楼算是亲测成功,给大家贡献这种喷漆的方法,让旧貌换新颜啦!
你所需要的成本仅仅是1瓶喷漆10元+一卷美纹贴2元=12元完美搞定恶心的老旧门径对讲机!
【 西厨 · 篇 】
前面说到,当有了小孩子之后,发觉活动的场地就仅限于沙发了,所以一开始就跟设计师提出了需要更多活动空间的延伸,所以西厨和餐厅是比较有效的贯彻了这个目的。刚搬房子的时候楼楼邀请了十几个小伙伴,大家竟然能够在客厅、西厨、餐厅、书房分别找到自己喜欢的区域。在这点上,动线处理的我觉得还是不错的。

说说窄边移门吧,做过功课的人都知道进口德禄窄边移门是高颜值贵货。碍于2000多一平米的价格,楼楼是望而却步。心有不甘,于是楼楼又开始找各种替代方案。最后让我找到了一个厂,直接做出了现在这样的效果。窄边配灰玻,高大上,有木有……
有个小细节,顶部在做木工的时候就让木工留出了放移门U型槽的位置,所以整个U型槽都是在安装的时候嵌入吊顶内的。这样的目的是为了看不到上面的U型槽,保持窄边的完美度。当然坑子本性又再一次暴露了,楼楼用了几乎近十分之一的价格搞定了这套移门。性价比绝对秒杀德禄。

两个高柜当然是为了储物。左上角的高柜,把强电箱安置在内,弱电箱则放入左下角的柜体内。
买了鸿雁最大的一款弱电箱。
为了使得每个房间都覆盖WiFi,弱电箱的配置是:
光猫+小米路由+千兆网件交换机+POEWiFi供电模块 。然后每个房间楼楼都提前安装好了86型的WiFi面板。因此目前楼楼走到每个房间都是覆盖无线的。(等后头有机会楼楼再补张弱电箱内的设备照片)
网线全部6类,包括水晶头、网口模块全部都是6类的。以确保屋内千兆的带宽。

楼楼喜欢做意式咖啡,左侧台子上分别放着 德龙吐司机 德龙咖啡机 象印电热水壶。
凡是有朋友来,楼楼就开始展示咖啡大粟的技艺了。右侧就是水池,直饮水也装在这里。咖啡机接水,倒水,洗杯子非常方便。妍则喜欢在这里洗水果,切水果。

吧台左侧下方我有提前安排插座。笔记本上网或者手机充电在这里都很方便。当时在看施工图的时候,每一个区域都想得非常仔细,因此在插座的数量,种类,位置上没有任何遗憾。

反过来再来一张吧,西厨龙头是德淘高仪的,600块不到,白菜价,国内买估计1800朝上。

从西厨吧台这边反过来看,左侧的餐厅以前是厨房,现在是卡座式的餐厅。中间是大开门的BEKO冰箱。很多人可能不太清楚,其实BEKO是英国前三的家电品牌,真正的进口货。只是国内宣传做得不够,但东西的性价比绝对秒杀西门子、博世(国产机的价格买全进口货)
房屋条件如果允许,冰箱一定得买大的。全进口BEKO大开门冰箱,530升的容量只比大部分对开门少了20升,但是大开门在设计上减少了线条,整体性上个人认为更好,会显得很大气。欧洲这种款式用得很多。国内实际上一直被对开门*脑洗**,真正留意到大开门的人并不多。国内的品牌做大开门的更是几乎没有,按照店员的说法大开门因为单扇门的重量比一般的高,所以光铰链都是不同的。
店里打完折大概9000多,楼楼 找到了一个神秘的BEKO仓库,买的样机,白菜价5500搞定。要知道这可是土耳其原装进口的。

楼楼爱酒,但不嗜酒。9个酒洞,基本已经能够满足日常的需求了。而且酒洞的设计本身能够起到凹造型的作用。
【 中厨 · 篇 】
以前这里是工作阳台,一点都不实用。现在这样的重新改造更合理了。无敌的采光,老妈边洗菜边偶尔看看窗外,心情好烧菜都更好吃了。

再次看到窄边移门。房子之前是精装修的房子,在动线和储物功能上存在极大的缺陷,自己装修的好处就在于根据家人的习惯和动线来做设计。更人性化。
墙地面瓷砖来自九星市场的广东砖,品质很好,价格很实在。
个人的观点,不要盲从品牌砖,楼楼更愿意把钱省下来买其他家电。
楼楼实际使用下来之后,认为广东砖很好,不仅样式要比品牌砖的多,而且价格便宜。看我装修日记的小伙伴都知道我当时先去了“喜盈门”看品牌转,要么就是不好看,要么就是价格贵。最后叶银干脆说那我们去九星看看吧。之后楼楼家所有瓷砖全部九星搞定。叶银说自己其实也会选广东砖,因为差别仅仅是整块瓷砖的厚度匀称度而已,实际又不影响瓦工铺贴的咯。

灰色墙面用的是黑色太空铝锅盖架,对比度高,质感很好,而且黑配灰,个人觉得比不锈钢亮银配灰更好看。

无敌采光料理台
从左边开始,凹在里面的是威能锅炉,冬天用了2个月地暖,感觉还是很给力的,声音也比较轻,感觉动力十足。当然是团购的啦。
电饭煲,象印IH压力 NI-10 ,买的日本本土版的,配个变压器,从此吃到好米饭的。谁用谁知道。强调:不要买所谓海外版的电饭煲,那个是用来忽悠中国人的,在做工和配置上大大缩水。楼楼日亚买来加运费1700的样子,国内海外版要卖将近4000块,别做冤大头。
再来是德亚买的 WMF 的刀具,小贵。
摩恩抽拉龙头带水槽,性价比高,2050元拿下。下次如果再装修,或许会弄个花岗岩的水槽,为啥? 当然是因为 颜值高。

西门子睿致的无框开关,颜值高伐。
当然楼楼的坑子本性依然没变,如果全部用睿致必然很贵,况且楼楼家里那么多的开关和插座。因此根据攻略,开关都用睿致,而插座都用西门子的悦动。因为都是欧洲设计,所以在风格感觉上比较接近。关键是这样一来可以省下近5张毛爷爷。
【 餐厅 · 篇 】
卡座的实用性是强大,底部可以储物,而且因为靠窗,午后在这里上网,看书,喝茶都很惬意。
餐桌按照北欧表情定做的,原版1.3的直径,我改到1.15 。
楼楼在使用圆桌之后的感受是,圆桌的实用性更高。夹菜更方便,而长方形餐桌我用下来,往往桌面的3分之一是一直浪费不用的,而且占地方。目前餐厅极限7个人用餐,如果人再多就出去吃了,在家里烧7个人以上的菜工作量太大。
楼楼有自己的设计坚持,千万不要为了你生活中某一个偶尔发生的特殊场景去设计你的家,那会毁了你的生活,也造成不必要的浪费。
墙纸是德淘的,价格给力。

牛皮椅是去年在国际家居展接触到的广东设计公司。
事实证明漫长的等待是值得的:
1、这个椅子外面几乎买不到,连万能的TB都木有,至少去年那会儿没有;
2、中上公园的日本家居店只有一个款式是一样的,而且是皮革面料,我这个据说是牛皮;
3、设计公司后期据说会上官网,定价是我们买的2倍价格以上;
瞬间觉得占到便宜了,有没有

近距离再来一张餐厅,这个角度能够看到牛皮衣的走线,做工,非常精致。
说说在餐厅这个位置,楼楼会干点什么吧。

看到一只呆呆的“鲸鱼”有木有……楼楼的杰作。
宝宝平时要是做个手工,客厅茶几或小房间还能搞定,但要是画个水彩画啥的那就需要一个相对较大的区域了。看到桌面上铺的贴纸、颜料还有一堆东西了吗?(家里有孩子的人都是懂的,陪孩子玩的时候就是这种一片狼藉的样子),当然宝宝也有自己的画板,等大一点用竖着的那种更合适些。

楼楼偶尔如果组个模型啥的,在这里也不错,因为桌子大。如果玩皮具因为要敲敲打打,胡桃木桌子禁不起折腾,就改去楼楼的书房大板书桌了。

个人很喜欢的一个角度。
餐边柜是胡桃木定做的,里面放茶盘、一部分的零食、还有一些小的器皿。黑色背景下的花枝格外出彩。
【 过道与干区 · 篇】
走入过道,曲径通幽。
看到平面图的小伙伴会知道为了干区和冰箱位置的合理性,我将整条通道都右移了,换来的好处就是曲径通幽的节能性。

瓷砖依然来自于上海九星,典型的广东砖,又便宜品质又好。而且因为喜欢的人很多,顺便谈了优惠,价格给力。
画,中西结合,北欧结合中式是一种很有意思的诠释。中式的画风,边缘是手撕的效果,边框则是北欧风格的实木框,这种元素的结合与冲突的做法个人非常喜欢。从走廊走过,都是一道风景!

左侧西厨又映入眼帘。
高柜内是强电箱,零食的所有零食全部喂得饱饱的。下柜则是弱电箱和工具箱。
前面有说到,左下角西厨放了很多设备,光猫、小米路由、网建千兆路由、POE供电模块、插板,还有各种线全部填入其中。但因为空间大,根本不用担心散热问题。

墙面是科定板,台湾或者珥本的装修风格一致会采用。当然它不便宜,但是比起普通防火板做墙饰的效果来看,板子的质感要好不少,所以也算是花的值了。
有个小细节,注意地面地板的接缝处,楼楼没有用踢脚线,而是在地面留了1公分的缝隙,地板安装的时候是直接插入的,特别好看有木有。

干区来啦,首先是门。

楼楼家的次卫门框本身是偏小的,做一般的洗手间木门会非常丑。当时百思不得其解,偶尔看到一个台湾的设计,遇到的问题跟我类似。当时就拿着照片各种寻觅,最后也是找到工厂,告诉我这种叫双面夹胶烤漆玻璃,就是两边都是玻璃,中间两层夹胶。两边看起来都是纯白的,质感很好。其次看不到人影,因此私密性得到的保证。最重要的是 颜值高,看过楼楼日记的小伙伴有很多采取了这种做法。
石头台盆,卖家据说是直接从山上采下来就在山脚下加工了,性价比爆表。台面是实木的。柜门依然用超白烤漆玻璃。再次体现了楼楼之前说的冲突感。特别粗犷和特别精致的结合出来的冲突感,特别容易出效果。龙头用的是TOTO入墙的龙头。
【 次卧·女儿卧室 · 篇】
女宝的房间还是需要温馨些的。大师漆,色号忘记了。蓝配白肯定没错的。
选择涂料记得一定要摆在不同的角度看,否则大面积刷出来的颜色你会发觉不一样,这点是设计师教我的。
目前上铺就宝宝睡了,下铺老人睡。在近3年里,这样的安排算是妥当。右侧留出了很多的位置,等到未来宝宝想弹钢琴或者再大一些需要书桌的时候,这里都是可以被扩充的。

高低床是豆丁庄园的,小贵。
右侧净化器是IQAIR的,上海雾霾最厉害的时候就买了,水货,需要用变压器,现在涨价了。李嘉诚办公室都在用的净化器,好在哪儿自然不用多说,预算够就直接上吧,没啥好纠结的。

两侧的柜子都来自于宜家,为啥?因为便宜,而且白色很正,两个一样的柜子放在一块儿也比较和谐。
很多人会奇怪,为啥楼楼家有小孩儿,但屋子依然很干净呢?奥秘就在左下角的红色箱子。床底下一共5个彩色箱子,女儿平时玩好的玩具全部放入其中,然后推入床底。毕竟不是大户型,能用的空间都得用上。尽量留出更多空地,宝宝在地上玩多好。
楼梯柜也是有抽屉的,可以储物。
【 主卧 · 篇 】

个人觉得又是一张可以做封面的图片。
胡桃木的木纹处理得好,总会给人一种迷人的感觉,忍不住想多看一眼。
之前说的“冲突感”,在背景墙上又体现了一次。灰木纹文化石+西门子睿致无框开关的搭配很容易出效果。
个人甚至认为主灰色调的硬装+高质感的胡桃木家具比客厅更出效果。越是美的简单越是难,装修过程中减法比加法更重要!
一贴出来糖友就发消息说,来张全景,当当当……正面全景来啦!

来说说左侧的隔板设计吧。一直以来床头柜和衣柜的冲突是容易被忽略,但又经常困扰小伙伴们的问题。在明确左右两侧距离之后,采取隔板伸出的方式,很好的充当了床头柜。台面摆放闹钟、手表等物品,同时不失美观。而底部依然有柜门可以放置物品。
谁说床头灯必须是对称的,对称不对称取决于实用与个性间的平衡。如果在这个视角来看,多装一个对称的壁灯,反而会有种画蛇添足的感觉。你觉得呢?

从这个角度更容易看到床头左侧隔板的样子。放上几本书,没事睡前翻阅翻阅,似乎入梦都变得更有期待了。
大家想象以下,假如按照剩余的距离放个床头柜,那么衣柜下面的门就打不开了,现在这样是不是避免了所说的尴尬。

宜家买的藤椅,人体工程学贴合整个背部,非常舒服,而且夏天不热。
当然颜值依然很高。房间背景都是浅色调的,于是这种咖啡色的家具放在画面中,就容易“跳”得出来。
午后在此小憩,偶尔看看温柔的阳光……美美入梦!
上主卧全景图……当当当当……

采光无敌吧!这套房子是小区里面最好的位置,楼下就是小湖,直接视野可达150米。
原本窗户这里是阳台,并且有移门隔断,因此让主卧显得很小。拆掉移门后,增加了通透性,显得更大。
前面有说到,整个屋子的柜子是分布在各个位置的,反倒不会让人感觉大量柜子所造成压抑和堆砌感。
阳台这里的白色柜子是楼楼的,楼楼的日常衣物全部在内。另外有个细节,我喜欢用拉篮,因为一落衣服堆在柜子里,抽取中间或底部的衣服非常麻烦,拉篮在体验上会好不少。

反过来看看,依然保持了通透的感觉。看过*日我**记的同学都知道,在定设计师的时候我写过一份需求。其中就提到整个装修的感觉,要“通透”。前面对平面图还有印象的话,你会发觉卫生间的改动极大。
1、原本的走廊侧移;
2、卫生间为了保持高采光度,半面墙用了灰玻,钻石型的做法,让光线可以从侧面进入;
3、原本位置的墙全部改造成衣柜,兼顾实用性,而且也避免了门直接对着床的风水问题;
依然看到了空调的大风口,有木有……
现在更加能看出,主卧、主卫、书房,整体形成了一个套房。保证了楼楼和妍,以及宝宝和老人的空间独立性。
【 主卫·篇 】
主卫前面说到关于风水,关于采光的问题,因此做了极大的改造。近距离看看效果。

楼楼和妍每天是一起起床的,因此在老房子同时用一个卫生间洗漱的时候可把我们给苦坏了。打一开始就下定决定必须双台盆。实践证明这种选择是明智的。早上再不会出现冲突的问题。
说说瓷砖,再次佐证了楼楼坚持买广东砖的想法。这种砖表面的肌理感非常强,根本不是靠电脑喷色做出来的砖。完全靠凹凸的质感取胜,品牌砖达到这种效果的少之又少,就算有估计300一平米朝上,楼楼只用了100出头一点的价格,性价比完胜。
之前很多人问,楼楼,你的浴缸为啥要斜着放?楼楼当然有苦衷,因为主卫不够大呀,不过斜着放反倒更有腔调了,有木有!浴缸釉面非常好,一看就是高档货……没办法,有妍在,很多钱省不下来

来张正面特写,配色清爽。隐蔽式水箱为马桶和浴缸之间争取出来更充足的过道空间。马桶按钮、西门子睿致开关、嵌入式纸巾盒异常和谐,因为都是贴合墙体的嵌入感觉。有时候一个区域的制胜点在于对小小细节的坚持。所以千万不要轻易妥协……

近景来个特写,手机补拍的哦!这下能够看到瓷砖的肌理感了吧,质感很棒,不像很多瓷砖是喷上去的图,显得很假。ROCA的嵌入式龙头,很酷。台盆是科勒的正方形半下沉式台盆,釉面很棒。自己TB上配了两个原版的科勒下水,质量超好。

来张马桶位置的正面照吧。ROCA雪梨进口挂壁马桶,之前通过熟人到仓库直接拿的店里扯下来的样品,500元的白菜价,要知道是全进口的哦!完美无划横。样子是不是有点像杜拉维特。
电子盖用的ROCA配套的
左侧的嵌入式纸巾盒是从之前住的五星级酒店学来的方案,便宜又高品质。马桶刷全部买的当代工厂单,全铜,分量十足,做工精细。楼楼所有卫浴五金用了买九牧的预算搞定了全套高颜值的当代和高仪。倒不是说讲究品牌,是真的颜值高,且品质好啊。

浴缸近照来一张。浴缸的好处是人比较累的时候泡泡,然后再到客厅的按摩椅按摩下,确实很放松啊……装修就是这样,无论你收入是高是低,都要有一颗追求高品质生活的心。
【 书房·篇 】
先来一张站在书房外面拍摄的照片吧。
不锈钢门套+灰玻门,酷吧……
说个小细节,看到书房门旁边的衣柜了吗?楼楼家的储物空间几乎分散融合到了全屋,因此并不会出现楼楼前面说到的堆砌的感觉。下周会接受其他平台的小访谈,主题就是谈谈顶天立地储物柜,我会重点说明这其中的一些窍门和细节考虑……

一直都想要自己的书房,倒不是因为爱看书,而是一个独立的空间。
楼楼喜欢听音乐,尤其是JAZZ人声。客厅的BOSE优势在于电影,音乐就算了。所以一定得有个空间以后添置胆机和书架音箱。
今年初开始喜欢上了做些小皮具,少不了敲敲打打。
这些都需要一个相对独立的空间来达成。

自从去叶银工作室看了大板书桌,就被那种质感深深的吸引了。
书桌是一整张南美胡桃木。8.5公分的厚度,一边保留的纯自然边,保持了木头的本来面目。只要现场一眼看到,你就会喜欢上她。
窗户用了百叶帘,或许这样的选择不仅仅适合北欧,更彰显出男性书房的硬朗气质。
宜家买的落地灯,性价比很高。同时书房的隔板带入了一些LOFT风。

地图代表的是一种情怀……
几乎翻遍了全淘宝,这幅地图要卖4500,我也是醉了。妍很能干的在德亚上找到了这幅地图,相对便宜不少。
地台未来是用来放胆机和书架音箱的。
书房门直接用的灰玻,神秘而有质感。

显示器换了AOC的2K显示器,效果细腻。
说了高大上的护目台灯吧,日亚淘回来的。山田照明Z-208,恰好是显示器土豪品牌EIZO给自家显示器的定制款,原配显色性RA90的灯管,未来可以替换成RA99的,会更专业。据说国际大型博物馆,用来照射世界级画作的就是RA99灯管。
完全不闪。长时间看电脑屏幕不疲劳。具体细节楼楼装修日记里面有写,或许等全部更新完帖子后会有专门的篇幅来介绍楼楼买的各种神器。

来张特写书架。
【 阳台 · 篇 】
阳台总是被赋予许多功能性,原因在现在寸土寸金的今天,阳台是人与大自然最亲近的地方,因此显得格外宝贵。
楼楼的阳台要具备2个要素:
1、洗衣机+洗衣池;
2、景观性,不能拥挤。

很特别的瓷砖,来自军豪,依然是那么高性价比;
洗衣机依然是BEKO,全进口71441,变频非常好用。以前在用惠而浦的时候一旦脱水,洗衣机就发出犀利的尖叫声,现在的BEKO则表现的温柔很多。原本应该很响的脱水声,虽不说安静到无声,但至少不吵。进口货,确实是好一些。强烈建议小伙伴们尽量能买进口的。
说个省钱且好效果的方式。一般都知道台面比门板贵,于是加入你的台面上并不会放太多的重物的情况下可以用门板材质做台面,既好看又省钱。

反过来看看吧。又是一招省钱、美观、实用的做法。比起上千元的台面来说,楼楼仅花了200多块买来了一体成型的水池,关键还很实用。门板还是依然那么的沧桑。
地漏看到了吗?跟楼楼几个卫生间用的一样的隐形地漏,比普通的地漏美太多了。

白色配磨砂黑色龙头,酷极了,有木有!对比度非常高的做法。

左侧还带搓板。老妈强烈要求。外貌大部分一体成型的水池柜,只能用恶俗两字来形容。而楼楼的做法,利用了一体成型水池的优势+橱柜公司美貌的做法,综合提升了颜值。
讲完实用性的,那么来看看小景观吧。我的多肉小花园。

多肉小花园并不是一次就完成的,都是逐步慢慢的加,慢慢的加。每天看到顽强的小生命不断在奋力生长,心中顿生各种希望,会带来更正面积极的状态。
楼楼一天上班下来很累,晚上看看这些小生命人也会慢慢平静下来……
这张竟然跑焦了……


家不仅仅是一个居住的地方,更是你对生活倾注热情、热爱的一种体现。与其说是装修一套房子,不如说是你对理想生活的塑造。多给房间留些空间,就像你的心需要慢慢被填充,去享受这个过程……
看到孩子在阳光下的笑容,心中满满的都是幸福感。这不就是你想要的吗?