【小区名称】富力桃园
【建筑面积】122㎡
【装饰风格】美式风格
【工程造价】25万
【设计 理念 】相较于欧式的雍容华贵、中式深邃的文化底蕴,美式更多的追求房间的实用性,将艺术融入到房间的家居中,房间的每一扇门,每一扇窗,都是一份唯美的作品。

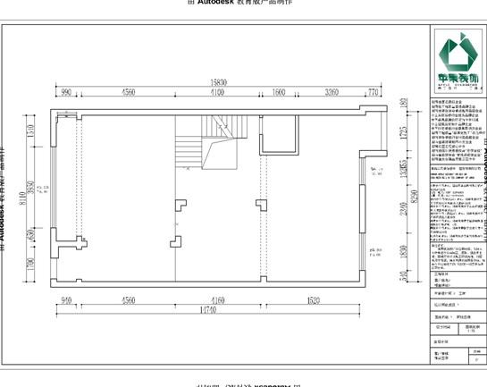
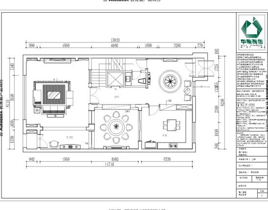
平面设计解析
①这个方案主要展示的一楼的户型改造与空间规划,宽敞的阳台,给房间提供了很好的采光,与通风。②入户的位置设置了双层的门,增加了空间的神秘感,给房间增添了一些隐私的空间。


一楼客厅
每一个门厅的上方,采用弧形的造型,看上去简洁、美观、大方,电视背景墙的造型,尤为特别,鹿头的挂饰,让电视背后的空间变的神秘起来,引发观看者的兴趣,达到更好的观影体验。

客厅
与电视背景墙相呼应的是一尊庄严的建筑,代表着房子主人的一种信仰,没有披金戴银,却又是那么庄严、华丽。艺术的魅力,让人即觉得奇妙,有时又让人觉得,震惊不已!

玄关
入户玄关的位置,设置了一组木制作的酒柜,看上去满是历史的气息,照片墙不管是摆上家人的生活照,还是艺术照,都是一道亮丽的风景线,让玄关不会那么空旷,引发视觉疲劳。

设计师介绍

姓名:王从瑞
职位:高级设计师
理念:设计源于细节,细节决定成败
爱好:打篮球、乒乓球
擅长:现代简约、简欧、美式、后现代
作品:瑞和山水居、中铁品园、华冶新天地、巴黎都市、万达文旅城