水者,地之血气,如筋脉之流通者也
——《管子·水地篇》

从东方“智者乐水”的居住文化到西方“流水别墅”的水岸湾居,人类文明的每一次脉动,都化作一股浪潮,撞击着历史的胸膛,将江河与城市之传奇传唱不息。


▲ 鸟瞰实景
“燕丹昔日避秦兵,衍水今传太子名”,蜿蜒的辽宁长河——太子河至今仍传唱着千年历史故事,孕养着盛京文明,不断引领人居向往。

▲ 项目区位图
初见
飞鸟游鱼信往还,此身同寄水云间。
水光潋滟,辽阳河东新城太子河西岸,立于项目地块滨水一隅,尽感“飞鸟游鱼信往还,此身同寄水云间”的舒阔,面对眼前景象,如何将这一得天独厚的优势发挥最大价值?

▲ 项目鸟瞰夜景
项目地处新老城交汇的关键节点,与东岸通过衍水大桥紧密相通,新老城丰富的生活资源、流淌千年的潺潺水源,尊重这片土地的精神属性,打造匹配土地价值的高端改善产品,是团队设计的初衷。
和筑
柳阴庭院占风光,呢喃清昼长。
碧波新涨小池塘,双双蹴水忙。
水岸庭院,河风送爽,项目以合院别墅、洋房、小高层以及观景高层四种产品形态,构建整体和谐宜居的物质与精神空间环境。

▲ 祥祺辽阳•臻悦项目布局图
不学礼,无以立,项目承袭东方风雅,以隐约巧妙的分隔手法,将中轴核心段落分成传统的三进式格局,以饱含的礼仪序列拉开整个空间的序幕。
从入口大堂进入前庭小院,通过框景门进入园区,前中后三个层次个性分明,却不失空间的流畅与诗意感。

▲ 主入口向内形成景观主轴






▲ 小区入口秩序感设计
进入园区,每一产品形态皆以最优规划有序布局,高低错落、曲径通幽,有效扩展和丰富了项目内部空间体验,使审美主体能多视角多方位地观赏景观之美。
于高处,高层沿河耸立,楼体旋转偏向东南方位,270°全景阳台尽瞰江天自在云舒、潮起潮流。


▲ 高层沿河打造最佳观景朝向与270°瞰景户型
于湾畔,社区运动健康公园延伸,晨间与傍晚恣意挥洒汗水,视觉与身心放松间,谱写健康生态社区的律动。


▲ 运动健康公园空间规划
于园间,宅与宅间交织的浓阴花园与中央会客厅,串联起社区景观,阳光斑驳繁花烂漫里,尽享亲密对谈、自在休憩。




▲ 园区实景
于街侧,小高层简约流线与坡面屋顶勾勒东方美学的城市天际线,深灰色铝合金窗框与浅米色石材明暗变换,兼顾中式雅调与现代张力;

▲ 小高层雅高立面质感
小高层底部规划沿街商业网点,对接沿街最密集人流,繁华点缀,便捷日常,一派绮丽生活画卷。

▲ 沿街商业实景

▲ 沿街商业配套服务周边人群
谧居
雨霁日长花烂漫,春深睡美梦飘浮。
中心雅境,院启风华,项目中间地带规划为最具私密属性的合院与洋房产品,南侧建筑沿北工街退20米形成绿化带,吸收隔离噪音,营造静谧居住氛围。

▲ 沿街退后20米形成降噪绿化带
复刻中式坊巷情节,合院以东方院落形制完成空间排布,中式礼序深植,传承中国传统居住情结的场所精神。

▲ 合院中式坊巷形制鸟瞰图

▲ 坊巷院宅中式空间实景应用
私家独立门楣展显赫家风,步入开阔庭院融自然风雅于内,现代简约风格与园林艺术融为一体,营造出令人神往的纯粹空间。

▲ 合院入口实景
转身闭门,高挺围墙阻隔外界纷扰,声色犬马的喧嚣戛然而止,多重空间进化消除户与户之间视线穿透,免去多余的关注,回归静好时光。



▲ 合院私密空间设计
走进合院居室,清晰流线营造完美居住格局。一层园林雅院,杯盏茶话间重回本真的诗意空间,二层三层花园露台,匹配南向大面宽视野,静观破晓晨光与胭脂晚霞;

▲ 合院清晰动线设计


▲ 合院精工细节
下层庭院营造多维空间层次,通透采光井引阳光与清风入室,全明地下室,收纳一院幽静,悠享桃源人生。

▲ 合院产品一/二/三层户型图


▲ 合院室内实景
光影
天光倒影写晴碧,对此洗我潇洒心。
地块最佳人气展示面、城市干道交汇处的西南角,规划为项目示范区,新中式简约流畅建筑线条,向十字路口过往人群强烈昭示着项目的品质与威仪。

▲ 示范区立面实景
藏露隐现的空间收放制式,从入口中式大屋檐的幽邃,步入中心院落的敞亮,着意表现藏敛与开阔、对称与协调、严整与均衡之美,进退明暗间感悟入园的起承转合。



▲ 示范区实景图
水为镜,心平如洗,中庭水境景观,映射四水归堂建筑意向,中式柱廊、花窗隔栅等元素简化延承隐映,建筑空间和景观空间流动渗透,相互交叠,尽显东方美学神韵。



▲ 示范区中式元素示意

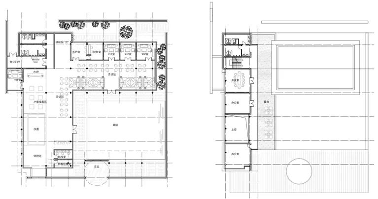
▲ 示范区售楼处一、二层平面图
光为媒,云影交辉,打造与太子河融为一体的东方韵味现代人居,祥祺辽阳•臻悦谨以创新设计与科学布局为区域品质提升带来更多可能性。

-END-
项目名称 祥祺辽阳·臻悦
委托单位 辽阳市祥祺房地产开发有限公司
项目类型 居住建筑
项目地点 辽宁省辽阳市
项目规模 365,151㎡
设计时间 2018年
设计范围 总体规划、方案设计
设计公司 北京墨臣建筑设计事务所
设计团队 吴伟枢、梁杉、梁岩、吴盟、周驰、王辰、贾甲、侯青
室内设计 北京庭旭建筑设计有限公司
景观设计 伍伽建筑设计(北京)有限公司
摄 影 光场建筑摄影 朱捍东
版权所有 墨臣设计